Водонагреватели Haier L1P26-F21O(T) - инструкция пользователя по применению, эксплуатации и установке на русском языке. Мы надеемся, она поможет вам решить возникшие у вас вопросы при эксплуатации техники.
Если остались вопросы, задайте их в комментариях после инструкции.
"Загружаем инструкцию", означает, что нужно подождать пока файл загрузится и можно будет его читать онлайн. Некоторые инструкции очень большие и время их появления зависит от вашей скорости интернета.

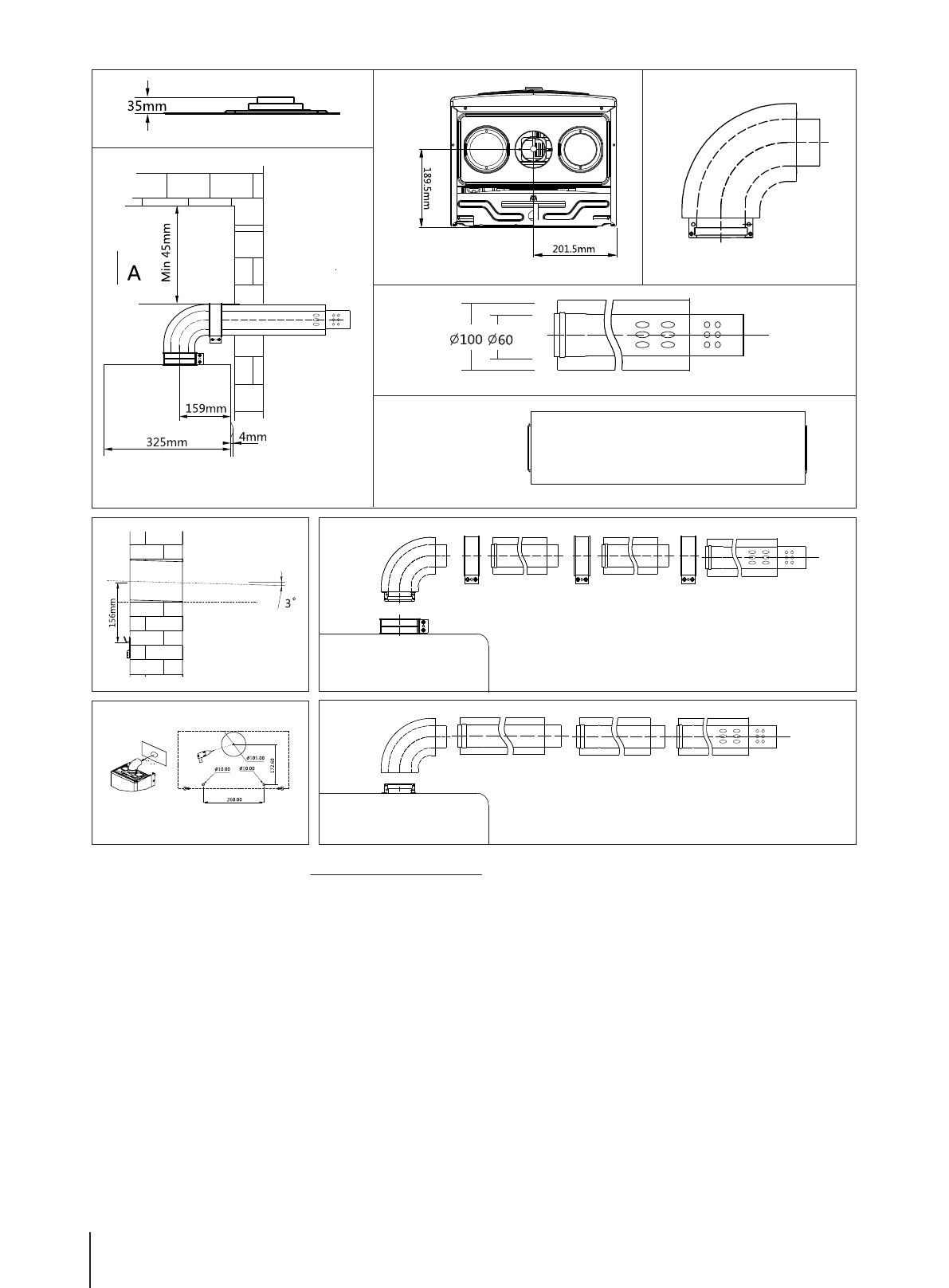
Расположения вентиляционного отверстия 1
Рабариты отверстия дымохода
Стандартное колено
Схема установки дымовой трубы (I)
Стандартная вытяжка
Элемент удлинения дымовой трубы
Установка
дымовой трубы
Удлиненная дымовая труба
Пример установки дымовой трубы
(см. сторону упаковки)
Удлиненная дымовая труба
4. Установка датчика температуры наружного воздуха
Датчик температуры наружного воздуха устанавливается под карнизом или с наружной стороны окна, вдали от попадания
прямых солнечных лучей, от трубопроводов, дымохода, выходного отверстия горячего воздуха в системах
кондиционирования и т.д., которые являются искусственными источниками тепла.
5. Заполнение котла водой/Слив системы отопления
Заполнение котла водой
Газовый котел оборудован клапаном подпитки в случае, если давление в системе отопления упало ниже 0.3бар.
1. Выключите газовый котел и отключите питание;
2. Проверьте систему на наличие утечек, убедитесь, что система полностью герметична;
3. Открутите клапан подпитки, чтобы добавить воду в систему;
4. Закройте клапан подпитки водой, когда давление в системе установится в пределах 1.0бар~1.5бар;
5. Включите котел.
Наполнение системы водой происходит медленно. Открутите выпускной воздушный клапан для выхода воздуха,
который мог остаться в системе отопления.
14
Содержание
- 4 Выбор статуса работы и использование термостата; Программирование еженедельной работы; Автоматическая работа на основе температуры на улице; Приоритет комнатного термостата; Настройка часов; Автоматическая работа с учетом комнатной температуры
- 6 Настройка разности температуры подачи и обратной магистрали
- 8 Настройка 60-минутного таймера приготовления ГВС
- 10 Настенный газовый котел; Важные меры предосторожности; воды как только устройство будет запущено; Другие меры предосторожности; Ежедневная очистка и уход
- 11 чистка и уход
- 12 Демонтаж передней панели; Инструкции по демонтажу; Установка; Инструкции по установке; Подключение к системам газо- и водоснабжения; Установка дымохода
- 14 Установка датчика температуры наружного воздуха; Заполнение котла водой
- 16 Компоненты; Битермический; Подключение магистралей
- 17 Двухконткрный с
- 18 Эл. схема платы управления; Электрод розжига
- 20 Схема циркуляции воды битермического котла
- 22 Технические параметры; Технические параметры
- 23 Признаки неисправности и метод ее устранения
- 24 Газовый котел для установки; Выявление неисправностей и их устранения; Причины и устранение неисправностей
- 29 ОСОБЫЕ ОТМЕТКИ
- 30 Работы по техническому обслуживанию