Водонагреватели Haier FCD-JTLD100 - инструкция пользователя по применению, эксплуатации и установке на русском языке. Мы надеемся, она поможет вам решить возникшие у вас вопросы при эксплуатации техники.
Если остались вопросы, задайте их в комментариях после инструкции.
"Загружаем инструкцию", означает, что нужно подождать пока файл загрузится и можно будет его читать онлайн. Некоторые инструкции очень большие и время их появления зависит от вашей скорости интернета.

15
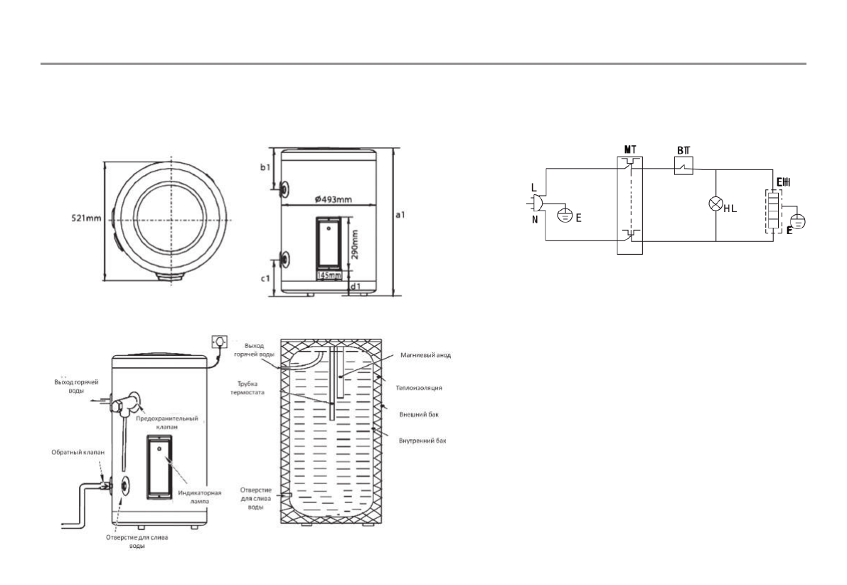
Âíåøíèé âèä âîäîíàãðåâàòåëÿ
Âíåøíèé âèä âîäîíàãðåâàòåëÿ
MT – Çàùèòíûé òåðìîñòàò
BT – Ðåãóëèðóåìûé òåðìîñòàò
HL – Èíäèêàòîðíàÿ ëàìïà íàãðåâà âîäû
EH – Íàãðåâàòåëüíûé ýëåìåíò
E – Çàçåìëåíèå (æåëòûé/çåëåíûé)
L – Ôàçà (êîðè÷íåâûé)
N – Íîëü (ñèíèé)
Âíåøíèé âèä è ñõåìà ýëåêòðè÷åñêîé öåïè âîäî-
íàãðåâàòåëÿ ìîãóò
áûòü
èçìåíåíû
áåç
ïðåäóïðåæäåíèÿ, áåç óõóäøåíèÿ ïîòðåáèòåëü-
ñêèõ ñâîéñòâ èçäåëèÿ.