Водонагреватели Gorenje TGU80V6 - инструкция пользователя по применению, эксплуатации и установке на русском языке. Мы надеемся, она поможет вам решить возникшие у вас вопросы при эксплуатации техники.
Если остались вопросы, задайте их в комментариях после инструкции.
"Загружаем инструкцию", означает, что нужно подождать пока файл загрузится и можно будет его читать онлайн. Некоторые инструкции очень большие и время их появления зависит от вашей скорости интернета.

42
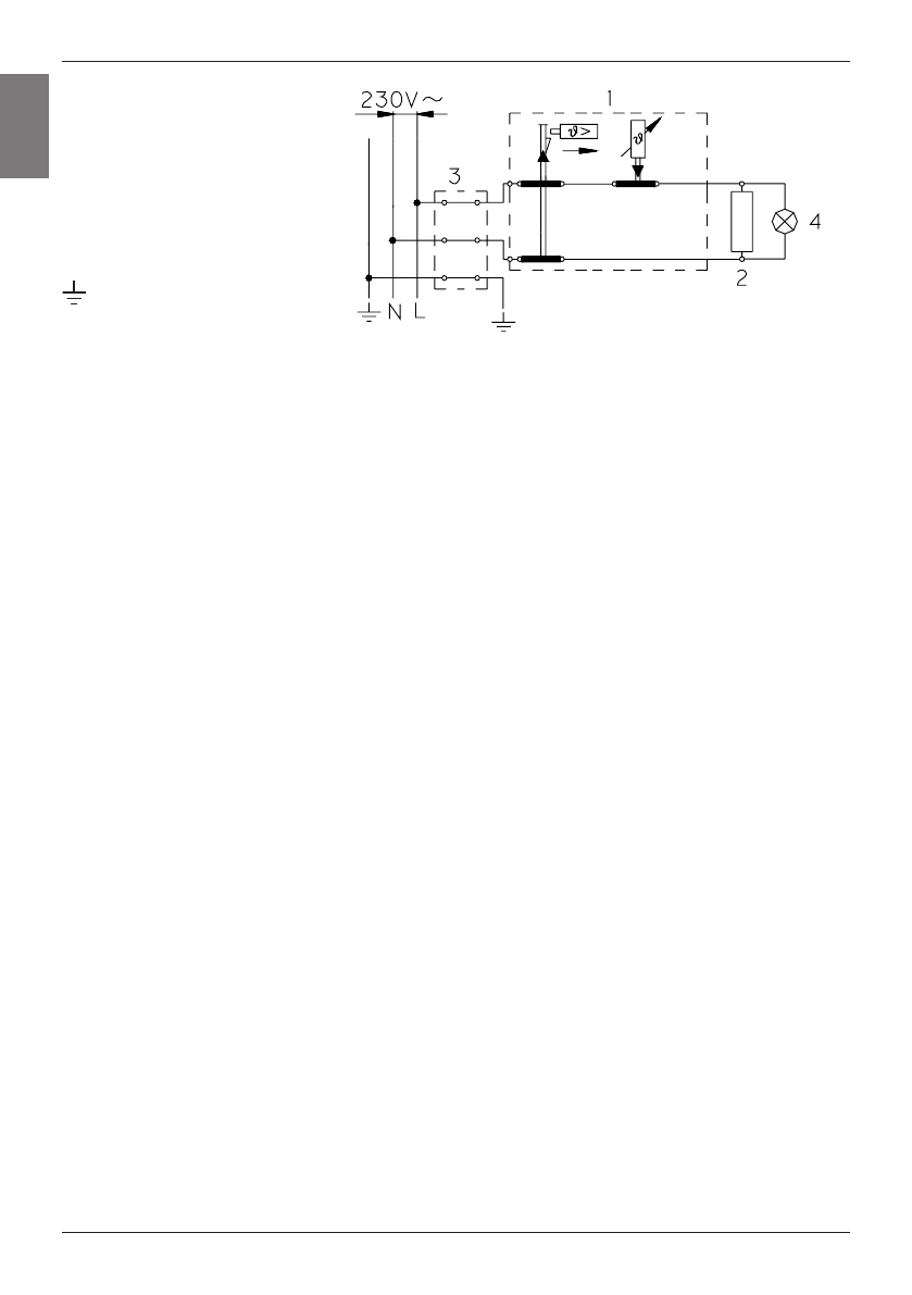
Fő részek:
1 - Hőfokszabályzó és
bipolar hőbiztosíték
2 - Elektromos fűtés
3 - Csatlakozó terminál
4 - Jelzőlámpa
L - Élő vezeték
N - Fázis vezeték
- Földelő vezeték
Az elektromos kapcsolás vázlata
FIGYELMEZTETÉS: A bojler belsejébe történő beavatkozás előtt a
bojlert feltétlenül áramtalanítani kell!
A KÉSZÜLÉK HASZNÁLATA ÉS KARBANTARTÁSA
A bojler vízvezeték és elektromos hálózatra történő csatlakoztatás után használatra készen áll.
A készülékben a víz hőmérsékletét a gyártó által beszabályozott hőfokszabályzó automatikusan
szabályozza. A beállítás a vízmelegítő belsejében a hőfokszabályzón lévő csavar elforgatásával
módosítható. A módosításra 20°C és 75°C közötti tartományon belül van lehetőség. Nem ajánljuk
a gyári beállítás megváltoztatását, mivel ez biztosítja a leggazdaságosabb energia-felhasználást
és a legkisebb mértékű vízkőképződést.
A elektromos fűtőszál működését az ellenőrzőlámpa mutatja. A vízmelegítő oldalán található bimetál
hőmérő jobbra, az óramutató irányába mozdul el, ha a vízmelegítő meleg vizet tartalmaz.
Ha a vízmelegítőt hosszabb ideig nem használja, akkor le kell választani az elektromos hálózatról.
Fagyásveszély esetén a vízmelegítőből a vizet ki kell üríteni. A vízmelegítőben lévő víz kiürítése
a befolyó csövön keresztül történik. E célból beépítéskor ajánlatos a biztonsági szelep és a
vízmelegítő befolyó csöve közé egy külön szerelvényt (T-idom) vagy leeresztő szelepet szerelni. A
vízmelegítő közvetlenül a biztonsági szelepen keresztül is kiüríthető a szelepen lévő forgató gomb
illetve sapka olyan állásba való fordításával, mint a működés ellenőrzésekor. A víz kiürítése előtt a
készüléket le kell választani a villamos hálózatról, majd kinyitni a melegvíz csapot a csaptelepen.
A víz befolyó csövön keresztül való kiürítése után marad még némi víz a vízmelegítőben, ami a
fűtőelemet tartó illesztő perem eltávolítása után kifolyik a keletkezett nyíláson.
A bojler külső falát gyenge mosószeres vízzel tisztítsa. Ne használjon hígítókat és durva
tisztítószereket.
Rendszeres szervízeléssel biztosítani fogja a bojler hibátlan működését és hosszú élettartamát.
A márkaszerviz az első ellenőrzést két évvel a csatlakoztatás után végezze el. Az ellenőrzés
folyamán megvizsgálja az antikorróziós anód elhasználódását és 9szükség szerint eltávolítja a
vízkövet, amely a felhasznált víz minőségétől, mennyiségétől és hőmérsékletétől függően rakódik
le a bojler belsejében. A szervizszolgálat a bojler átvizsgálása után a megállapított állapot alapján
javaslatot tesz a következő szükséges ellenőrzés időpontjára.
Kérjük, hogy a bojler esetleges hibáit ne javítsa saját maga, hanem azokról tájékoztassa az
Önhöz legközelebb eső márkaszervizt.
H












