Водонагреватели Gorenje TGU80B6 - инструкция пользователя по применению, эксплуатации и установке на русском языке. Мы надеемся, она поможет вам решить возникшие у вас вопросы при эксплуатации техники.
Если остались вопросы, задайте их в комментариях после инструкции.
"Загружаем инструкцию", означает, что нужно подождать пока файл загрузится и можно будет его читать онлайн. Некоторые инструкции очень большие и время их появления зависит от вашей скорости интернета.

58
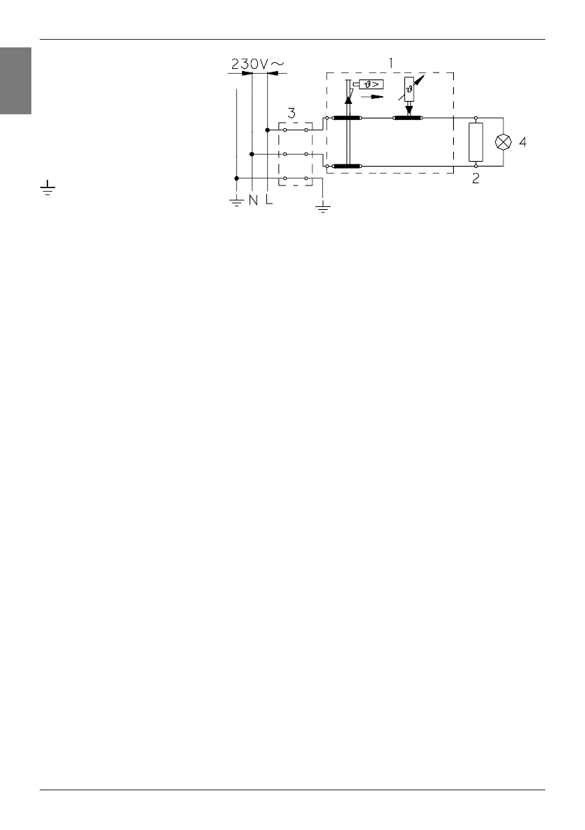
Legenda:
1 - Termostat, siguranţă
bimetalică
2 - Element încălzitor
3 - Manşon de racord
4 - Bec de control
L - Cablu de fază
N - Cablu neutru
- Cablu de protecţie
Schema legăturii electrice
ATENŢIE: Este obligatorie deconectarea din reţeaua electrică a
boilerului înaintea fiecărei intervenţii tehnice în interiorul acestuia !
UTILIZARE ŞI ÎNTREŢINERE
Boilerul poate fi utilizat imediat după conectarea sa la reţeaua de apă şi la cea electrică.
Temperatura apei din boiler este reglată automat de termostat, care este fixat din fabrică.
Reglajul poate fi modificat prin rotirea şurubului de reglare a termostatului din interiorul
boilerului. Termostatul este fixat la o temperatură variind între 20 şi 75° C. Nu vă recomandăm
să schimbaţi reglajul, întrucât el vă garantează cel mai redus consum de energie şi contribuie
la reducerea maximă a depunerilor de piatră.
Ledul de veghe semnalizează că boilerul merge. Pe margine, boilerul are un termometru
bimetalic, care se mişcă în direcţia acelor de ceasornic la dreapta, când în boiler este apă
caldă. În cazul în care nu intenţionaţi să-l folosiţi. Dacă veţi opri boilerul, pentru a evita riscul
îngheţării apei, acesta va trebui golit. Boilerul se goleşte de apă printr-o ţeavă de scurgere.
În acest scop, este indicat ca, la montare, între ventilul de siguranţă şi ţeava de scurgere
să se plaseze un fiting special (piesă T) sau un ventil de scurgere. Boilerul poate fi golit şi
în mod direct, prin ventilul de siguranţă, prin acţionarea manetei, respectiv a căpăcelului
rotativ al ventilului în acelaşi fel, ca atunci când se verifică modul de funcţionare. Înainte
de golire, este necesar ca boilerul sa fie deconectat de la instalaţia electrică şi apoi să se
deschidă maneta pentru apa caldă a bateriei. După evacuarea apei prin ţeava de scurgere,
mai rămâne o mică cantitate de apă, care, atunci când se înlătură flanşa, se scurge prin
orificiul acesteia.
Exteriorul boilerului va fi curăţat pri spălarea cu un detergent delicat, dizolvat în apă. Nu
folosiţi dizolvanţi şi mijloace detersive dure, respectiv corozive.
Prin efectuarea de controale tehnice regulate veţi asigura atât funcţionarea impecabilă a
boilerului, cât şi durabilitatea sa. Se recomandă ca primul control, efectuat de personalul
calificat al unui service autorizat, să fie făcut după 2 ani de la punerea în funcţiune a boilerului.
Cu această ocazie, va trebui verificată uzura anodului de protecţie contra coroziunii şi, dacă
va fi cazul, boilerul va fi curăţat de crusta de piatră depusă, ştiut fiind că depunerile calcaroase
depind de calitatea, cantitatea şi temperatura apei folosite. Data următorului control va fi
propusă de personalul calificat al atelierului de reparaţii, ea fiind stabilită în funcţie de starea
în care se afla boilerul în momentul efectuării primului control.
Vă rugăm să nu efectuaţi singuri repararea eventualelor defecţiuni apărute, ci să faceţi
apel la cel mai apropiat atelier autorizat de reparaţii.
R
O













