Водонагреватели Gorenje TGU50B6 - инструкция пользователя по применению, эксплуатации и установке на русском языке. Мы надеемся, она поможет вам решить возникшие у вас вопросы при эксплуатации техники.
Если остались вопросы, задайте их в комментариях после инструкции.
"Загружаем инструкцию", означает, что нужно подождать пока файл загрузится и можно будет его читать онлайн. Некоторые инструкции очень большие и время их появления зависит от вашей скорости интернета.

62
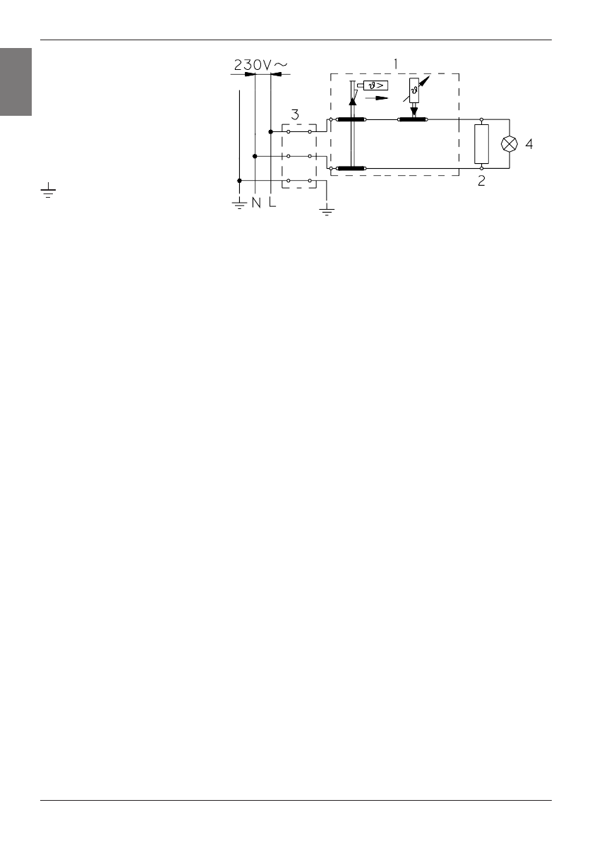
Legenda:
1 - Termostat a dvojpólová
teplotná poistka
2 - Vyhrievacie teleso
3 - Pripojovacia svorka
4 - Kontrolné svetlo
L - Fázový vodič
N - Neutrálni vodič
- Ochranný vodič
Schéma elektrického zapojenia
UPOZORNENIE: Pred každým zásahom do vnútrajšku musíte ohrievač
bezpodmienečne vypnúť z elektrickej siete!
POUŽÍVANIE A ÚDRŽBA
Po zapojení na vodovodnú a elektrickú sieť je ohrievač pripravený na použitie. Teplotu vody
v ohrievači automaticky reguluje termostat nastavený výrobcom. Nastavenie môžete zmeniť
otáčaním nastavovacej skrutky na termostate, ktorá sa nachádza vo vnútrajšku ohrievača.
Nastaviteľný rozsah teploty je medzi 20° a 75°C. Zmenu automatického nastavenia
neodporúčame, lebo také nastavenie zabezpečuje ekonomickú spotrebu elektrického prúdu
a najmenšie usadeniny vodného kameňa.
Funkciu elektrického vyhrievacieho telesa signalizuje kontrolné svetlo. Ohrievač má na
obvode bimetalový teplomer, ktorý sa vychýli doprava v smere hodinových ručičiek, keď sa
v ohrievači nachádza teplá voda.
Ak ohrievač nebudete používať dlhšiu dobu, vypnite ho z elektrickej siete. Bezpodmienečne
musíte z neho vypustiť aj vodu, ak hrozí nebezpečenstvo mrazov. Voda z ohrievača sa
vypúšťa cez prítokovú hadicu ohrievača. Za týmto účelom odporúčame pri zabudovaní
medzi bezpečnostný ventil a prítokovú hadicu ohrievača umiestniť osobitný fiting (T-kus)
alebo vypúšťací ventil. Ohrievač môžete vyprázdniť aj priamo cez bezpečnostný ventil, a to
posunom páčky respektíve otočnej hlavice ventila do rovnakej polohy ako pri preverovaní
fungovania. Pred vyprázdnením je potrebné ohrievač odpojiť z elektrickej siete a potom
otvoriť páčku na teplú vodu na pripojenej miešacej batérii. Po vypustení vody cez výpustnú
hadicu v ohrievači zostane menšie množstvo vody, ktorá vytečie, keď odstránite výhrevnú
prírubu cez otvor výhrevnej príruby.
Vonkajšok ohrievača čistite jemným roztokom pracieho prášku. Nepoužívajte riedidlá a
agresívne čistiace prostriedky .
Pravidelnými servisnými prehliadkami si zabezpečíte bezchybnú činnosť a dlhú životnú dobu
ohrievača. Prvá prehliadka by mala byť autorizovanou servisnou službou vykonaná približne
dva roky po zapojení. Pri prehliadke sa zistí stupeň opotrebovania protikoróznej ochrannej
anódy a podľa potreby sa očisti vodný kameň, ktorý sa vzhľadom na kvalitu, množstvo a
teplotu použitej vody naberie vo vnútrajšku ohrievača. Servisná služba Vám po prehliadke
ohrievača vzhľadom na zistený stav odporučí aj dátum ďalšej kontroly.
Prosíme Vás, aby ste prípadné nedostatky na ohrievači neopravovali sami, ale o nich
informovali najbližšiu autorizovanú servisnú službu.
SK