Водонагреватели Gorenje GBK 150 LN RN - инструкция пользователя по применению, эксплуатации и установке на русском языке. Мы надеемся, она поможет вам решить возникшие у вас вопросы при эксплуатации техники.
Если остались вопросы, задайте их в комментариях после инструкции.
"Загружаем инструкцию", означает, что нужно подождать пока файл загрузится и можно будет его читать онлайн. Некоторые инструкции очень большие и время их появления зависит от вашей скорости интернета.

 
 
 
 
 
 
 
 
 
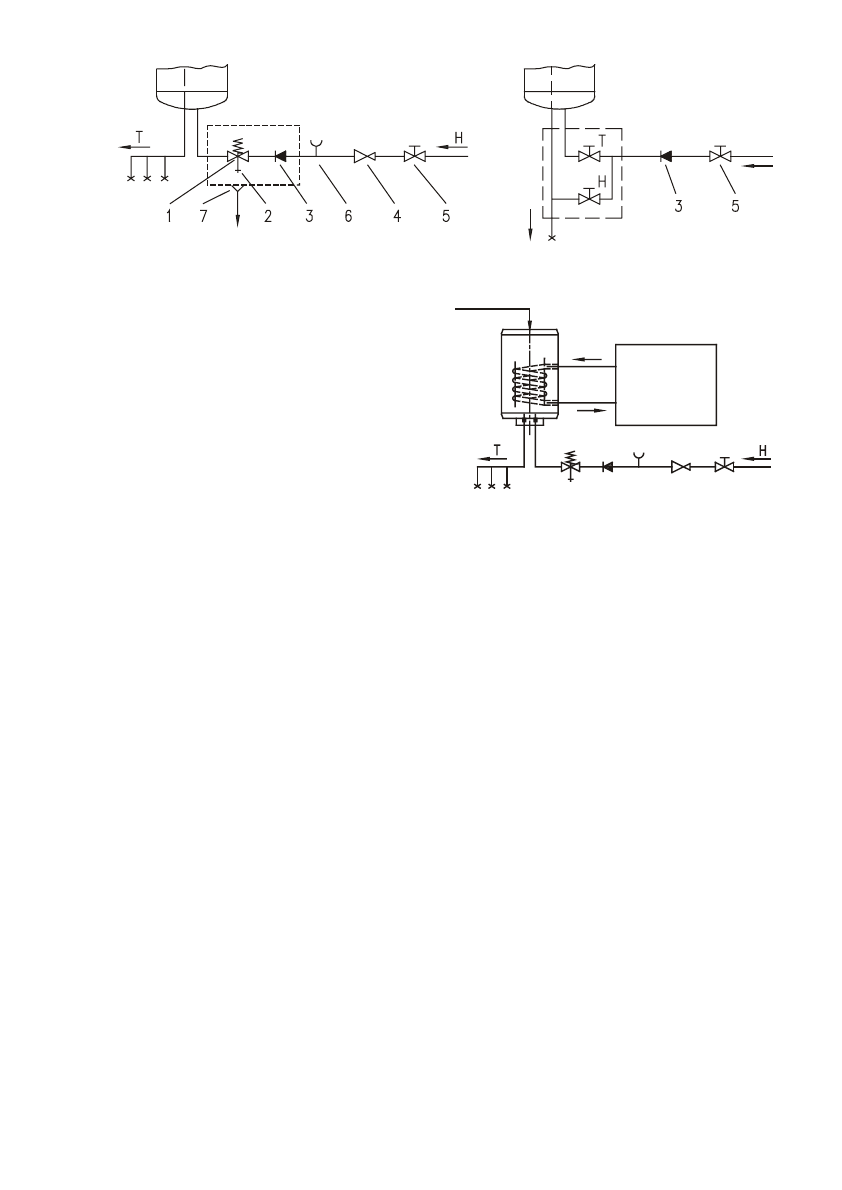
Sistemul închis (sub presiune) Sistemul deschis (f
ă
r
ă
presiune)
 
Legenda:
Conductor de întoarcere
1 - Ventil de siguran
ţă
2 - Ventil de testare
3 - Ventil de re
ţ
inere
4 - Ventil de reducere a presiunii
5 - Robinet de închidere
Sursa de energie
6 - Accesoriu de încercare
7 - Scurgere racordat
ă
la canalizare
(la canalul colector)
H - Ap
ă
rece
T - Ap
ă
cald
ă
 
Boilerul combinat pentru ap
ă
cald
ă
GBK func
ţ
ioneaz
ă
la fel ca
ş
i boilerul electric de ap
ă
cald
ă
GB, singura deosebire fiind aceea c
ă
cel dintâi este prev
ă
zut
ş
i cu un schimb
ă
tor termic
pentru înc
ă
lzirea apei sanitare prin intermediul altor surse de energie (cum ar fi înc
ă
lzirea
central
ă
, colectoarele solare sau pompa termic
ă
). Sistemul de înc
ă
lzire cu spirale de înc
ă
lzire
ş
i cel cu schimb
ă
tor termic pot func
ţ
iona concomitent sau separat. Boilerul cu sistem combinat
de înc
ă
lzire va fi bran
ş
at la re
ţ
eau de distribuire a apei în acela
ş
i mod ca
ş
i boilerul GB, cel
dintâi fiind, în plus, conectat la o surs
ă
suplimentar
ă
de energie. Intrarea agentului termic,
respectiv a purt
ă
torului de c
ă
ldur
ă
în schimb
ă
torul termic este marcat
ă
cu ro
ş
u, iar ie
ş
irea cu
albastru. 
Boilerele GBK pot fi conectate 
ş
i la conductorul de întoarcere pentru apa cald
ă
. Acesta din
urm
ă
asigur
ă
furnizarea permanent
ă
de ap
ă
cald
ă
concomitent, în toate locurile de receptare
a acesteia. Conductorul de întoarcere va fi racordat la bran
ş
amentul din partea de sus a
boilerului. Înainte de bran
ş
are va trebui scos c
ă
p
ă
celul de plastic
ş
i de
ş
urubat bu
ş
onul de
etan
ş
are din partea superioar
ă
a boilerului. Elementele conductorului de întoarcere pot fi
cump
ă
rate ulterior de la vânz
ă
torii autoriza
ţ
i ai produselor noastre.
BRAN
Ş
AREA LA RE
Ţ
EAUA ELECTRIC
Ă
 
Înainte de conectarea la re
ţ
eaua electric
ă
, la boiler va trebui montat un cablu de bran
ş
are, de
aceea va trebui scos capacul de protec
ţ
ie din plastic. Acest lucru sa va face prin îndep
ă
rtarea
pl
ă
cu
ţ
ei aflate în partea anterioar
ă
a capacului. Pl
ă
cu
ţ
a poate fi demontat
ă
prin introducerea,
cu precau
ţ
ie, a
ş
urubelni
ţ
ei în despic
ă
tura dintre pl
ă
cu
ţ
a inserat
ă
ş
i ap
ă
r
ă
toarea de protec
ţ
ie,
sl
ă
bind mai întâi
ş
uruburile aflate lâng
ă
butonul termostatului, apoi cele din partea opus
ă
.
Când pl
ă
cu
ţ
a este degajat
ă
prin de
ş
urubare par
ţ
ial
ă
în ambele p
ă
r
ţ
i, ea va putea fi scoas
ă
cu
mâna. Pentru a scoate capacul de protec
ţ
ie din plastic va trebui dat la o parte
ş
i butonul
termostatului
ş
i vor trebui de
ş
urubate cele dou
ă
ş
uruburi de strângere. Montarea la loc a
capacului de protec
ţ
ie din plastic descurge în ordine invers
ă
. Bran
ş
area boilerului la re
ţ
eaua
electric
ă
trebuie efectuat
ă
în conformitate cu normele valabile pentru instala
ţ
iile electrice.
Întrucât boilerul nu este prev
ă
zut cu elemente care s
ă
-l separe în mod permanent de re
ţ
eaua
electric
ă
, este necesar ca la realizarea leg
ă
turii prin cablu între acesta
ş
i instala
ţ
ia permanent
ă
de electricitate s
ă
fie montat un comutator care înrerupe alimentarea ambilor poli
ş
i la care
distan
ţ
a dintre contactele deschise este este de minim 3 mm.
17
 
  
  
  
  
  
  
  
  
  
  
  
  
  
  
  
  
  
  
  
  
  
  
  
  
  
  
  
  
  
  
  
 











