Водонагреватели Gorenje GBH80 - инструкция пользователя по применению, эксплуатации и установке на русском языке. Мы надеемся, она поможет вам решить возникшие у вас вопросы при эксплуатации техники.
Если остались вопросы, задайте их в комментариях после инструкции.
"Загружаем инструкцию", означает, что нужно подождать пока файл загрузится и можно будет его читать онлайн. Некоторые инструкции очень большие и время их появления зависит от вашей скорости интернета.

26
S
R/M
NE
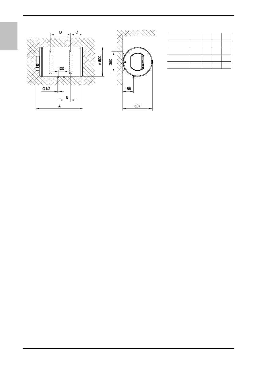
Priključne i montažne mere
bojlera [mm]
PRIKLJUČIVANJE NA VODOVOD
Dovod i odvod vode su označeni bojama na cevima bojlera. Dovod hladne vode je
označen plavom, a odvod tople vode crvenom bojom. Bojler možete da priključite na
vodovodnu mrežu na dva načina. Zatvoreni sistem (pod pritiskom), omogućava
ispuštanje vode na više mesta, a otvoreni sistem (bez pritiska) dozvoljava samo
jedno mesto ispuštanja vode.
S obzirom na sistem priključivanja koji izaberete, morate da ugradite i adekvatnu
bateriju za mešanje. Kod otvorenog sistema (bez pritiska) ispred grejača morate da
ugradite nepovratni ventil koji sprečava izlivanje vode iz kotla, ako nestane vode u
vodovodnoj mreži.
Kod ovog sistema priključivanja morate da ugradite protočnu bateriju za mešanje. U
bojleru se zbog zagrevanja povećava zapremina vode, što uzrokuje kapljanje iz cevi
baterije za mešanje. Jakim zatezanjem ručice baterije za mešanje nećete sprečiti
kapljanje nego možete samo da pokvarite bateriju.
Kod zatvorenog sistema priključivanja (pod pritiskom), na mestima ispuštanja vode
morate ga ugradite baterije za mešanje, namenjene za rad pod pritiskom. Na
odvodnu cev bi trebalo radi bezbednosti rada obavezno da se ugradi sigurnosni ventil
ili sigurnosnu komponentu koja sprečava povećanje pritiska u kotlu za više od 0,1
MPa (1 bar) više od nominalnog. Otvor za ispuštanje vode na sigurnosnom ventilu
mora obavezno da ima izlaz na atmosferski pritisak.
Kad se voda u kotlu zagreva, povećava se i pritisak, ali do granice koju dozvoljava
sigurnosni ventil. Pošto je vraćanje vode u vodovodnu mrežu blokirano, može doći do
kapanja vode iz odlivnog otvora sigurnosnog vetila. Te kapljice vode možete da
usmerite u odvod preko posebnog sistema za ispuštanje vode, koji morate da
postavite ispod sigurnosnog ventila.
Odvodna cev, smeštena ispod elementa za ispuštanje na sigurnosnom ventilu, mora
da bude nameštena u smeru pravo nadole i na temperaturi na kojoj ne smrzava.
U slučaju da zbog već postavljene instalacije nemate mogućnost da vodu koja kapa
iz sigurnosnog ventila sprovedete u odvod, kapanje možete da izbegnete tako da na
dovodnu cev bojlera ugradite ekspanzione posude zapremine od 3 l. Za pravilan rad
sigurnosnog ventila morate sami periodično da vršite kontrolu da biste uklonili vodeni
kamenac i proverili eventualne blokade sigurnosnog ventila. Kod proveravanja,
A
B
C
D
GBH 50
583 25 187 145
GBH 80
803 115 207 345
GBH 100 948 193 202 495
GBH 120 1103 265 207 645
Характеристики
Остались вопросы?Не нашли свой ответ в руководстве или возникли другие проблемы? Задайте свой вопрос в форме ниже с подробным описанием вашей ситуации, чтобы другие люди и специалисты смогли дать на него ответ. Если вы знаете как решить проблему другого человека, пожалуйста, подскажите ему :)












