Водонагреватели ЭВАН В1-15 13165 - инструкция пользователя по применению, эксплуатации и установке на русском языке. Мы надеемся, она поможет вам решить возникшие у вас вопросы при эксплуатации техники.
Если остались вопросы, задайте их в комментариях после инструкции.
"Загружаем инструкцию", означает, что нужно подождать пока файл загрузится и можно будет его читать онлайн. Некоторые инструкции очень большие и время их появления зависит от вашей скорости интернета.

Рисунок 6. Электрическая схема подключения
- 10 -
ПАНЕЛЬ
РЕ
Блок с ТЭНами
ЭВАН-В1 -7,5
Зажим для
защитного
проводника РЕ
ПУСКАТЕЛЬ
N
А
ПУ
ЛЬ
Т
УПР
АВ
ЛЕНИЯ
1
3
5
2
4
6
Датчик
терморегулятора
НАГРЕВ
ТЕМПЕРАТУРА
СЕТЬ
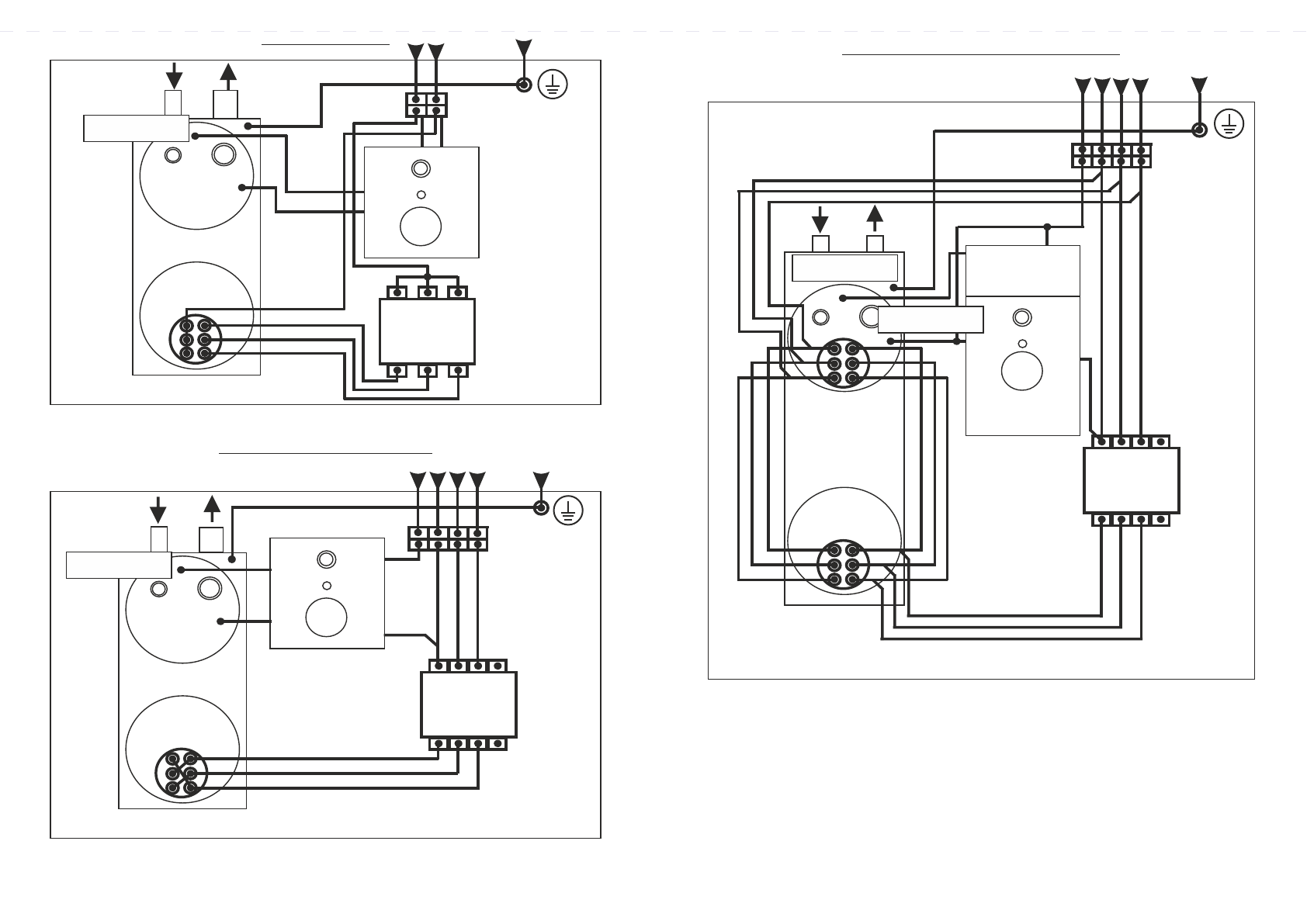
Рисунок 7. Электрическая схема подключения
ПАНЕЛЬ
РЕ
Блок с ТЭНами
ЭВАН-В1 -9; -12; -15
Зажим для
защитного
проводника РЕ
ПУСКАТЕЛЬ
С
N
А
В
С
В
А
ПУЛЬТ
УПРАВЛЕНИЯ
1
3
5
2
4
6
Датчик
терморегулятора
НАГРЕВ
ТЕМПЕРАТУРА
СЕТЬ
- 11 -
Рисунок 8. Электрическая схема подключения
ПАНЕЛЬ
РЕ
Блок с ТЭНами
Блок с ТЭНами
ЭВАН-В1 -18; -21; -24; -30
Зажим для
защитного
проводника РЕ
С
N
А
А
А
А
В
В
В
В
С
С
С
С
В
А
ПУСКАТЕЛЬ
НАГРЕВ
ТЕМПЕРАТУРА
СЕТЬ
ПУЛЬТ
УПРАВЛЕНИЯ
1
3
5
2
4
6
Термовыключатель
без самовозврата
Датчик
терморегулятора
Термовыключатель
без самовозврата
Плата управления
Термовыключатель
без самовозврата
Содержание
- 2 Наименование; Таблица 1; МПа
- 3 водонагревателя; 4 Отметка о проведенных работах
- 4 Устройство водонагревателя; сигнальной ламп
- 5 аварийный несамовозвратный; TERMOSET; Для предотвращения попадания брызг на клеммник подключение
- 6 РЕ; автоматического
- 7 о р г а н и з а ц и и ,; Монтаж; 1 Свидетельство о приемке и продаже
- 8 н е о бхо д и м о в п о м е щ е н и я х с; В соответствии с рисунком 1,; П о д к л ю ч е н и е; Принципиальная схема водопроводной сети; О б р а т и тс я в; 0 Возможные неисправности и методы их устранения*; Рисунок 3 - Вид сзади; Название; Таблица 4
- 9 Рисунок 5. Электрическая схема подключения; СЕТЬ
- 10 Рисунок 6. Электрическая схема подключения; Рисунок 7. Электрическая схема подключения; ПАНЕЛЬ; Рисунок 8. Электрическая схема подключения; ПАНЕЛЬ