Водонагреватели ЭВАН ЭПВН-15 13026 - инструкция пользователя по применению, эксплуатации и установке на русском языке. Мы надеемся, она поможет вам решить возникшие у вас вопросы при эксплуатации техники.
Если остались вопросы, задайте их в комментариях после инструкции.
"Загружаем инструкцию", означает, что нужно подождать пока файл загрузится и можно будет его читать онлайн. Некоторые инструкции очень большие и время их появления зависит от вашей скорости интернета.

ЭПВН-9,45;-12;-15;-18
с пу
ль
та управ
ления
на ТЭНы
Крышк
а с ТЭНами
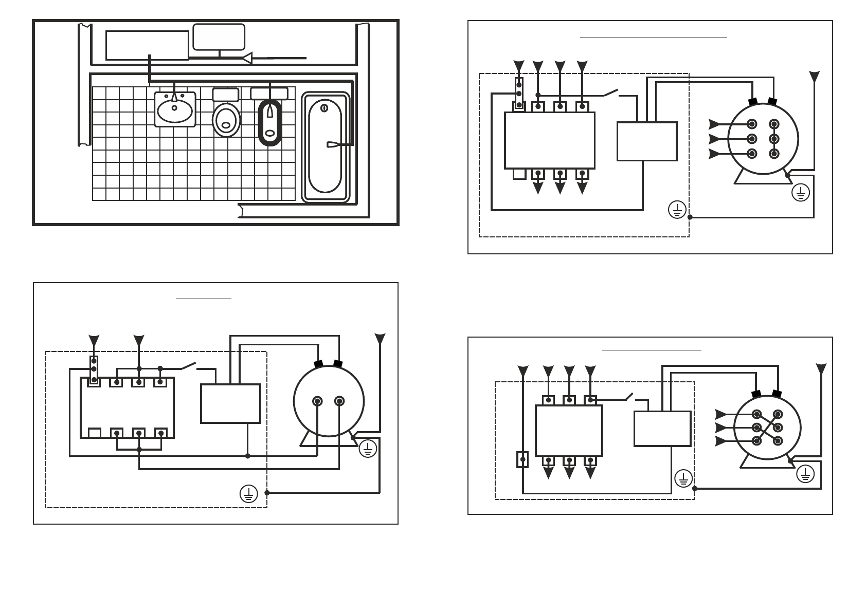
Рисунок 6. Электрическая схема подключения
ПУСКАТЕЛЬ
Электросеть
A
В
C
1
3
5
6
4
2
Датчик
термо-
регулятора
ПУСКАТЕЛЬ
ПЛАТА
УПРАВЛЕНИЯ
155.012-05
ПУЛЬТ УПРАВЛЕНИЯ
Электросеть
РЕ
крышка
с ТЭНом
N
Выключатель
Аварийный
т
ермовыклю-
чатель
Рисунок 5. Электрическая схема подключения
ЭПВН-7,5
- 11 -
- 10 -
Датчик
термо-
регулятора
ПЛАТА
УПРАВЛЕНИЯ
155.012-05
ПУЛЬТ УПРАВЛЕНИЯ
РЕ
Выключатель
Аварийный
т
ермовыклю-
чатель
14
N
13
5
3
1
6
4
2
14
13
Рисунок 7. Электрическая схема подключения
ЭПВН-21;-24;-30
ПЛАТА
УПРАВЛЕНИЯ
155.012-05
ПУЛЬТ
УПРАВЛЕНИЯ
Электросеть
Выключатель
с пу
ль
та управ
ления
на ТЭНы
ПУСКАТЕЛЬ
Т
с
Э
а
к
Н
ш
ам
ы
р
и
К
6
4
2
5
3
1
Датчик
термо-
регулятора
РЕ
Аварийный
т
ермовыклю-
чатель
А
В
С
N
ЭПВН
ЭПВН
ЭПВН
Рисунок 4
.
ФАЗА
ЭВАН-
WATV
вход
воды
обратный
клапан
Содержание
- 2 МПа; Таблица 1; Отметка; Дата; 3 Сведения о сертификации; выдан органом по сертификации ООО
- 3 Продолжение таблицы 1; Наименование
- 4 - руководство по эксплуатации; TERMOSET
- 5 Устройство водонагревателя; секции, состоящей из
- 7 Х р а н и т ь; PE; датчика; Запрещается включать водонагреватель при:; Условное; при напряжении в сети; Таблица 3; Возможная; ческим; 0 Возможные неисправности и методы их устранения
- 8 Монтаж и подключение; п р а в о; СЕТЬ; Техническое обслуживание; право; Техническое обслуживание и ремонтные работы производить при
- 9 одонагравателей; СТУПЕНИ МОЩНОСТИ; указанной; при напряжении; Для дополнительной защиты системы между обратным; Порядок работы; указанной в таблице 1; НАГРЕВ; ПУЛЬТ УПРАВЛЕНИЯ; Рисунок 8. Электрическая схема подключения
- 10 Рисунок 6. Электрическая схема подключения; Рисунок 7. Электрическая схема подключения; ПУЛЬТ; ЭПВН; Рисунок 4; ФАЗА