Водонагреватели Electrolux SP 27 ELITEC - инструкция пользователя по применению, эксплуатации и установке на русском языке. Мы надеемся, она поможет вам решить возникшие у вас вопросы при эксплуатации техники.
Если остались вопросы, задайте их в комментариях после инструкции.
"Загружаем инструкцию", означает, что нужно подождать пока файл загрузится и можно будет его читать онлайн. Некоторые инструкции очень большие и время их появления зависит от вашей скорости интернета.

водонагреватели
7
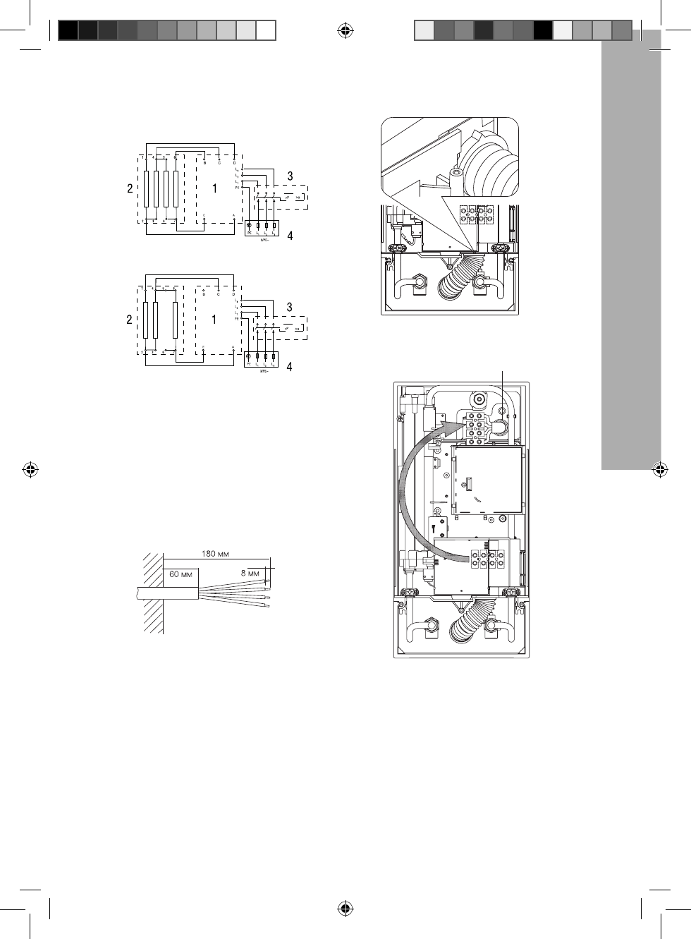
Электрическое соединение сверху
• Откройте подготовленную точку пробоя (S)
в верхней части прибора, надавив тупым
инструментом (например, отверткой).
• Сделайте прорезь в уплотнительном
кольце так, чтобы она соответствовала
размеру кабеля. Входное отверстие в
уплотнительном кольце должно быть
чуть меньше, чем поперечное сечение
кабеля, для того, чтобы обеспечить опти-
мальную защиту от проникания воды.
Вставьте втулку во входное отверстие.
Обязательно используйте уплотнительное
кольцо!
Электрическая схема
SP ELITEC 18–27
SP ELITEC 13
1
электронный
блок;
2
нагревательная
спираль;
3
ограничитель сверхнапорного давления и первы-
шенной температуры;
4
соединительный
терминал.
Электрическое соединение снизу
• Снимите с проводки верхнюю оболочку
приблизительно на 6 см выше того места,
где он выходит из стены. Меньшим отверс-
тием вперед наденте водозащитный кожух
на кабель таким образом, чтобы кожух
прилегал к стене.
Это предотвращает контакт протекаю-
щей воды с электрическими выводами.
Проследите, чтобы это соединение не было
повреждено!
• Откройте несущую часть управляющей
панели направо.
• Оголите проводку и вставьте их в соеди-
нительный терминал в соответствие с при-
нципиальной электрической схемой.
• Поправьте водозащитный кожух, как пока-
зано на рис. 12 и закройте несущую часть
управляющей панели.
• Приложите крышку к прибору и прикрутите
ее крепежным шурупом. После этого можете
поставить обратно лицевую панель.
S
рис. 9
рис. 11
рис. 13
рис. 10
рис. 12
Содержание
- 3 водонагреватели; Описание устройства SP ELITEC; Указания по технике безопасности
- 4 Краткое описание прибора; Пользование водонагревателем; Установка настенного крепления
- 5 Установка прибора; • Закрепите приложенные переходники холод-
- 6 Открытое настенное подключение
- 7 Электрическое соединение сверху; Электрическое соединение снизу
- 8 Первоначальная эксплуатация
- 10 Уход за изделием; • Пластмассовые и никелированные повер-; Утилизация
- 11 Сертификация; Орган по сертификации:
- 12 Га ран тий ный та лон
- 13 ТАЛОН НА ГАРАНТИЙНОЕ ОБСЛУЖИВАНИЕ/













