Водонагреватели Electrolux GWH 12 NanoPlus 2.0 НС-1173658 - инструкция пользователя по применению, эксплуатации и установке на русском языке. Мы надеемся, она поможет вам решить возникшие у вас вопросы при эксплуатации техники.
Если остались вопросы, задайте их в комментариях после инструкции.
"Загружаем инструкцию", означает, что нужно подождать пока файл загрузится и можно будет его читать онлайн. Некоторые инструкции очень большие и время их появления зависит от вашей скорости интернета.

водонагреватели
9
8
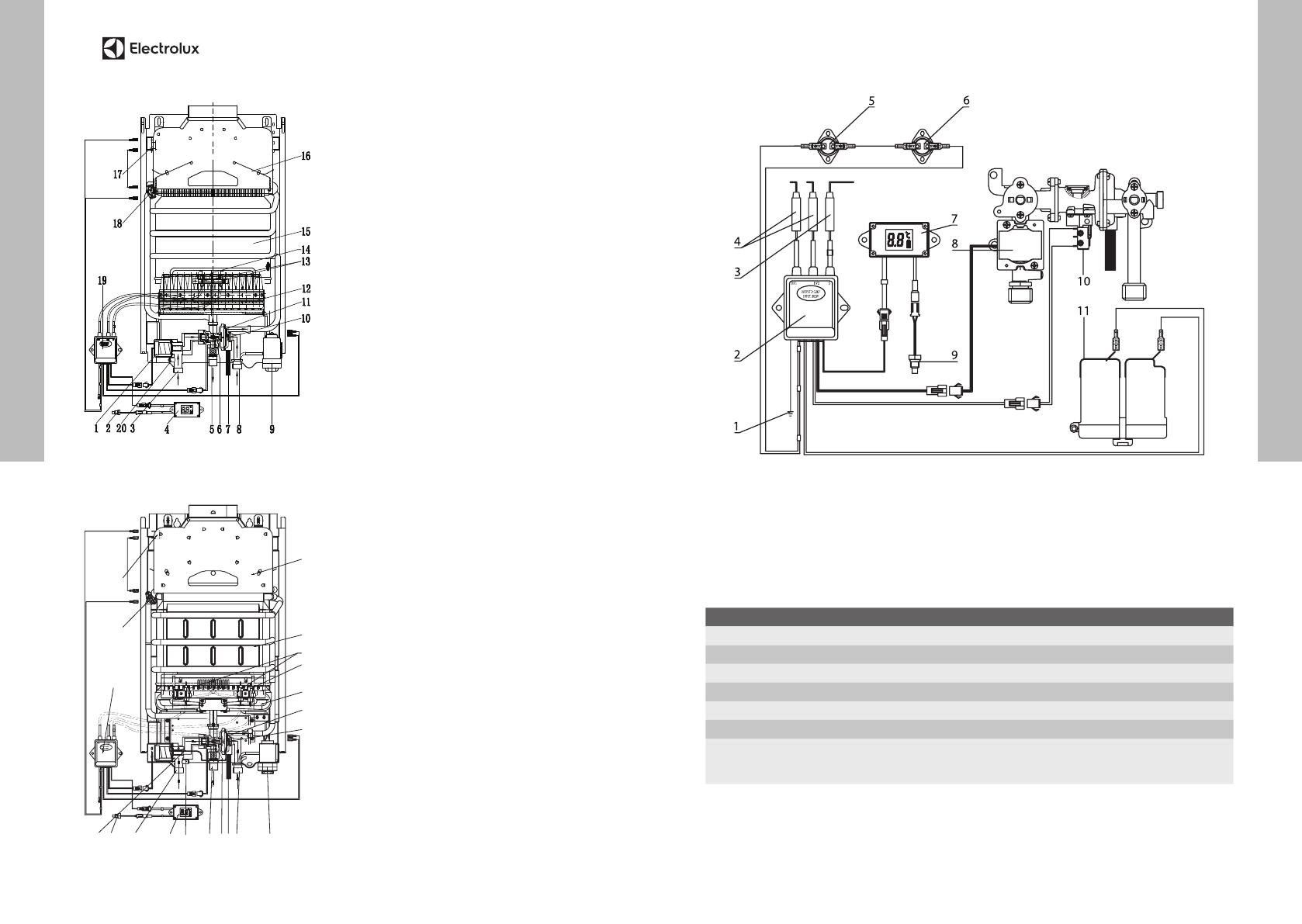
Схема устройства водонагревателя
1. Соленоид газового узла.
2. Датчик температуры горячей воды.
3. Патрубок подвода природного газа.
4. Дисплей.
5. Патрубок вывода горячей воды.
6. Микропереключатель.
7. Клапан слива воды/ограничитель
давления.
8. Патрубок подвода холодной воды.
9. Отсек для батареек.
10. Стабилизатор воды.
11. Мембрана и шток водяного узла.
12. Горелка.
13. Электрод ионизации.
14. Электроды розжига.
15. Теплообменник (медный, произведен-
ный по технологии OXYGEN FREE).
16. Коллектор отвода сгоревших газов
с патрубком для присоединения
дымохода.
17. Датчик защиты от перегрева
отводящихся газов.
18. Датчик защиты от перегрева воды.
19. Модуль электроники.
20. Штуцер проверки давления газа.
1. Соленоид газового узла.
2. Датчик температуры горячей воды.
3. Патрубок подвода природного газа.
4. Дисплей.
5. Патрубок вывода горячей воды.
6. Микропереключатель.
7. Клапан слива воды/ограничитель
давления.
8. Патрубок подвода холодной воды.
9. Отсек для батареек.
10. Стабилизатор воды.
11. Мембрана и шток водяного узла.
12. Горелка.
13. Электрод ионизации.
14. Электроды розжига.
15. Теплообменник (медный, произведен-
ный по технологии OXYGEN FREE).
16. Коллектор отвода сгоревших газов
с патрубком для присоединения
дымохода.
17. Датчик защиты от перегрева
отводящихся газов.
18. Датчик защиты от перегрева воды.
19. Модуль электроники.
20. Штуцер проверки давления газа.
1 2
3
4
5 6 7 8
9
10
11
12
13
14
15
16
17
18
19
20
Рис. 4
Рис. 4
Электрическая схема
1. Клемма для подключения заземления.
2. Модуль управления.
3. Электрод ионизации.
4. Электроды розжига.
5. Датчик защиты от перегрева отводя-
щихся газов.
6. Датчик защиты от перегрева воды.
7. Дисплей.
8. Соленоид газового узла.
9. Датчик температуры горячей воды.
10. Микропереключатель.
11. Отсек для батареек.
Размер соединения
В аппарате
Внешние
Трубопровод
Природный газ
1/2"
1/2"
Холодная вода (вход)
1/2"
1/2"
Горячая вода (выход)
1/2"
1/2"
Дымоход
Диаметр дымохода
GWH 10/12
GWH 14
105 мм (внутренний)
122 мм (внутренний)
108 мм (внешний)
125 мм (внешний)
Содержание
- 3 Панель управления; Эксплуатация; • Для увеличения температуры поверните; Выключение; На работы по уходу и техническому; да холодной воды в водонагреватель
- 4 Описание водонагревателя; Модель
- 5 Схема устройства водонагревателя; Размер соединения
- 6 Монтаж водонагревателя
- 7 Устранение неисправностей; Водонагреватель проточный газовый; Неисправность; Утилизация; Срок службы составляет 5 лет.; Гарантия; Сертификация; Товар сертифицирован на территории
- 14 Га ран тий ный та лон













