Водонагреватели Electrolux EWH 50 SL - инструкция пользователя по применению, эксплуатации и установке на русском языке. Мы надеемся, она поможет вам решить возникшие у вас вопросы при эксплуатации техники.
Если остались вопросы, задайте их в комментариях после инструкции.
"Загружаем инструкцию", означает, что нужно подождать пока файл загрузится и можно будет его читать онлайн. Некоторые инструкции очень большие и время их появления зависит от вашей скорости интернета.

водонагреватели
5
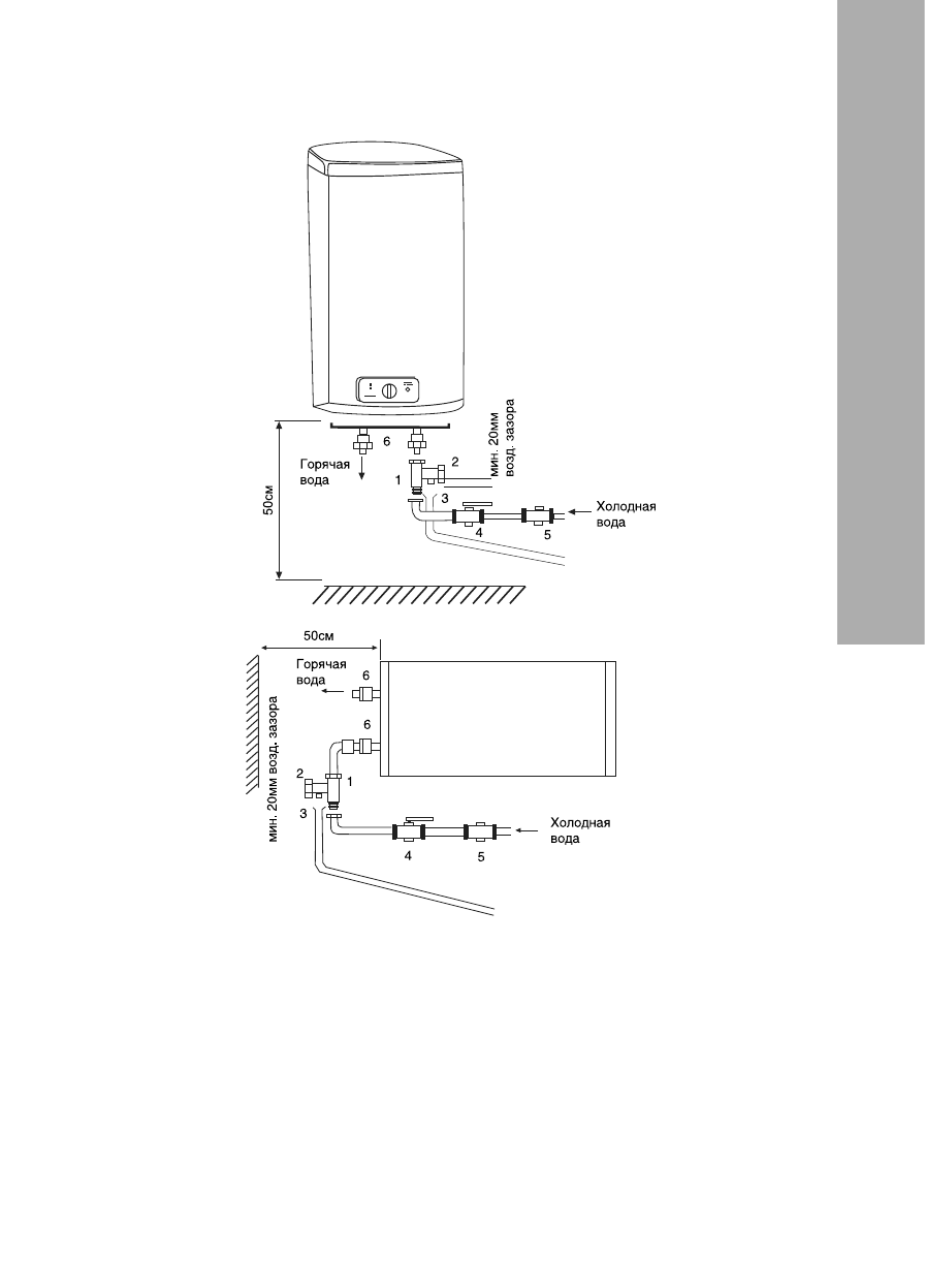
1. Пред ох ра ни тель ный кла пан (пред на зна чен для сбро са дав ле ния во ды в экс тремаль ных слу ча ях)
(прилагается к водонагревателю).
2. Руч ка кла па на.
3. Слив ная тру ба под ре дук ци он ным кла па ном (не входит в комплект).
4. Вен тиль (не входит в комплект).
5. Ре дук ци он ный кла пан (дол жен быть ус та нов лен в слу чае ес ли дав ле ние во ды
пре
вы ша ет 5 кг/см
2
, не вхо дит в ком плект).
6. Плас т мас со вые изо ли ру ю щие втул ки (при ла га ют ся к во до на гре ва те лю).













