Водонагреватели Electrolux EWH 100 Formax DL - инструкция пользователя по применению, эксплуатации и установке на русском языке. Мы надеемся, она поможет вам решить возникшие у вас вопросы при эксплуатации техники.
Если остались вопросы, задайте их в комментариях после инструкции.
"Загружаем инструкцию", означает, что нужно подождать пока файл загрузится и можно будет его читать онлайн. Некоторые инструкции очень большие и время их появления зависит от вашей скорости интернета.

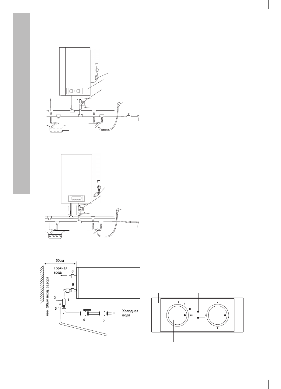
6
electrolux
Шнур
питания
Ванна
Смеситель
Магистраль
холодного
водоснаб-
жения
Душевая
насадка
Обратный
предохранительный
клапан
Кран на входе
холодной воды
Выход
горячей
воды
Вход холодной воды
Водонагреватель
УЗО
Тройник
водоразбора
Рис. 7.
Шнур
питания
Тройник
водоразбора
Ванна
Смеситель
Магистраль
холодного
водоснаб-
жения
Водонагреватель
Душевая
насадка
Обратный
предохранительный
клапан
Кран на входе
холодной воды
Выход
горячей
воды
Вход холодной воды
УЗО
Рис. 8.
Рис. 9.
Подключение к электрической сети
Все водонагреватели накопительного типа
данной серии рассчитаны на подключение к
электрической сети с однофазным напряжени-
ем 220/230 В. Перед подключением убедитесь,
что параметры электросети в месте подключе-
ния соответствуют параметрам, указанным на
табличке с техническими данными прибора.
При установке водонагревателя следует
соблюдать действующие правила электробе-
зопасности.
При установке водонагревателя в ванной ком-
нате или туалете следует принимать во внима-
ние ограничения, связанные с существованием
запрещенного и защитного объемов.
Запрещенный объем – это пространство, огра-
ниченное тангенциальными и вертикальными
плоскостями по отношению к внешним краям
ванны, унитаза или душевого блока и плоско-
стью, расположенной над ними или над полом,
если сантехника смонтирована на полу, на
высоте 2,25 м.
Защитный объем – это пространство, ограни-
чивающие горизонтальные плоскости которого
совпадают с плоскостями запрещенного объ-
ема, а вертикальные плоскости отстоят от
соответствующих плоскостей запрещенного
объема на 1 метр.
Эксплуатация
Наполнение водой
После установки водонагревателя откройте
вентиль подачи воды. Откройте кран горя-
чей воды на смесителе. Как только водона-
греватель наполнится, из него потечет вода,
закройте кран горячей воды на смесителе и
убедитесь в отсутствии протечек. В случае
неуверенности в том, есть ли в водонагревате-
ле вода, не подключайте его к электросети.
Панель управления Formax
heating
ON
ECO 55°
TEMP
OFF
1
2
3
5
4
Рис. 10.













