Водонагреватели Electrolux EWH 10 Q-bic O - инструкция пользователя по применению, эксплуатации и установке на русском языке. Мы надеемся, она поможет вам решить возникшие у вас вопросы при эксплуатации техники.
Если остались вопросы, задайте их в комментариях после инструкции.
"Загружаем инструкцию", означает, что нужно подождать пока файл загрузится и можно будет его читать онлайн. Некоторые инструкции очень большие и время их появления зависит от вашей скорости интернета.

водонагрівачі
23
22
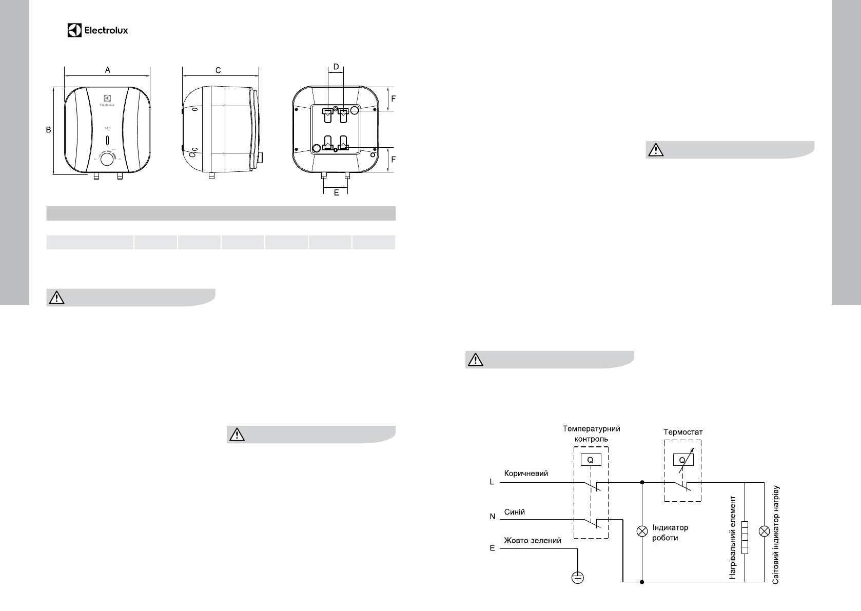
Габаритні розміри
Модель
A, мм
B, мм
C, мм
D, мм
E, мм
F, мм
EWH 10 Q-bic O/U
324
324
315
66
100
105
EWH 15 Q-bic O/U
368
368
340
66
100
162
Догляд та технічне
обслуговування
Увага!
Перед обслуговуванням завжди
відключайте його від електричної мережі.
Для забезпечення тривалого терміну
служби і збереження діючої гарантії на
внутрішню Водовмісні ємність необхідно
не пізніше, ніж через рік після дати
продажу провести технічне обслугову-
вання силами вик лючно авторізованих
сервісних центрів, які мають вк лючати
в себе обов'язкову перевірку наявності
накипу на ТЕНі і внутрішній порожнини
водомісткими ємності, а так само стан
магнієвого анода. У разі 30% і більше зносу
магнієвого аноду - анод необхідно замінити
на новий, рекомендований виробником.
За результатами огляду водонагрівача
при першому технічному обслуговуванні,
встановлюється періодичність регуляр-
ного, технічного обслуговування, якого
необхідно дотримуватися протягом всього
періоду експлуатації приладу
але не рідше
одного разу на рік
. У разі зміни адреси
експлуатації приладу, а також виявлених в
результаті чергового технічного обслугову-
вання змін умов експлуатації (якість води),
регулярність технічного обслуговування
може бути переглянута. Підтвердженням
проведення технічного обслуговування є
заповнений пункт в таблиці проведених ТО.
У регіонах з особливо жорсткою водою,
з водою, що вк лючає в себе корозійно
активні домішки, або водою, що не
відповідає діючим нормам ДБН України,
може знадобитися частіше проводити таку
перевірку. Для цього потрібно отримати
відповідну інформацію у фахівця або прямо
на підприємстві, що забезпечує водопо-
стачання! У разі, якщо не було проведено
технічне обслуговування, або при повно-
му зносі /відсутності магнієвого аноду у
водонагрівачі гарантійні зобов'язання на
водонагрівач анулюються.
Увага!
Накопичення накипу на ТЕНі і наявність
осаду у внутрішньому баку може при-
вести до виходу з ладу водонагрівача і є
підставою, для відмови в гарантійному
обслуговуванні. Регулярне технічне обслу-
говування, є профілактичним заходом і не
входить в гарантійні зобов'язання.
У забороненому просторі не дозволяється
встановлювати вимикачі, розетки і
освітлювальні прилади. У захисно-
му просторі установка вимикачів
забороняється, однак, можна встановлюва-
ти розетки з заземленням. (див. Визначення
захисного і забороненого обсягів
(просторів) на стор. 6 та 7.
Водонагрівач слід встановлювати за межа-
ми забороненого обсягу, щоб на нього не
потрапляли струмені води.
Підк лючення приладу до електромережі
повинно бути здійснено через виділену
розетку із заземленням, підк лючену до
індивідуального автоматичного вимикача в
розподільному щиті.
Для забезпечення безпеки роботи
водонагрівача повинен бути встановлений
автомат відповідного номіналу.
Підк лючення до електромережі повинно
вк лючати в себе заземлення. Штепсель
водонагрівача зі спеціальним роз'ємом для
заземлення слід вставляти тільки в розетку,
що має відповідне заземлення.
Регулятор температури нагріву. Положення
high: максимальний нагрів. Положення low:
мінімальний нагрів.
При щоденному використанні
рекомендується тримати водонагрівач
вк люченим в мережу, оскільки термостат
вк лючає нагрів тільки тоді, коли це потрібно
для підтримки заданої температури.
Злив води. З водонагрівача слід повністю
злити воду якщо температура в приміщенні,
де він встановлений може опуститися
нижче 0 °С. Злив можна зробити за допомо-
гою запобіжного к лапану, при цьому мож-
ливо підтікання з-під штока к лапана.
Увага!
Для зливу можна передбачити трійник з
вентилем між клапаном і втулкою.
Перед зливом води з водонагрівача не
забудьте:
• від'єднати його від мережі;
• закрити вентиль входу води;
• відкрити кран гарячої води.
Регулярно проводьте технічне обслугову-
вання вашого водонагрівача за допомогою
фахівців авторизованого сервісного центру.
Увага!
Ні в якому разі не знімайте кришку
водонагрівача, не відключивши його попе-
редньо від електромережі.
Гарантійне обслуговування здійснюється
відповідно до гарантійних зобов'язань,
перерахованих в гарантійному талоні.
Виробник залишає за собою право на вне-
сення змін в конструкцію і характеристики
приладу, без попереднього повідомлення.
Термін служби водонагрівача становить 8
років.
Схема електричних з'єднань
Содержание
- 3 Панель управления; Подключение к водопроводу
- 4 Подключение к электрической; Предохранительный клапан следует
- 5 Устранение неполадок; Отказы; Технические характеристики; Модель
- 6 Габаритные размеры
- 7 Утилизация; Товар соответствует требованиям:; СИА «Грин Трейс»; Импортер и уполномоченное изготовите-; Electrolux is a registered trademark used; Для заметок
- 14 Гарантийный талон
Характеристики
Остались вопросы?Не нашли свой ответ в руководстве или возникли другие проблемы? Задайте свой вопрос в форме ниже с подробным описанием вашей ситуации, чтобы другие люди и специалисты смогли дать на него ответ. Если вы знаете как решить проблему другого человека, пожалуйста, подскажите ему :)