Водонагреватели Drazice OKC NTR/BP , 500 л 121370101 - инструкция пользователя по применению, эксплуатации и установке на русском языке. Мы надеемся, она поможет вам решить возникшие у вас вопросы при эксплуатации техники.
Если остались вопросы, задайте их в комментариях после инструкции.
"Загружаем инструкцию", означает, что нужно подождать пока файл загрузится и можно будет его читать онлайн. Некоторые инструкции очень большие и время их появления зависит от вашей скорости интернета.

-
13
-
1.4.2
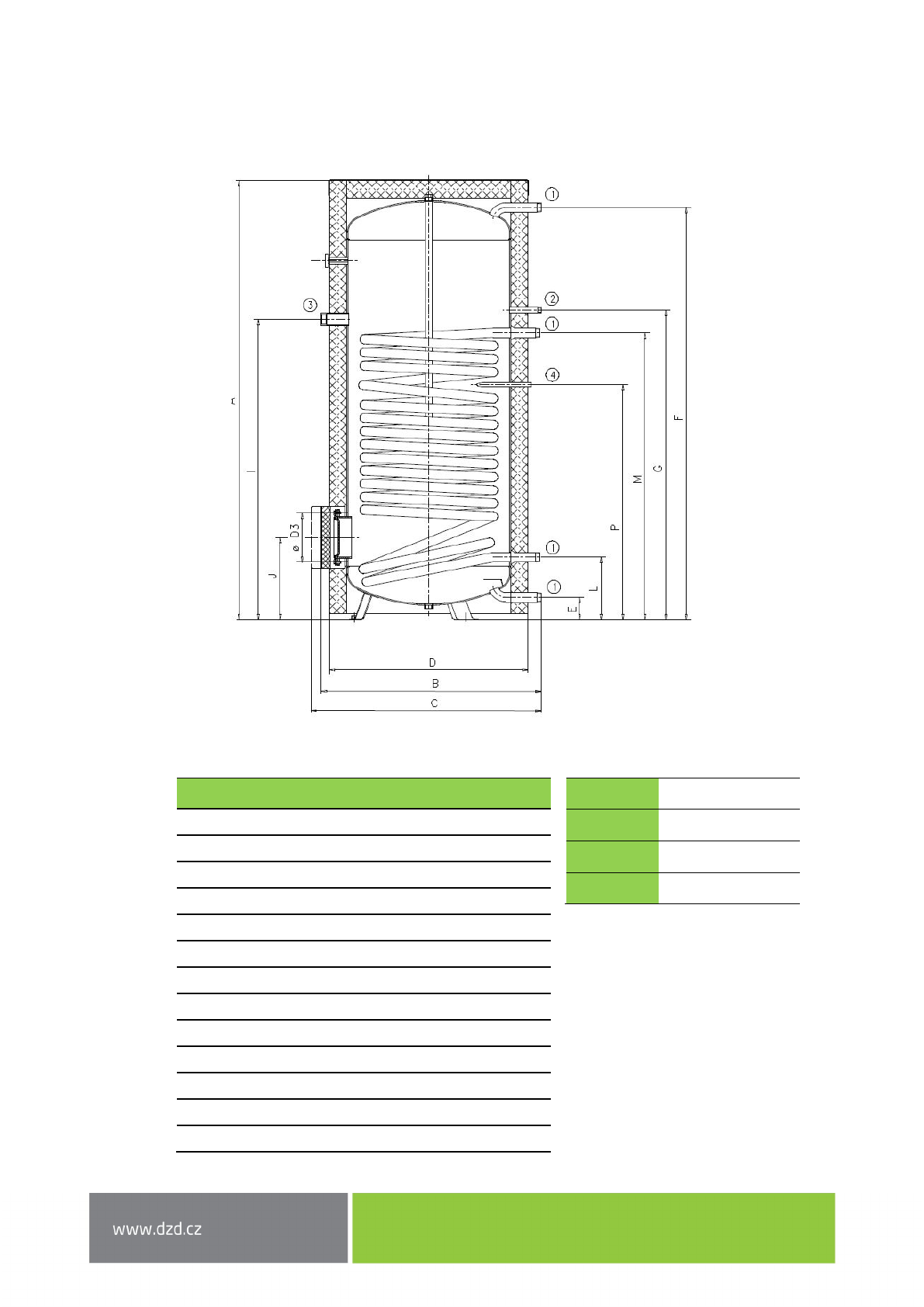
КОНСТРУКЦИЯ
И
ОСНОВНЫЕ
РАЗМЕРЫ
ВОДОНАГРЕВАТЕЛЯ
OKC 750 NTR/BP, OKC 1000 NTR/BP
Рисунок
5
Таблица
7
OKC 750 NTR/BP
OKC 1000 NTR/BP
A
2030
2050
B
1030
1130
C
max. 1140
max. 1240
D
910
1010
D3
225
225
E
106
103
F
1890
1900
G
1422
1490
I
1380
1375
J
383
386
L
293
296
M
1319
1324
P
1081
1088
5/4" внешний
3/4" внешний
6/4" внутренний
1/2" внутренний