Водонагреватели DEXP WH-SR030ST - инструкция пользователя по применению, эксплуатации и установке на русском языке. Мы надеемся, она поможет вам решить возникшие у вас вопросы при эксплуатации техники.
Если остались вопросы, задайте их в комментариях после инструкции.
"Загружаем инструкцию", означает, что нужно подождать пока файл загрузится и можно будет его читать онлайн. Некоторые инструкции очень большие и время их появления зависит от вашей скорости интернета.

10
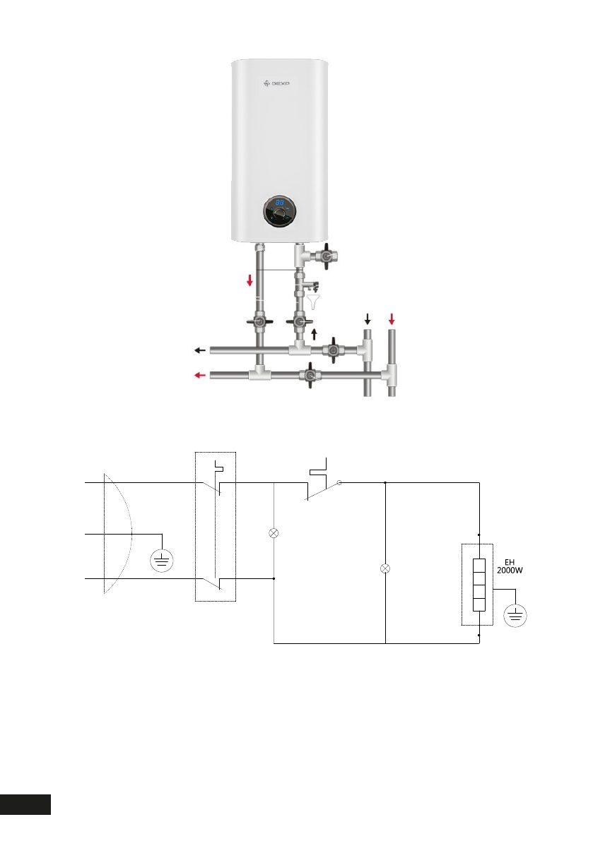
Электрическая схема
Примечание
: для подключения электропитания к бойлеру рекомендуется
провести от распределительного щита квартиры отдельный кабель сечением
медной жилы не менее 2,5 мм, а сам распределительный щит обязательно
оснастить прибором УЗО для защиты от поражения электрическим током в
случае утечки электричества на корпус бойлера.
Желтый /Зеленый
Нулевой
(защитный)
Фаза
Нулевой
(рабочий)
Термостат
Термовыключатель
Коричневый
Коричневый
Красный
Лампа наг
рева
Синий
Синий
Индик
ат
ор пи
тани
я
Нулевой
(защитный)
Характеристики
Остались вопросы?Не нашли свой ответ в руководстве или возникли другие проблемы? Задайте свой вопрос в форме ниже с подробным описанием вашей ситуации, чтобы другие люди и специалисты смогли дать на него ответ. Если вы знаете как решить проблему другого человека, пожалуйста, подскажите ему :)








