Водонагреватели Bosch WRD10-2 G23, GWH 10-2 COD H 7701331616 - инструкция пользователя по применению, эксплуатации и установке на русском языке. Мы надеемся, она поможет вам решить возникшие у вас вопросы при эксплуатации техники.
Если остались вопросы, задайте их в комментариях после инструкции.
"Загружаем инструкцию", означает, что нужно подождать пока файл загрузится и можно будет его читать онлайн. Некоторые инструкции очень большие и время их появления зависит от вашей скорости интернета.

Технічні характеристики та габаритні розміри
| 5
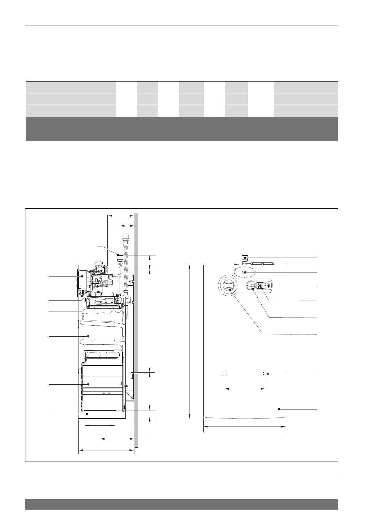
UA
6 7
20 608 984 (2010/1
0)
2.6
Габаритні розміри
Рис. 1
1
Кожу
х
2
Отвір для
кріп
лення до
стіни
3
Регулятор
температури/об'єму
4
Ре
гу
лят
ор
поту
жнос
ті
5
Цифр
овий дис
плей
6
Вими
кач/індикаторна лампоч
ка низько
го т
иск
у вод
и
7
Ін
ди
като
рн
а ламп
очка ст
ану пал
ьн
ика
8
Штуц
ер
підк
люч
енн
я газ
у
9
Підключ
ення до газ
ов
ивідної тру
би
10
Димохід
з п
рис
троє
м ко
нтролю
тяги
11
Теплоо
бмінник
12
Пальник
13
Газовий клап
ан
14
Запалю
ва
льн
ий бл
ок
10
9
1 1
12
14
13
1
2
3
4
6
5
7
8
B
A
H
C
50
97
125
D
220
G
F
E
63.5
6720608984-01.1av
Га
баритн
і розміри
(мм)
A
B
C
D
E
F
G
H (
Ø
)
Прир
одний
Скра
плен
ий
WRD10-2 G
310
58
0
228
112,5
463
60
25
3/4”
WRD13-2 G
350
65
5
228
132,5
510
95
30
3/4”
WRD15-2 G
425
65
5
425
132,5
425
65
30
3/4”
Таб. 4
Габаритні
розміри
Содержание
- 2 Содержание; Регулировка давления перед форсункой 15
- 3 Знак
- 4 Данные о приборе; Категория, тип и допуск; Модель
- 5 Габаритные; Габаритные размеры
- 6 Функциональная схема
- 7 Электросхема; Принцип действия
- 8 Технические характеристики; Символ
- 9 Эксплуатация; Цифровой индикатор; Перед вводом в эксплуатацию; Включение; Объем потока воды
- 10 Регулировка мощности; Рис 11 Опорожнение прибора
- 11 Предписания; Следует соблюдать все местные законодательные
- 12 Монтаж (только для авторизированных фирмой Бош специалистов); Важные указания; Требования к помещению для монтажа
- 13 Дымоход; Монтаж прибора; Прибор; Площадь поперечного сечения для подачи
- 14 Подключение подачи воды; Рис 13 Подключение подачи воды; Принцип действия гидрогенератора; AC; Подключение подачи газа
- 15 Заводская настройка; Точка измерения давления перед форсункой
- 16 Использовать только оригинальные комплекты для; Переоборудование может производить только; Давление перед форсункой
- 19 Устранение неисправностей; Неисправность
- 21 ГАРАНТИЙНЫЙ ТАЛОН













