Водонагреватели Bosch WR 15-2B (Therm 4000 O) - инструкция пользователя по применению, эксплуатации и установке на русском языке. Мы надеемся, она поможет вам решить возникшие у вас вопросы при эксплуатации техники.
Если остались вопросы, задайте их в комментариях после инструкции.
"Загружаем инструкцию", означает, что нужно подождать пока файл загрузится и можно будет его читать онлайн. Некоторые инструкции очень большие и время их появления зависит от вашей скорости интернета.

6 720 608 980 (2016/10)
Therm 4000 O
6 | Данные о приборе
2.7
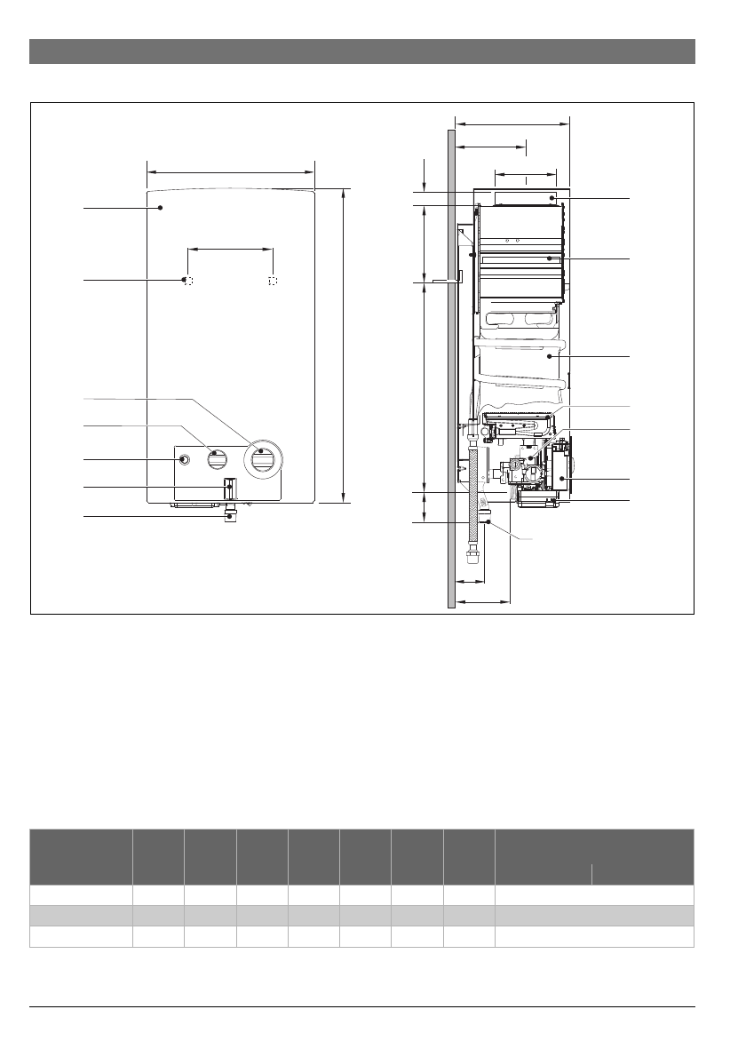
Габаритные размеры
Рис. 1
[1] Кожух
[2] Петли для навески
[3] Регулятор температуры/потока
[4] Регулятор мощности
[5] Выключатель/контрольный светодиод состояния
батареек
[6] Контрольный светодиод горелки
[7] Патрубок для подключения газопровода
[8] Патрубок для подключения к отводу дымовых газов
[9] Защитный коллектор дымовых газов с контролем тяги
[10] Камера сгорания
[11] Горелка
[12] Блок газовой арматуры
[13] Розжиг
[14] Блок для батареек
9
8
10
11
13
14
12
1
2
3
4
5
6
7
B
A
H
C
50
97
125
D
220
G
F
E
63.5
6720608RU_WRB-01.1JS
Размеры (мм)
A
B
C
D
E
F
G
H (Ø )
Природный газ Сжиженный газ
WR 10...
310
580
228
112,5
463
60
25
¾ ”
WR 13...
350
655
228
132,5
510
95
30
¾ ”
WR 15...
425
655
334
132,5
540
65
30
¾ ”
Таб. 4
Размеры