Водонагреватели Bosch WR 13-2 P23, GWH 13-2 CO P 7702331716 - инструкция пользователя по применению, эксплуатации и установке на русском языке. Мы надеемся, она поможет вам решить возникшие у вас вопросы при эксплуатации техники.
Если остались вопросы, задайте их в комментариях после инструкции.
"Загружаем инструкцию", означает, что нужно подождать пока файл загрузится и можно будет его читать онлайн. Некоторые инструкции очень большие и время их появления зависит от вашей скорости интернета.

Технічні характеристики і габарити
|
5
UA
6 720 608 988 (2009
/12)
2.6
Габарити
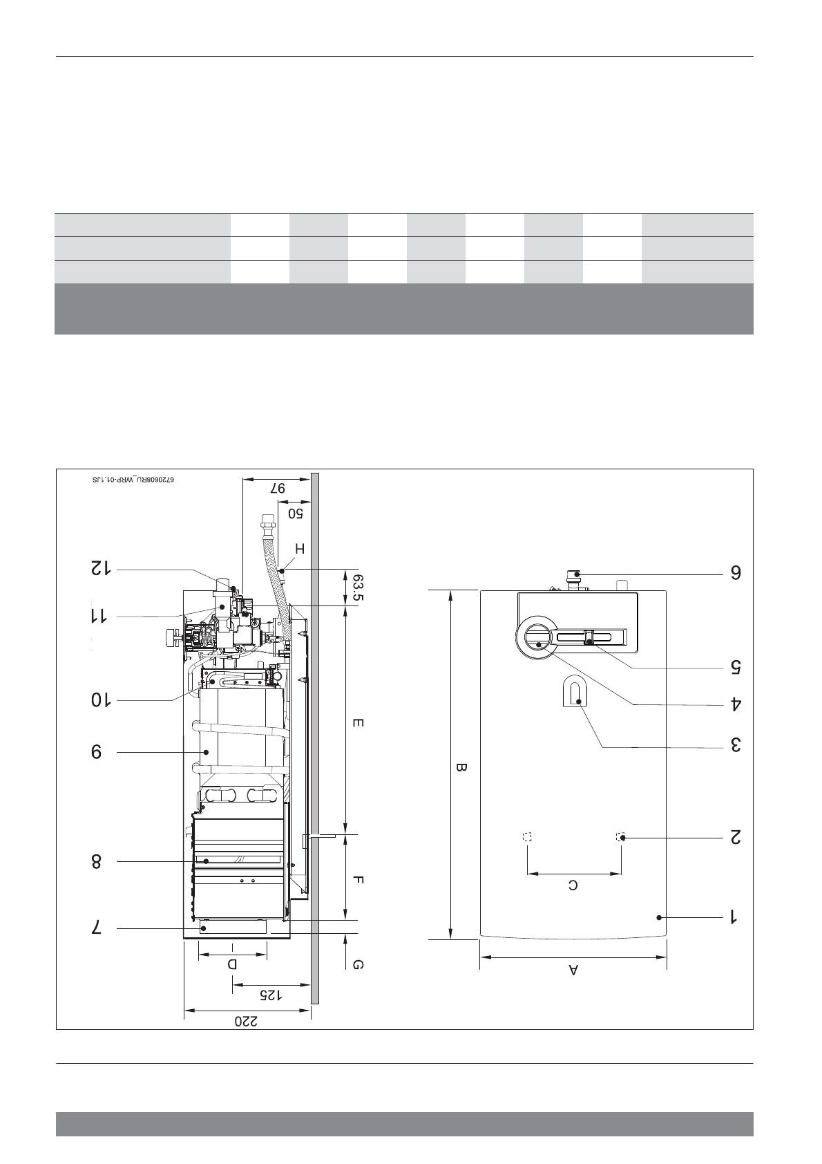
Рис. 1
1
Передня кришка
2
Отвір для крпі
лення до
стіни
3
Вікно дл
я сп
остере
ження
4
Регулятор
температури
5
Регулятор
виходу
6
Газоз
'єдну
вач
7
Штуцер вип
ускної труби
8
Витяжка з пристроєм контролю
тяги
9
Теплоо
бмінник
10
Газовий клап
ан
11
П'єзо
запалюв
ання
12
Водяний клапан
Габарити (
мм)
A
B
C
D
E
F
G
H (
Ø
)
Прир
одний
Скраплени
WR10-2 P
310
580
228
112,5
463
60
25
3/4 дюймів
WR13-2 P
350
655
228
132,5
510
95
30
3/4 дюймів
WR15-2 P
425
655
334
132,5
540
65
30
3/4 дюймів
Таб. 4
Габарити
Содержание
- 2 Содержание; Пояснения символов и указания по технике; Регулировка давления перед форсункой 15; Техобслуживание
- 3 Пояснения символов и указания по технике безопасности; Пояснения условных обозначений; Знак
- 4 Данные о приборе; Категория, тип и допуск; Модель
- 5 Габаритные размеры; Природный; Таб. 4 Габаритные размеры
- 6 Функциональная схема
- 7 Принцип действия
- 8 Технические характеристики; Символ
- 9 Эксплуатация; Перед вводом в эксплуатацию; Открыть запорный вентиль холодной воды.; Включить прибор; Нажать кнопку пьезорозжига.; Регулировка мощности
- 10 Регулировка расхода воды; При наличии риска замерзания:
- 11 Предписания
- 12 Монтаж (только для авторизированных фирмой Бош специалистов); Важные указания; Требования к помещению для монтажа
- 13 Температура поверхностей; . Специальные меры по; Подача воздуха; Монтаж прибора; Отвинтить крепежные винты кожуха.; Прибор; Таб. 6 Площадь поперечного сечения для подачи
- 14 Подключение подачи воды; Рис 11 Подключение водопровода; Подключение подачи газа; Наличие остаточных веществ
- 15 Заводская настройка; Природный газ; Рис 12 Точка измерения давления перед форсункой
- 16 оригинальные комплекты для; Таб. 7 Давление перед форсункой
- 19 Устранение неисправностей; Неисправность; Сниженный проток воды.
- 21 ГАРАНТИЙНЫЙ ТАЛОН













