Водонагреватели Bosch W 10 KB, 7736500992 - инструкция пользователя по применению, эксплуатации и установке на русском языке. Мы надеемся, она поможет вам решить возникшие у вас вопросы при эксплуатации техники.
Если остались вопросы, задайте их в комментариях после инструкции.
"Загружаем инструкцию", означает, что нужно подождать пока файл загрузится и можно будет его читать онлайн. Некоторые инструкции очень большие и время их появления зависит от вашей скорости интернета.
Загружаем инструкцию

6 720 800 668 (2012/09)
Therm 2000
6 |
Основные сведения о приборе
2.8
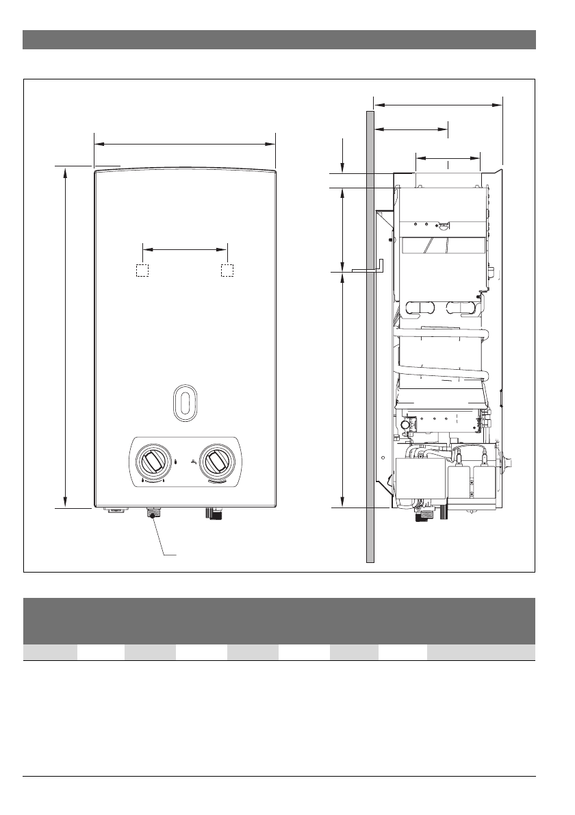
Размеры
Рис. 1
125
D
220
6720800668-01.1V
G
F
E
H
A
B
C
A
B
C
D
E
F
G
H
Природн
GPL
W 10 KB
310
580
220
112,5
495
60
25
1/2”
Таб. 5
Размеры
Содержание
- 2 Содержание
- 3 Пояснение обозначений и указания по технике безопасности; Расшифровка символов; Закрыть газовый клапан.; Знак; Действие
- 4 Основные сведения о приборе; Назначение и использование прибора; Модль
- 5 Описание прибора; Предохранительные устройства:
- 6 Природн; Размеры
- 7 Устройство прибора
- 9 Технические параметры
- 10 Инструкции по эксплуатации; Батарейки; Установка батареек; Отсек для батареек; Продукты горения газа
- 11 Перед пуском прибора в эксплуатацию; Включить; Нажать выключатель в позицию ON.; Выключить; Нажать выключатель в позицию Off.; Регулирование мощности; Для выбора мощности прибора:
- 12 Регулятор расхода/температуры воды; В приборе не происходит зажигание.; Очистка передней панели; Ослабить винт слива воды на приборе (
- 13 Рис. 11 Винт слива воды; Технические нормы; Важная информация
- 14 Монтаж (только квалифицированными специалистами); Выбор места установки; Указания по выбору места установки; что тот не превышает 2м; Дымовые газы; Избегать изменения направления.
- 15 Крепление аппарата; Для снятия передней панели; Открутить передние крепежные винты.; Подключение к водопроводу; Установите аксессуар для подключения воды (; Прибор; Полезные площади подачи воздуха
- 16 Рис. 14 Подключение к водопроводу; Подключение к сети газоснабжения
- 17 Проверить чистоту газопроводной трубы.; Монтаж с подключением к газовой сети; Включение аппарата; Включить выключатель прибора (; Наладка (только квалифицированными специалистами); Наладка прибора; Приборы подготовлены к работе при
- 18 Техническое обслуживание (только квалифицированными; Регулирование давления на форсунках; Подключение манометра; Рис. 15 Точки измерения давления; Перенастройка на другой вид газа; Инструкции по обслуживанию прибора; Регулярное техобслуживание; Проверка рабочего состояния прибора; Давление перед форсункой
- 19 Датчик контроля тяги
- 20 Устранение неполадок; Проблема
- 21 Охрана окружающей среды/утилизация
- 22 ГАРАНТИЙНЫЙ ТАЛОН













