Водонагреватели Bosch EWH 35B - инструкция пользователя по применению, эксплуатации и установке на русском языке. Мы надеемся, она поможет вам решить возникшие у вас вопросы при эксплуатации техники.
Если остались вопросы, задайте их в комментариях после инструкции.
"Загружаем инструкцию", означает, что нужно подождать пока файл загрузится и можно будет его читать онлайн. Некоторые инструкции очень большие и время их появления зависит от вашей скорости интернета.

6
|
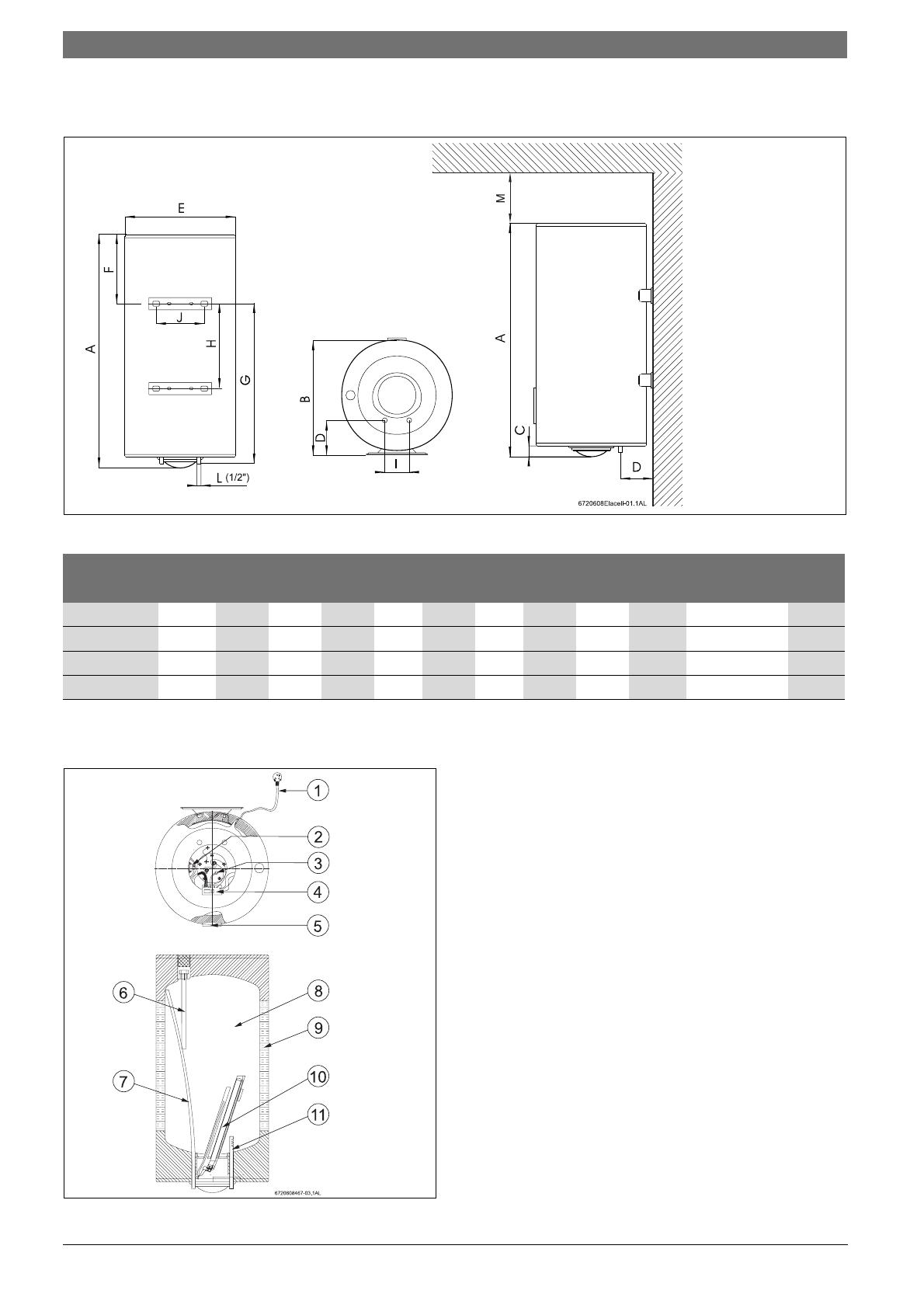
Размеры и технические характеристики
RU
8 739 722 706
2.5
Размеры
Рис 2
2.6
Компоненты
Рис 3
1
Шнур (1,8 м) + штепсельная вилка
2
Предохранитель-термостат
3
Датчик, встроенный в резервуар
4
Блок питания
5
Панель управления
6
Магниевый анод
7
Патрубок слива горячей воды 1/2’’
8
Резервуар
9
Полиуретановая теплоизоляция (не содержащая
хлорфторуглеводородов)
10
Нагревательные элементы
11
Патрубок подачи холодной воды 1/2’’
Модель
A
B
C
D
E
F
G
H
I
J
L
(Диаметр)
M
EWH 35B
624
408
47
110
391
206
402
116
100
197
1/2”
201
EWH 50B
682
474
47
146
452
234
440
116
100
197
1/2”
241
EWH 80B
948
474
47
146
452
293
642
347
100
197
1/2”
336
EWH 100B
1128
474
47
146
452
341
774
400
100
197
1/2”
401
Таб. 2
Размеры в миллиметрах












