Baxi UBVT 200…400 SC_200…500 DC - Инструкция по эксплуатации - Страница 23

Водонагреватели Baxi UBVT 200…400 SC_200…500 DC - инструкция пользователя по применению, эксплуатации и установке на русском языке. Мы надеемся, она поможет вам решить возникшие у вас вопросы при эксплуатации техники.

Если остались вопросы, задайте их в комментариях после инструкции.

"Загружаем инструкцию", означает, что нужно подождать пока файл загрузится и можно будет его читать онлайн. Некоторые инструкции очень большие и время их появления зависит от вашей скорости интернета.
Страница:
/ 40
Загружаем инструкцию
background image

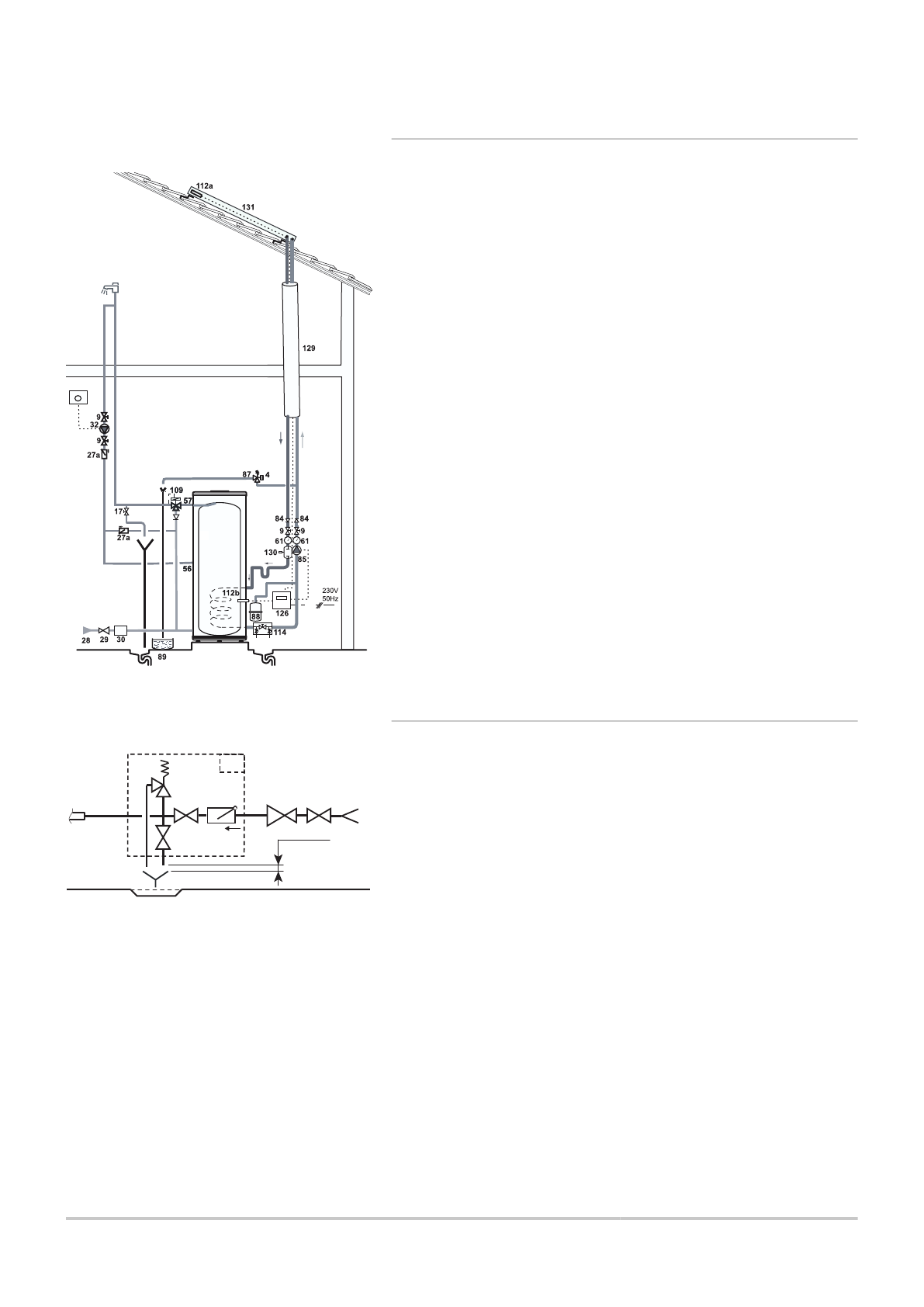
4.7.4.

 

   

 

4.7.5.

 

 (

 

 

,

 

)

9

 

17

 

27

 

28

 

 

-

 

29

 

30

 

54

 

 

 

 

   

   2-4   

 

Н

 

 7 

 (0.7 

)

 : 

 

10 

 (1.0 

)

M001673-E

L000370-B

d

(54)

2 cm

9

9

29

17

27

30

28

СBТР 200...400 ПC СBТР 200...500 АC

4.

12/02/2013 - 300027520-001-02

22

Характеристики

Оцените статью
tehnopanorama.ru
Остались вопросы?

Не нашли свой ответ в руководстве или возникли другие проблемы? Задайте свой вопрос в форме ниже с подробным описанием вашей ситуации, чтобы другие люди и специалисты смогли дать на него ответ. Если вы знаете как решить проблему другого человека, пожалуйста, подскажите ему :)

Задать вопрос

Часто задаваемые вопросы
Как посмотреть инструкцию к Baxi UBVT 200…400 SC_200…500 DC?
Необходимо подождать полной загрузки инструкции в сером окне на данной странице
Руководство на русском языке?
Все наши руководства представлены на русском языке или схематично, поэтому вы без труда сможете разобраться с вашей моделью
Как скопировать текст из PDF?
Чтобы скопировать текст со страницы инструкции воспользуйтесь вкладкой "HTML"