Baxi SAG2 125T-155T-195Т - Инструкция по эксплуатации - Страница 3

Водонагреватели Baxi SAG2 125T-155T-195Т - инструкция пользователя по применению, эксплуатации и установке на русском языке. Мы надеемся, она поможет вам решить возникшие у вас вопросы при эксплуатации техники.

Если остались вопросы, задайте их в комментариях после инструкции.

"Загружаем инструкцию", означает, что нужно подождать пока файл загрузится и можно будет его читать онлайн. Некоторые инструкции очень большие и время их появления зависит от вашей скорости интернета.
Страница:
/ 13
Загружаем инструкцию
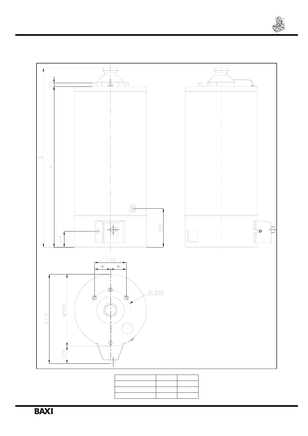
background image

SAG2 125, 155, 195                                                     

 

 

   

ц

  

 

 

 

                                                                    

3                                  

 

 

 

 

 

 

 

 

 

A (±3) 

B (±3) 

SAG2 125 T 

1150 

1250 

SAG2 155 T 

1320 

1420 

SAG2 195 T 

1590 

1730 

 

Полезные видео

Характеристики

Оцените статью
tehnopanorama.ru
Остались вопросы?

Не нашли свой ответ в руководстве или возникли другие проблемы? Задайте свой вопрос в форме ниже с подробным описанием вашей ситуации, чтобы другие люди и специалисты смогли дать на него ответ. Если вы знаете как решить проблему другого человека, пожалуйста, подскажите ему :)

Задать вопрос

Часто задаваемые вопросы
Как посмотреть инструкцию к Baxi SAG2 125T-155T-195Т?
Необходимо подождать полной загрузки инструкции в сером окне на данной странице
Руководство на русском языке?
Все наши руководства представлены на русском языке или схематично, поэтому вы без труда сможете разобраться с вашей моделью
Как скопировать текст из PDF?
Чтобы скопировать текст со страницы инструкции воспользуйтесь вкладкой "HTML"