Водонагреватели Austria-Email HT 300 FM 300 л - инструкция пользователя по применению, эксплуатации и установке на русском языке. Мы надеемся, она поможет вам решить возникшие у вас вопросы при эксплуатации техники.
Если остались вопросы, задайте их в комментариях после инструкции.
"Загружаем инструкцию", означает, что нужно подождать пока файл загрузится и можно будет его читать онлайн. Некоторые инструкции очень большие и время их появления зависит от вашей скорости интернета.

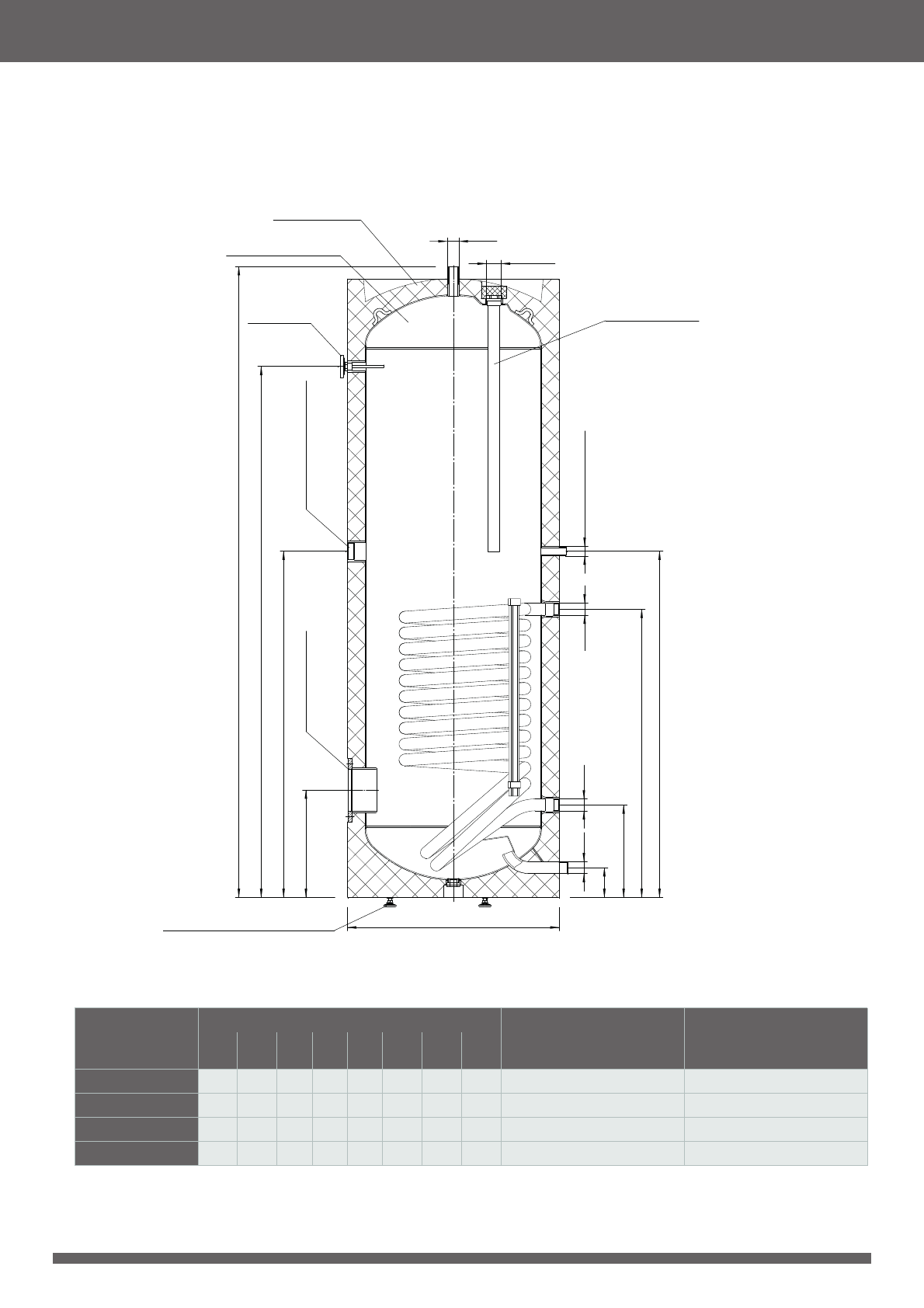
HT 400 ERM
1832 670 320 880
1000
490
HT 500 ERM
1838 750 370 930
1095
580
590
670
ETF - максимальная установочная длина фланцевого ТЭНа или теплообменника
ETE - максимальная установочная длина муфтового ТЭНа
HT 200 ERM, HT 300 ERM, HT 400 ERM, HT 500 ERM
Напольные вертикальные водонагреватели косвенного нагрева с одним теплообменником
10
1" НР
1"1/4 ВР
Магниевый анод
Теплоизоляция
Эмалированный бак
Термометр
Муфта 1"1/2 ВР
для подключения ТЭНа
Фланец
Ø180
внутренний
Ø116
H
I
G
F
1" НР
1" ВР
1" ВР
Горячая вода
Подача
теплоносителя
Возврат
теплоносителя
Холодная вода
Рециркуляция
200 - 400: л 3/4" НР
500 л: 1" НР
85
A
B
E
Ø D
Регулируемые опорные ножки
Модель
Размеры в мм
ETF
H
ØD
A
B
E
F
G
I
HT 200 ERM
1340 600 263 638
803
420
HT 300 ERM
1797 600 263 818
983
420
520
520
ETE
1000
1095
803
983
345
370
305
305
1521
1498
1050
1507