Водонагреватели ATLANTIC STEATITE EXCLUSIVE 200 882101 - инструкция пользователя по применению, эксплуатации и установке на русском языке. Мы надеемся, она поможет вам решить возникшие у вас вопросы при эксплуатации техники.
Если остались вопросы, задайте их в комментариях после инструкции.
"Загружаем инструкцию", означает, что нужно подождать пока файл загрузится и можно будет его читать онлайн. Некоторые инструкции очень большие и время их появления зависит от вашей скорости интернета.

ВНИМАНИЕ! Предохранительный клапан крепится на трубопроводе в стороне от ЭВН. Между предохранительным клапаном и патрубком холодной
воды не должно быть никаких запорных устройств. Сливное отверстие должно быть направленно четко вниз. При использовании клапана, что не входит
в комплект поставки, ЭВН не подлежит гарантийному обслуживанию.
6.3.
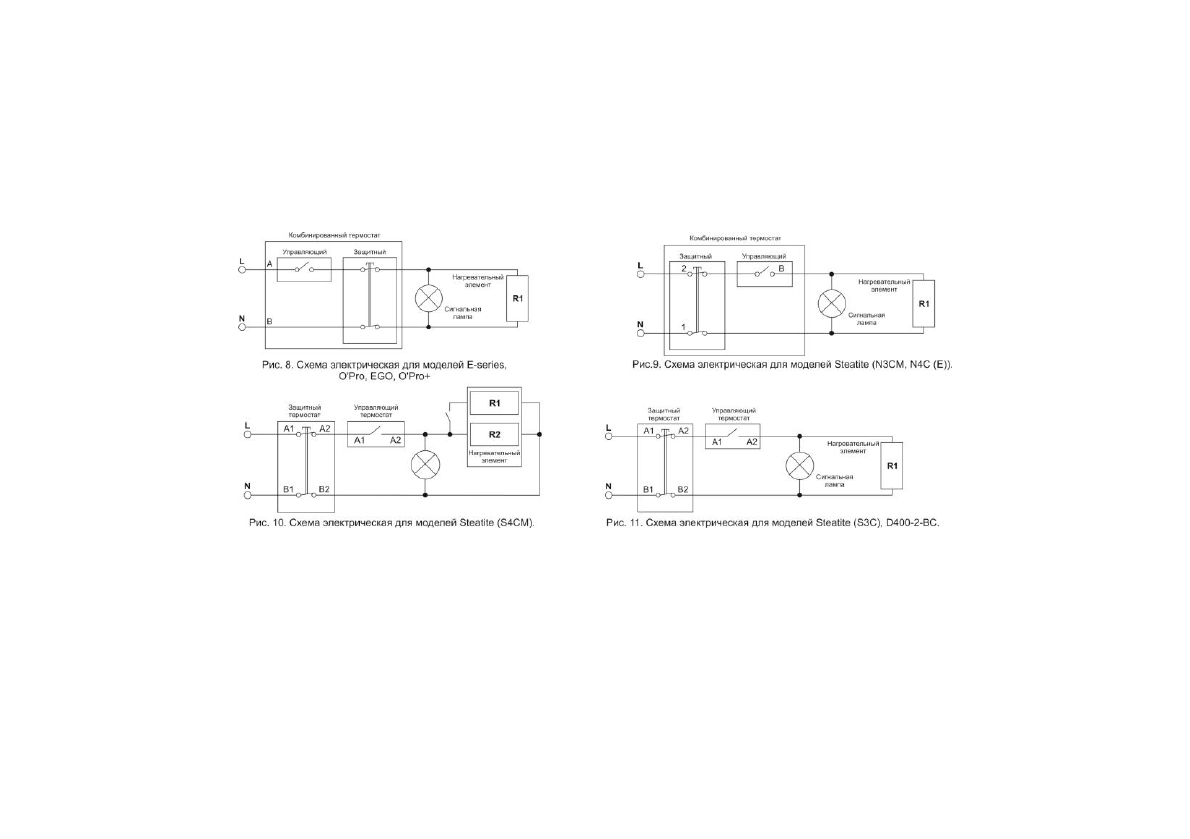
Подключение к электросети
Корпус ЭВН должен быть заземлен! Убедитесь, что шнур питания не поврежден. Если шнур питания поврежден, его необходимо заменить на специальный
шнур, который находится у производителя или его сервисного агента.
Подключение ЭВН к электросети должно выполняться трехжильным медным кабелем (фаза, ноль, заземление). Кабель подключается к щитку электропитания
квартиры, чтобы не перегружать существующую проводку.
7.
Ввод в эксплуатацию
1. Заполните ЭВН водой для этого:
– убедитесь в том, что закрытая запорная арматура на стояке горячего водоснабжения;
– откройте запорную арматуру на стояке холодного водоснабжения;
– откройте кран горячей воды на смесителе в точке потребления;
– ЭВН будет заполнен, когда из крана горячей воды начнет вытекать вода;
– закройте кран горячей воды.
2. Осмотрите место подключения ЭВН к системе водоснабжения и убедитесь в отсутствии протечек воды.
3. Включите автоматический выключатель.
4. Регулировка температуры нагрева производится поворотом ручки регулировки:













