Водонагреватели AEG STM 20 - инструкция пользователя по применению, эксплуатации и установке на русском языке. Мы надеемся, она поможет вам решить возникшие у вас вопросы при эксплуатации техники.
Если остались вопросы, задайте их в комментариях после инструкции.
"Загружаем инструкцию", означает, что нужно подождать пока файл загрузится и можно будет его читать онлайн. Некоторые инструкции очень большие и время их появления зависит от вашей скорости интернета.

6
• Электромонтаж
– Электрические подключения должны быть выполнены только с помощью жесткого кабеля со съемным кабельным сальником.
– Для каждой фазы следует предусмотреть автоматический выключатель с изоляционным расстоянием между контактами не
менее 3 мм.
Техническое обслуживание и ремонт
Работы, связанные с техническим обслуживанием, такие как проверка работоспособности электрических защитно-
предохранительных устройств, должны производиться только техническими специалистами.
- При высоких температурах воды практически всегда образуется накипь. Накипь оседает внутри прибора и влияет на его
работоспособность и срок службы. Поэтому следует регулярно выполнять чистку водонагревателей от известковых отложений.
- Для чистки пластмассовых частей прибора используйте влажную ткань. Не разрешается для чистки использовать абразивные
моющие средства и растворители.
- Состояние установленного в баке магниевого анода необходимо проверить через 2 года эксплуатации прибора. При
необходимости замените анод. Периодичность чистки определяется специалистами обслуживающей организации в соответствии
с качеством используемой воды.
3
8
7
10
11
9
1 2
5/5`
5`
5
Содержание
- 3 Правила безопасной эксплуатации; О п а с н о с т ь з а м о р а ж и в а н и я
- 4 Описание конструкции прибора; • Дополнительно в комплект поставки включены
- 5 Предписания и нормативные документы; • Монтаж водяного контура; К р а т к о е о п и с а н и е р а б о т ы; Управление прибором. Задание температуры
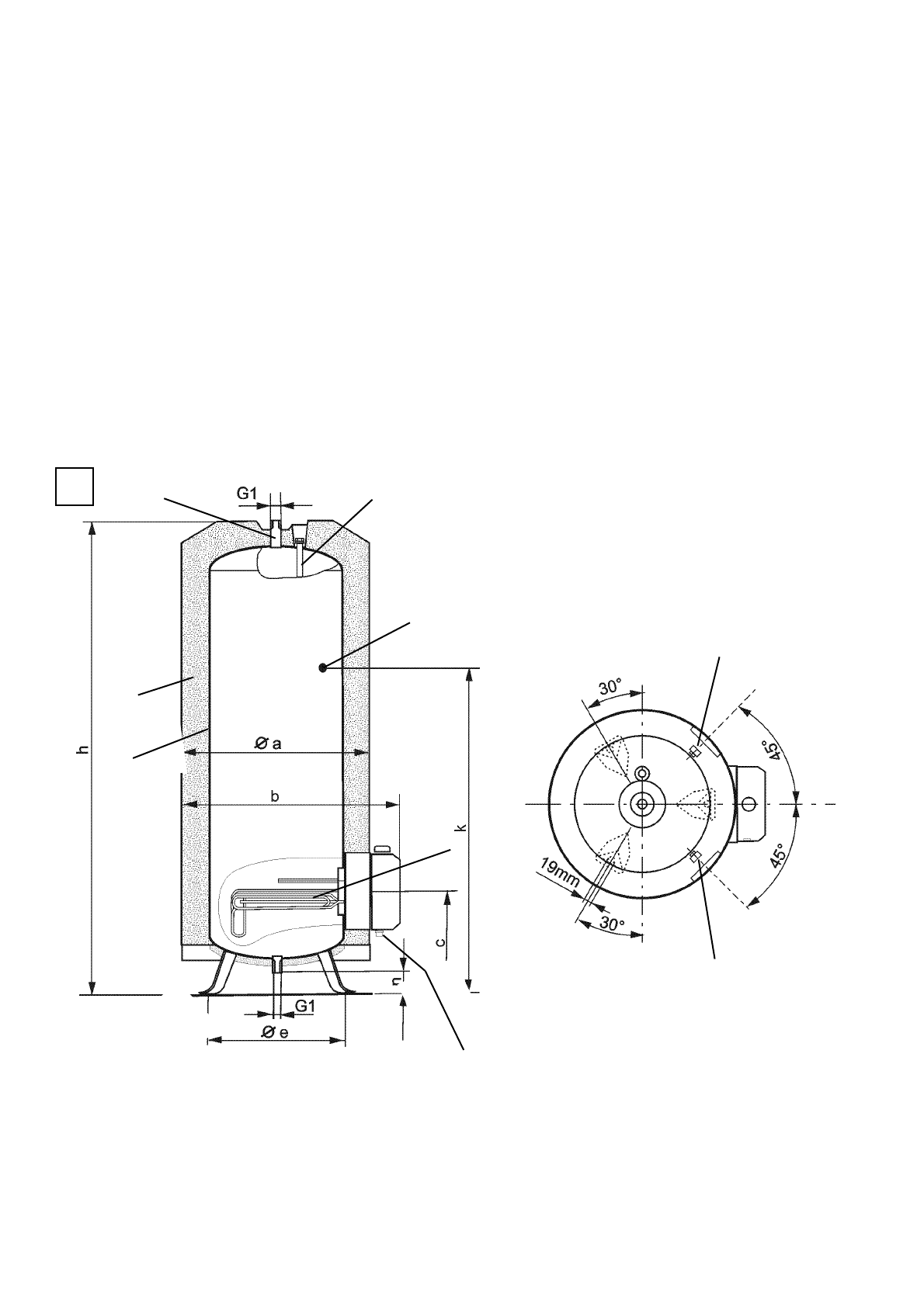
- 7 Технические характеристики; Модель; Монтаж; Т р е б о в а н и я п о м о н т а ж у
- 8 -контурное подключение
- 9 -контурное подключение 9
- 10 Техническое обслуживание
- 11 Устранение неисправностей












