AEG EWH 100 / 120 / 150 Basis (N) - Инструкция по эксплуатации - Страница 3

Водонагреватели AEG EWH 100 / 120 / 150 Basis (N) - инструкция пользователя по применению, эксплуатации и установке на русском языке. Мы надеемся, она поможет вам решить возникшие у вас вопросы при эксплуатации техники.

Если остались вопросы, задайте их в комментариях после инструкции.

"Загружаем инструкцию", означает, что нужно подождать пока файл загрузится и можно будет его читать онлайн. Некоторые инструкции очень большие и время их появления зависит от вашей скорости интернета.
Страница:
/ 64
Загружаем инструкцию
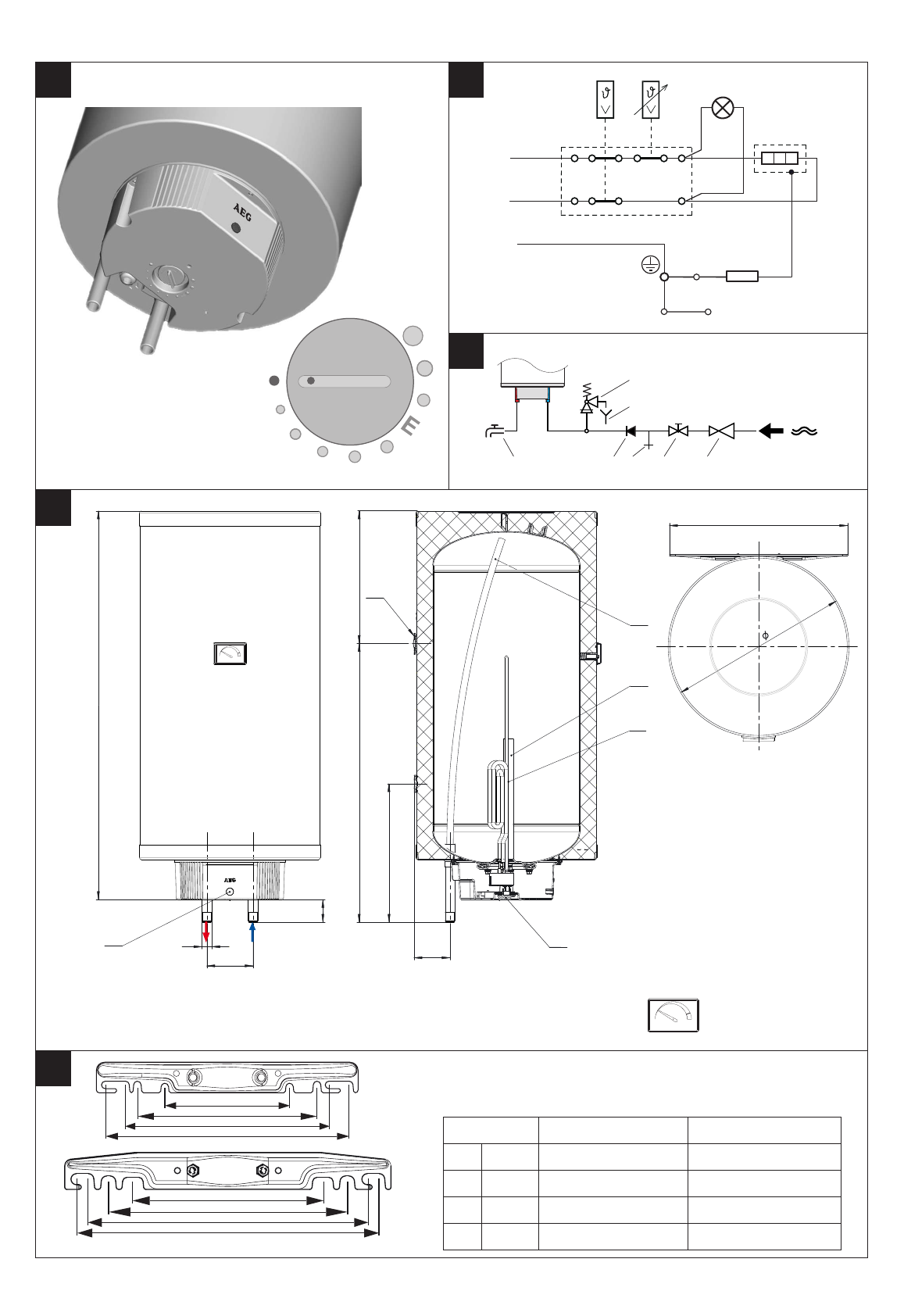
background image

3

1

4

2

3

A

B

C

D

Typ

 = 30 - 50 l

 = 80 - 200 l

A

mm

184

282,5

B

mm

265

355

C

mm

300

415

D

mm

360

450

A
B

C
D

5

26�02�07�0075

26�02�07�0008

26�02�07�0010

C26�02�07�0023

26�02�07�0074

 = EWH ... Basis 

N

26_02_07_0073

H

A

X

C

K

D

M

E

6

5

3

1

4

2

B

I

26_02_07_0068

R

A (L)

B (N)

L

N

PE

1

2

D

C

5

6

7

8

3

4

F

E

1

7

3

2

5

4

6

Полезные видео

Характеристики

Оцените статью
tehnopanorama.ru
Остались вопросы?

Не нашли свой ответ в руководстве или возникли другие проблемы? Задайте свой вопрос в форме ниже с подробным описанием вашей ситуации, чтобы другие люди и специалисты смогли дать на него ответ. Если вы знаете как решить проблему другого человека, пожалуйста, подскажите ему :)

Задать вопрос

Часто задаваемые вопросы
Как посмотреть инструкцию к AEG EWH 100 / 120 / 150 Basis (N)?
Необходимо подождать полной загрузки инструкции в сером окне на данной странице
Руководство на русском языке?
Все наши руководства представлены на русском языке или схематично, поэтому вы без труда сможете разобраться с вашей моделью
Как скопировать текст из PDF?
Чтобы скопировать текст со страницы инструкции воспользуйтесь вкладкой "HTML"