Водонагреватели AEG DDLT PinControl 21 222386 - инструкция пользователя по применению, эксплуатации и установке на русском языке. Мы надеемся, она поможет вам решить возникшие у вас вопросы при эксплуатации техники.
Если остались вопросы, задайте их в комментариях после инструкции.
"Загружаем инструкцию", означает, что нужно подождать пока файл загрузится и можно будет его читать онлайн. Некоторые инструкции очень большие и время их появления зависит от вашей скорости интернета.

МАКСИМАЛЬНО ДОПУСТИМЫЙ РАСХОД ВОДЫ
МАКСИМАЛЬНО ДОПУСТИМЫЙ РАСХОД ВОДЫ
Регулятор расхода воды (2), установленный в патрубке для
подсоединения трубопровода холодной воды (1), ограничивает расход
(см. таблицу на стр. 3) так, чтобы температура воды на выходе не
опускалась ниже приблизительно 40 °C.
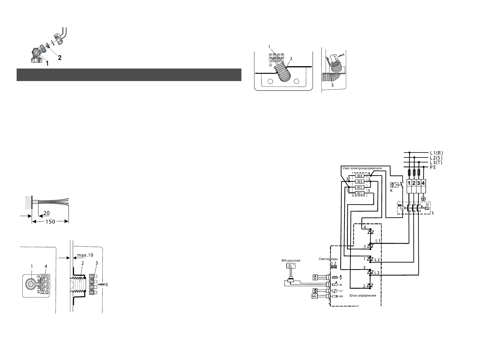
ЭЛЕКТРИЧЕСКОЕ ПОДКЛЮЧЕНИЕ
Электрические подключения следует выполнять только после подсоединения прибора к
водопроводу!
Прибор предназначен для подключения к трехфазной сети электропитания с напряжением 400 В.
Подключение должно выполняться только с помощью жесткого кабеля.
В цепь электропитания должны быть включены плавкие предохранители или автоматические
выключатели.
ПРАВИЛА БЕЗОПАСНОСТИ.
ПРАВИЛА БЕЗОПАСНОСТИ.
При монтаже прибора следует предусмотреть возможность его отключения от сети
электропитания (например, для проведения ремонта). Для этого в сети электропитания
следует для каждой фазы установить сменные предохранители или вводной выключатель с
изоляционным расстоянием между контактами не менее 3 мм.
Следует оснастить прибор защитой от токов утечки на землю (УЗО)
КАБЕЛЬ ЭЛЕКТРОПИТАНИЯ
КАБЕЛЬ ЭЛЕКТРОПИТАНИЯ
Длина выступающей из стены изоляционной оболочки кабеля должна
быть не менее 20 мм.
ПОДКЛЮЧЕНИЕ КАБЕЛЯ СВЕРХУ (СТАНДАРТНОЕ ПОДКЛЮЧЕНИЕ)
ПОДКЛЮЧЕНИЕ КАБЕЛЯ СВЕРХУ (СТАНДАРТНОЕ ПОДКЛЮЧЕНИЕ)
Последовательность монтажа.
%
Вскройте надрубленное отверстие для ввода кабеля
(1).
%
Наденьте на кабель электропитания кабельный
сальник (2) и вставьте кабель с сальником в отверстие в
задней панели прибора.
%
Ослабьте зажимы клемм для подключения к сети (3),
установите крепежную накладку (4) кабельного сальника
на выступах задней панели и затяните винты зажимов.
ПОДКЛЮЧЕНИЕ КАБЕЛЯ СНИЗУ (ВАРИАНТ МОНТАЖА)
ПОДКЛЮЧЕНИЕ КАБЕЛЯ СНИЗУ (ВАРИАНТ МОНТАЖА)
В этом случае клеммную колодку для подключения к
сети электропитания (1) следует снять и установить в
нижней части агрегата.
При подключении жил кабеля следуйте маркировке,
нанесенной на задней панели прибора. Кабель
предохранительного реле температуры и давления
должен быть проложен без натяжения.
Вскройте надрубленное отверстие для ввода кабеля
(2), наденьте кабельный сальник (3), подсоедините
кабель и закрепите сальник на клеммной колодке,
затяните винты зажимов.
ВНИМАНИЕ!
Защита прибора от влаги гарантируется только при правильной установке кабельного сальника.
ЭЛЕКТРИЧЕСКАЯ СХЕМА
ЭЛЕКТРИЧЕСКАЯ СХЕМА
14
15













