Винные шкафы Smeg CVI618RWNR2 - инструкция пользователя по применению, эксплуатации и установке на русском языке. Мы надеемся, она поможет вам решить возникшие у вас вопросы при эксплуатации техники.
Если остались вопросы, задайте их в комментариях после инструкции.
"Загружаем инструкцию", означает, что нужно подождать пока файл загрузится и можно будет его читать онлайн. Некоторые инструкции очень большие и время их появления зависит от вашей скорости интернета.

Установка
208
SN = Субнормальный - N = Нормальный
ST = Субтропический - T = Тропический
1. Устанавливайте электроприбор на
расстояниях не менее 3 см от
электрических или газовых плит и не
менее 30 см от отопительных систем,
использующих горючие материалы
или батареи.
2. Прибор нельзя устанавливать рядом
с источниками тепла. если это
невозможно, необходимо
использовать подходящую
изолирующую панель.
3. Удостоверьтесь в том, что после
установки холодильника имеется
достаточно места для открывания
двери и извлечения полок и
внутренних ящиков.
4. Для обеспечения правильного
охлаждения конденсатора
соблюдайте инструкции по
встраиванию.
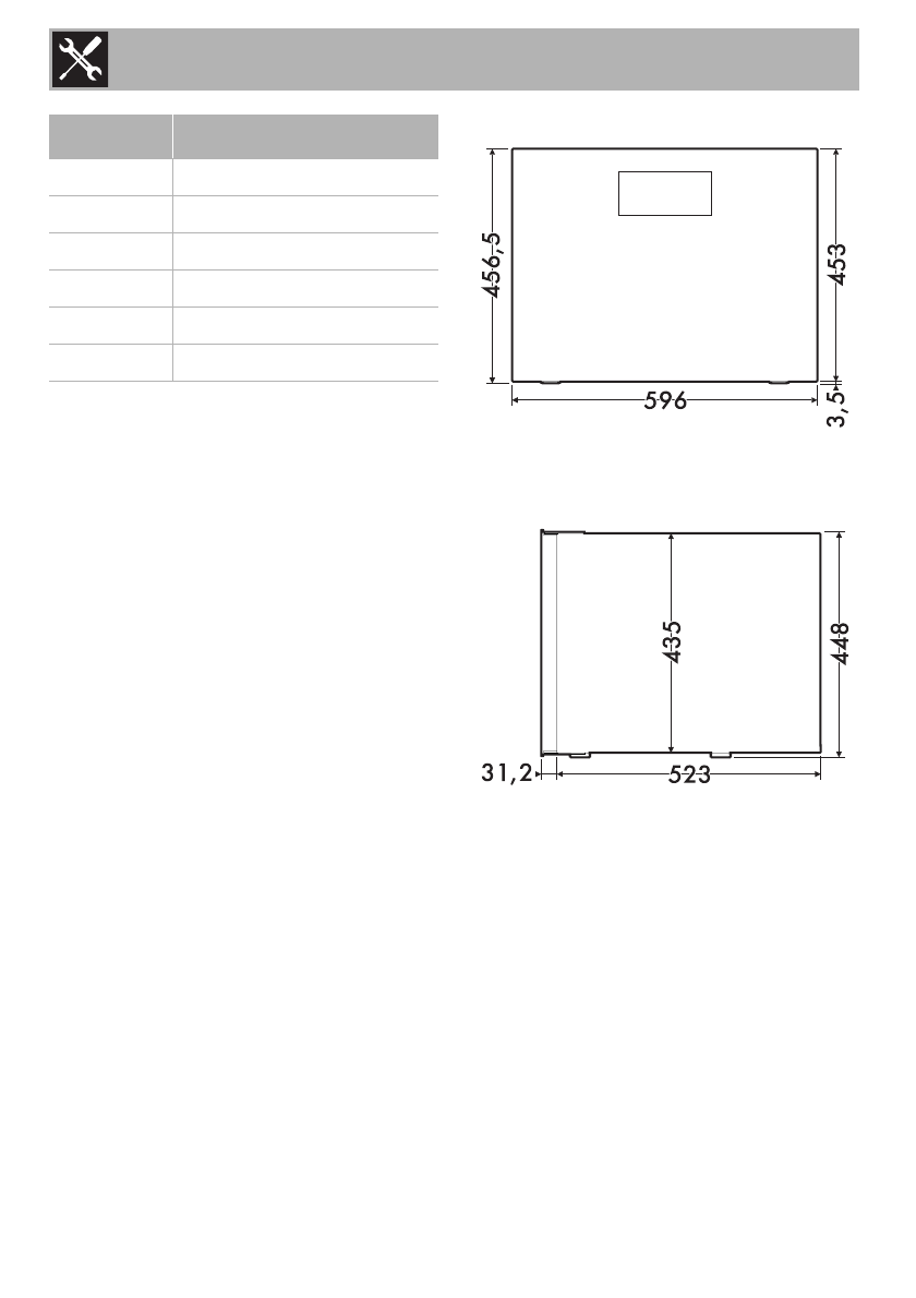
Габаритные размеры прибора (мм)
(вид спереди)
(вид сбоку)
Класс
Температура окружающей
среды
SN
от + 10°C до + 32°C
N
от + 16°C до + 32°C
ST
от + 16°C до + 38°C
T
от + 16°C до + 43°C
SN-ST
от + 10°C до + 38°C
SN-T
от + 10°C до + 43°C
Характеристики
Остались вопросы?Не нашли свой ответ в руководстве или возникли другие проблемы? Задайте свой вопрос в форме ниже с подробным описанием вашей ситуации, чтобы другие люди и специалисты смогли дать на него ответ. Если вы знаете как решить проблему другого человека, пожалуйста, подскажите ему :)