Винные шкафы IP CEX 2501 RU - инструкция пользователя по применению, эксплуатации и установке на русском языке. Мы надеемся, она поможет вам решить возникшие у вас вопросы при эксплуатации техники.
Если остались вопросы, задайте их в комментариях после инструкции.
"Загружаем инструкцию", означает, что нужно подождать пока файл загрузится и можно будет его читать онлайн. Некоторые инструкции очень большие и время их появления зависит от вашей скорости интернета.

199
0 ÷
20
1
0
(
C
I
5
01
)
170
5 ÷
17
2
5
(
C
I
4
01
)
153
0 ÷
15
5
0
(
C
I
3
01
)
1
0 ÷
3
0
13
5
199
5 ÷
20
1
5
(
C
I
5
01
)
171
0 ÷
17
3
0
(
C
I
4
01
)
153
5 ÷
15
5
5
(
C
I
3
01
)
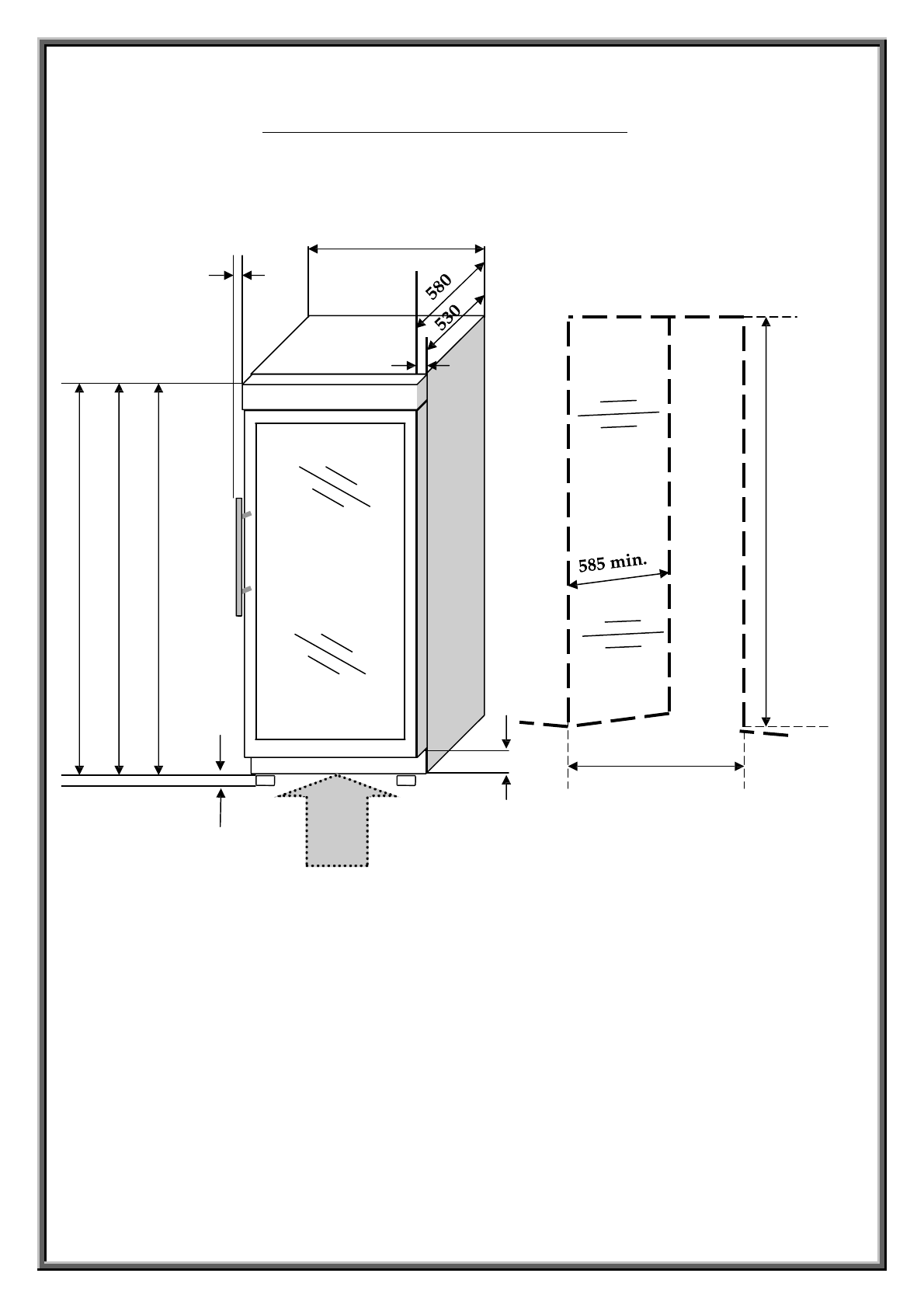
ВСТРОЕННЫЕ МОДЕЛИ
CI
301
-
401
-
501
Разрешенные дистанции
–
Для встроенной инсталляции
600
40
50
МИНИМАЛЬНОЕ
ПРОСТРАНСТВО
ДЛЯ ВЕНТИЛЯЦИИ
200 CM2
610 min.
13
Характеристики
Остались вопросы?Не нашли свой ответ в руководстве или возникли другие проблемы? Задайте свой вопрос в форме ниже с подробным описанием вашей ситуации, чтобы другие люди и специалисты смогли дать на него ответ. Если вы знаете как решить проблему другого человека, пожалуйста, подскажите ему :)













