Винные шкафы Gaggenau RW 414-300 - инструкция пользователя по применению, эксплуатации и установке на русском языке. Мы надеемся, она поможет вам решить возникшие у вас вопросы при эксплуатации техники.
Если остались вопросы, задайте их в комментариях после инструкции.
"Загружаем инструкцию", означает, что нужно подождать пока файл загрузится и можно будет его читать онлайн. Некоторые инструкции очень большие и время их появления зависит от вашей скорости интернета.

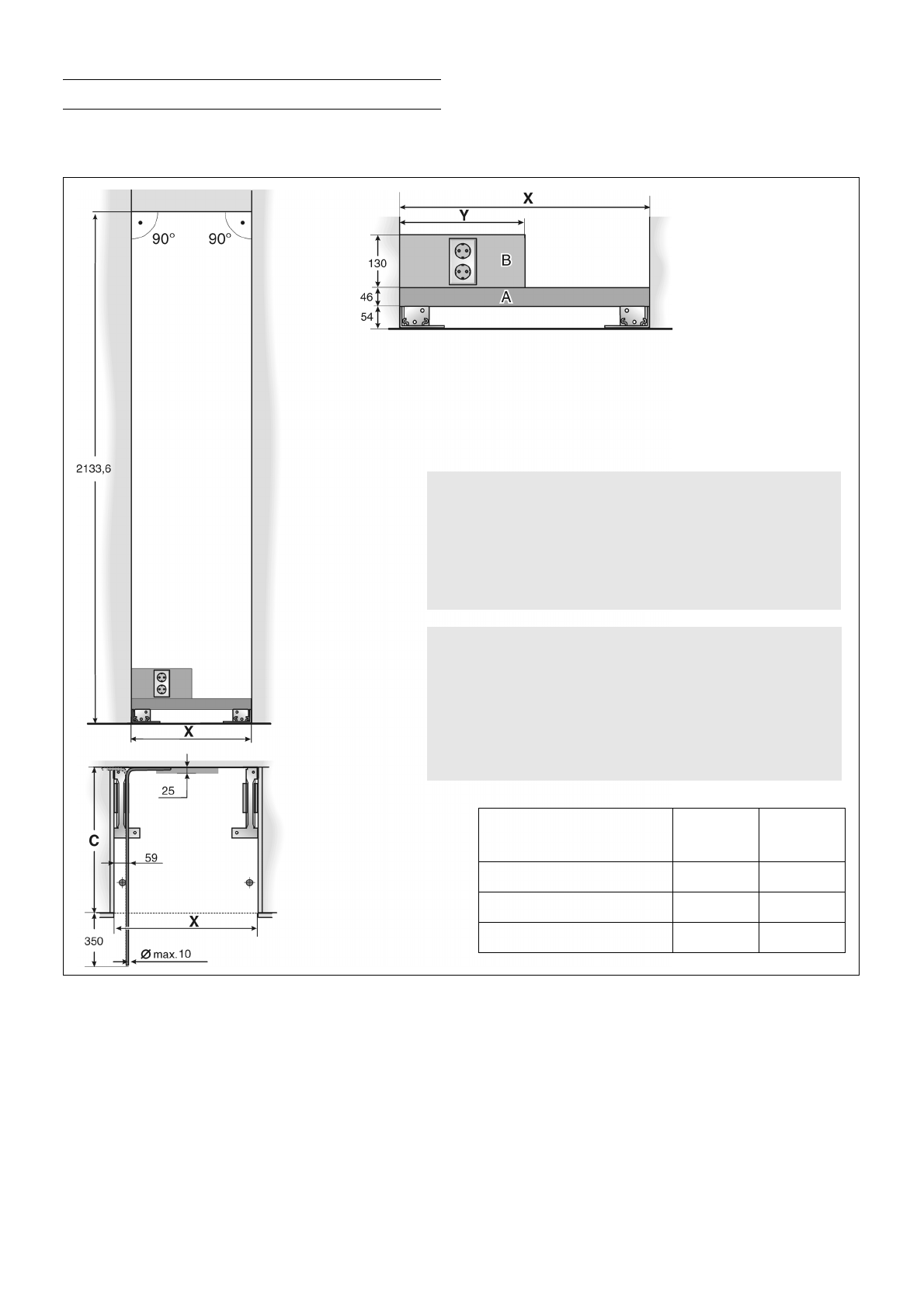
U
¦a¢apå¹¾ ¸åòå
©æø o¹ªe濸o c¹oøóe¨o ¢¾¹o
o¨o ÿpå¢opa
Õ®cÿæå®aýåø:
A
šñac¹o® ÿoª®æ÷ñe¸åø ®
oªoÿpo
oªº
B
šñac¹o® ªæø
¾ÿoæ¸e¸åø õæe®¹poÿoª®æ÷ñe¸åø
C
¦æº¢å¸a ¸åòå, µa
åcøóaø o¹ ªåµa¼¸a ®ºx¸å
C = 610 ¯¯ ¯å¸å¯º¯!
¥på¯eña¸åe:
C¹e¸®å ¸åòå ªæø
c¹paå
a¸åø ¢¾¹o
o¨o ÿpå¢opa
ªo沸¾ pacÿoæa¨a¹¿cø ÿoª ÿpø¯¾¯ º¨æo¯.
š ¢o®o
¾x c¹e¸o® ¸åòå ¸e ªo沸o ¢¾¹¿ ¸å®a®åx
¾c¹ºÿo
åæå ¸epo
¸oc¹e¼.
Òåpå¸a ¢¾¹o
o¨o
ÿpå¢opa
X
Y
450,8 ¯¯
457 ¯¯
228 ¯¯
603,2 ¯¯
610 ¯¯
305 ¯¯
755,6 ¯¯
762 ¯¯
381 ¯¯
Õ¹o
a²¸o!
epx¸øø c¹e¸®a ¸åòå ªo沸a ¢¾¹¿ 嵨o¹o
æe¸a
åµ ÿpoñ¸o¨o,
¾ªep²å
a÷óe¨o ¢oæ¿òº÷ ¸a¨pºµ®º
¯a¹epåaæa (¯å¸å¯a濸aø ¹oæóå¸a 16 ¯¯).
epx¸øø c¹e¸®a ¸åòå ªo沸a ®a® ¯å¸å¯º¯ ¸a 100 ¯¯
¨æº¢å¸º ¢¾¹¿ co
epòe¸¸o po
¸o¼, ¢eµ
¾c¹ºÿo
.
Õ¹o
a²¸o!
¡o®o
¾e c¹e¸®å ¸åòå ªo沸¾ ¢¾¹¿ co
epòe¸¸o
po
¸¾¯å, ¢eµ
¾c¹ºÿo
. Ecæå ¸åòa c®o¸c¹pºåpo
a¸a
åªe o¹ªe濸o¨o õæe¯e¸¹a ®o¸c¹pº®ýåå ®ºxo¸¸o¨o
¨ap¸å¹ºpa, ¹o ee ¢o®o
¾e c¹e¸®å ªo沸¾ ®a® ¯å¸å¯º¯
¸a 100 ¯¯
¨æº¢å¸º ¢¾¹¿ co
epòe¸¸o po
¸¾¯å, ¢eµ
¾c¹ºÿo
.
Характеристики
Остались вопросы?Не нашли свой ответ в руководстве или возникли другие проблемы? Задайте свой вопрос в форме ниже с подробным описанием вашей ситуации, чтобы другие люди и специалисты смогли дать на него ответ. Если вы знаете как решить проблему другого человека, пожалуйста, подскажите ему :)