Видеокамеры Sony HDR-PJ780E (VE) - инструкция пользователя по применению, эксплуатации и установке на русском языке. Мы надеемся, она поможет вам решить возникшие у вас вопросы при эксплуатации техники.
Если остались вопросы, задайте их в комментариях после инструкции.
"Загружаем инструкцию", означает, что нужно подождать пока файл загрузится и можно будет его читать онлайн. Некоторые инструкции очень большие и время их появления зависит от вашей скорости интернета.

UA
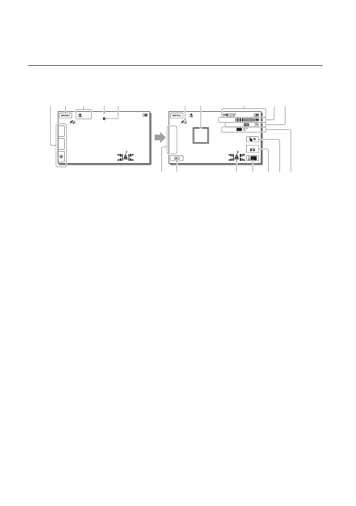
Екранні індикатори під час записування
Далі описано піктограми для режимів як записування відео, так і фотографування.
Докладніше див. сторінки, зазначені у дужках ( ).
W
T
STBY
AUTO
60i
00:00:00
h
14
m
48
h
2
m
25
5.1ch
STBY
5.1ch
16:9
L
>9999
24.1M
MODE
Q
QF
QA
QS
QD
QG
QJ QH
Кнопка трансфокатора (W: ширококутна зйомка/T: довгофокусна зйомка),
кнопка START/STOP (у режимі записування відео), кнопка PHOTO (у режимі
фотографування)
Стан, визначений функцією Intelligent Auto (34)
Стан записування ([STBY]/[REC])
Блокування AE/AF (автоматичне експонування/автоматичне фокусування) (27)
Стан тріангуляції GPS
*
Слідкувальне фокусування
Трансфокатор, залишок заряду акумулятора
Лічильник (години: хвилини: секунди), фотографування, носій для записування/
відтворення/редагування (77)
Орієнтовний залишок часу записування, якість записування зображення, частота
кадрів, режим записування (HD/STD), розмір відео (MP4) (33)
Приблизна кількість фотографій для записування, формат (16:9 або 4:3), розмір
фотографії (L/M/S)
Кнопка скасування слідкувального фокусування
Кнопка [MODE] (Shooting Mode) (27)
Кнопка Intelligent Auto (34)
Аудіорежим (55), індикатор рівня звуку (55)
Кнопка View Images (30)
My Button (піктограмам, що відображаються в цій зоні, можна призначати
потрібні функції) (55)
*
Моделі з функцією GPS
Содержание
- 2 ПРЕДУПРЕЖДЕНИЕ; Батарейный блок
- 3 Дата изготовления изделия.; ДЛЯ ПОЛЬЗОВАТЕЛЕЙ В ЕВРОПЕ; Примечание для клиентов в странах,; Внимание
- 5 Только для модели предназначеных
- 6 Руководство пользователя “Handycam”
- 8 Как использовать это руководство; (Модели с аналоговой цветной системой NTSC); Как определить наименование модели вашей видеокамеры; Прочитайте надписи на нижней части; Различия в функциях
- 9 Содержание; Подготовка к работе; Запись/воспроизведение; Расширенные функции
- 11 ЛИЦЕНЗИОННОЕ СОГЛАШЕНИЕ С КОНЕЧНЫМ ПОЛЬЗОВАТЕЛЕМ
- 14 Закрепление ручного ремня; Правильно совместите переходное
- 15 Как закреплять ветровой экран
- 17 Прилагаемые; количество принадлежностей.
- 18 Зарядка аккумуляторной батареи
- 19 Зарядка аккумуляторной батареи с помощью компьютера; зарядить видеокамеру.; Время зарядки; При использовании адаптера переменного тока: 155 мин.
- 20 Извлечение аккумуляторной батареи; Как длительное время использовать видеокамеру непрерывно; Зарядка аккумуляторной батареи за границей; электронный трансформатор напряжения.
- 21 Включение питания и установка даты и; Функции и оборудование
- 22 Изменение настроек языка; Отключение питания
- 23 Регулировка угла наклона панели LCD; Отключение звуковых сигналов
- 24 Подготовка носителя записи; видеокамеры следующими значками.; Выбор носителя записи
- 25 Извлечение карты памяти; Типы карт памяти, поддерживаемые видеокамерой
- 27 дение; Запись; Запись фильмов
- 28 Фотосъемка; Отображение элементов на ЖК-дисплее
- 29 Экранные индикаторы во время записи; Состояние триангуляции GPS
- 31 Воспроизведение; на
- 32 Вид дисплея с экраном просмотра события
- 33 Воспроизведение изображений на других устройствах
- 34 Выберите
- 35 Видеокамера начинает запись фильмов; Отслеживание дрожания камеры:
- 36 Качество HD
- 37 Запись информации
- 40 Вкл “Photo TV HD”; Использование
- 43 Редактирование; С информацией о модели вашей; Удаление части фильма; Вы можете разделить фильм и удалить
- 46 Сохранение фильмов и фотографий на компьютере; Воспроизведение изображений на; Программное обеспечение для Mac
- 47 Требования к компьютеру; Примечания к установке
- 50 Сохранение изображений на внешнем носителе; Создание диска; Подключите вашу видеокамеру с
- 51 Вы можете сохранить фильмы и
- 52 В программном обеспечении
- 54 Индивидуальная настройка видеокамеры; Режим съемки; Нажмите; Быстрый поиск элемента меню
- 55 Списки меню
- 57 Установка
- 59 Устранение; Отключите источник питания,
- 61 Отображение
- 62 Время записи
- 63 Время воспроизведения; Приблизительное время работы при; Внутренняя память; Качество изображений высокой четкости (HD) в ч
- 64 Карта памяти; MP
- 65 фильмов в формате и фотографий.
- 66 Использование и уход; Крышка башмака
- 68 Многоинтерфейсный разъем
- 69 Замена батареи в беспроводном пульте; ВНИМАНИЕ
- 70 Объектив Carl Zeiss
- 72 Спецификации; Система
- 73 Разъемы входных/выходных сигналов
- 74 Торговые знаки
- 77 ОГРАНИЧЕНИЕ ОТВЕТСТВЕННОСТИ
- 79 Индикаторы экрана; При изменении настроек появляются
- 81 Алфавитный указатель












