Варочная панель Zigmund Shtain MN 195.61 B - инструкция пользователя по применению, эксплуатации и установке на русском языке. Мы надеемся, она поможет вам решить возникшие у вас вопросы при эксплуатации техники.
Если остались вопросы, задайте их в комментариях после инструкции.
"Загружаем инструкцию", означает, что нужно подождать пока файл загрузится и можно будет его читать онлайн. Некоторые инструкции очень большие и время их появления зависит от вашей скорости интернета.

12
Пожалуйста
,
помните
:
Чтобы
гарантировать
циркуляцию
воздуха
в
достаточной
степени
под
газовой
варочной
поверхностью
,
необходимо
оставить
расстояния
,
не
менее
10
см
,
до
любого
выдвижного
ящика
,
любой
перегородки
или
духовки
,
которые
могут
располагаться
под
газовой
варочной
поверхностью
.
Если
газовая
варочная
поверхность
устанавливается
вместе
с
духовкой
,
необходимо
следовать
инструкциям
изготовителя
духовки
,
и
обеспечить
вентиляцию
,
как
показано
на
рис
. 8.
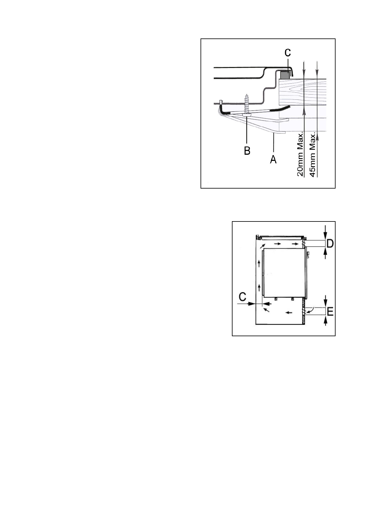
При
этом
размеры
зазоров
С
,
Е
должны
быть
не
менее
30
мм
,
D
– 10
мм
.
В
любом
случае
,
если
духовка
является
газовой
,
то
обе
части
оборудования
должны
быть
связаны
с
газовой
магистралью
и
электрической
цепью
независимо
.
Рис
. 7
Крепление
газовой
варочной
поверхности
к
столешнице
Сделайте
вырез
в
кухонном
рабочем
столе
в
соответствии
с
заданными
размерами
,
показанными
на
рис
. 6.
Древесные
волокна
,
которые
используются
при
изготовлении
рабочей
поверхности
столов
(
столешницы
),
относительно
быстро
набухают
при
намокании
.
Поэтому
нанесите
на
торцевую
поверхность
выреза
специальный
клей
или
герметик
,
защищающий
эту
поверхность
от
пара
или
конденсирующейся
влаги
,
которая
может
появляться
с
нижней
стороны
кухонного
рабочего
стола
.
Прежде
чем
монтировать
газовую
варочную
поверхность
в
подготовленную
для
нее
нишу
(
см
.
рис
. 6)
необходимо
прикрепить
прилагаемую
клеящуюся
уплотнительную
прокладку
С
по
нижнему
краю
варочной
поверхности
.
Крепить
прокладку
необходимо
равномерно
по
всему
периметру
,
не
допуская
ни
разрывов
,
ни
наложений
.
Для
этого
снимите
поддерживающие
решетки
для
Рис
. 8
посуды
,
колпачки
и
рассекатели
горелок
и
переверните
газовую
варочную
поверхность
,
следя
за
тем
,
чтобы
не
повредить
свечи
розжига
и
термоэлементы
«
газ
-
контроля
».
Приклейте
уплотнительную
прокладку
С
по
углублению
нижнего
края
газовой
варочной
поверхности
.
Поместите
варочную
поверхность
в
подготовленную
для
нее
нишу
ровно
посередине
,
придерживая
ее
снизу
.
Затем
нажмите
на
нее
вниз
так
,
чтобы
газовая
варочная
поверхность
устойчиво
опиралась
на
мебель
.
Эту
операцию
удобнее
выполнять
вдвоем
,
чтобы
не
сместить
уплотнительную
прокладку
С
.
Закрепите
газовую
варочную
поверхность
к
корпусу
столешницы
с
помощью
входящих
в
комплект
поставки
скоб
А
и
шурупов
В
.
Если
изолирующая
уплотнительная
прокладка
С
поставлена
правильно
,
она
обеспечит
полную
защиту
от
проникновения
жидкости
под
газовую
варочную
поверхность
.
Это
особенно
актуально
при
проведении
работ
по
очистке
и
уходу
за
варочной
поверхностью
.
Характеристики
Остались вопросы?Не нашли свой ответ в руководстве или возникли другие проблемы? Задайте свой вопрос в форме ниже с подробным описанием вашей ситуации, чтобы другие люди и специалисты смогли дать на него ответ. Если вы знаете как решить проблему другого человека, пожалуйста, подскажите ему :)













