Варочная панель Zigmund & Shtain GN 128.71 A - инструкция пользователя по применению, эксплуатации и установке на русском языке. Мы надеемся, она поможет вам решить возникшие у вас вопросы при эксплуатации техники.
Если остались вопросы, задайте их в комментариях после инструкции.
"Загружаем инструкцию", означает, что нужно подождать пока файл загрузится и можно будет его читать онлайн. Некоторые инструкции очень большие и время их появления зависит от вашей скорости интернета.

11
ǷȖȎȈȓțȑșȚȈ
,
ȗȖȔȕȐȚȍ
:
ǿȚȖȉȣ
ȋȈȘȈȕȚȐȘȖȊȈȚȤ
ȞȐȘȒțȓȧȞȐȦ
ȊȖȏȌțȝȈ
Ȋ
ȌȖșȚȈȚȖȟȕȖȑ
șȚȍȗȍȕȐ
ȗȖȌ
ȋȈȏȖȊȖȑ
ȊȈȘȖȟȕȖȑ
ȗȖȊȍȘȝȕȖșȚȤȦ
,
ȕȍȖȉȝȖȌȐȔȖ
ȖșȚȈȊȐȚȤ
ȘȈșșȚȖȧȕȐȧ
,
ȕȍ
Ȕȍȕȍȍ
10
șȔ
,
ȌȖ
ȓȦȉȖȋȖ
ȊȣȌȊȐȎȕȖȋȖ
ȧȡȐȒȈ
,
ȓȦȉȖȑ
ȗȍȘȍȋȖȘȖȌȒȐ
ȐȓȐ
ȌțȝȖȊȒȐ
,
ȒȖȚȖȘȣȍ
ȔȖȋțȚ
ȘȈșȗȖȓȈȋȈȚȤșȧ
ȗȖȌ
ȋȈȏȖȊȖȑ
ȊȈȘȖȟȕȖȑ
ȗȖȊȍȘȝȕȖșȚȤȦ
.
ǭșȓȐ
ȋȈȏȖȊȈȧ
ȊȈȘȖȟȕȈȧ
ȗȖȊȍȘȝȕȖșȚȤ
țșȚȈȕȈȊȓȐȊȈȍȚșȧ
ȊȔȍșȚȍ
ș
ȌțȝȖȊȒȖȑ
,
ȕȍȖȉȝȖȌȐȔȖ
șȓȍȌȖȊȈȚȤ
ȐȕșȚȘțȒȞȐȧȔ
ȐȏȋȖȚȖȊȐȚȍȓȧ
ȌțȝȖȊȒȐ
,
Ȑ
ȖȉȍșȗȍȟȐȚȤ
ȊȍȕȚȐȓȧȞȐȦ
,
ȒȈȒ
ȗȖȒȈȏȈȕȖ
ȕȈ
ȘȐș
. 8.
ǷȘȐ
ȥȚȖȔ
ȘȈȏȔȍȘȣ
ȏȈȏȖȘȖȊ
ǹ
,
ǭ
ȌȖȓȎȕȣ
ȉȣȚȤ
ȕȍ
Ȕȍȕȍȍ
30
ȔȔ
,
D
– 10
ȔȔ
.
Ǫ
ȓȦȉȖȔ
șȓțȟȈȍ
,
ȍșȓȐ
ȌțȝȖȊȒȈ
ȧȊȓȧȍȚșȧ
ȋȈȏȖȊȖȑ
,
ȚȖ
Ȗȉȍ
ȟȈșȚȐ
ȖȉȖȘțȌȖȊȈȕȐȧ
ȌȖȓȎȕȣ
ȉȣȚȤ
șȊȧȏȈȕȣ
ș
ȋȈȏȖȊȖȑ
ȔȈȋȐșȚȘȈȓȤȦ
Ȑ
ȥȓȍȒȚȘȐȟȍșȒȖȑ
ȞȍȗȤȦ
ȕȍȏȈȊȐșȐȔȖ
.
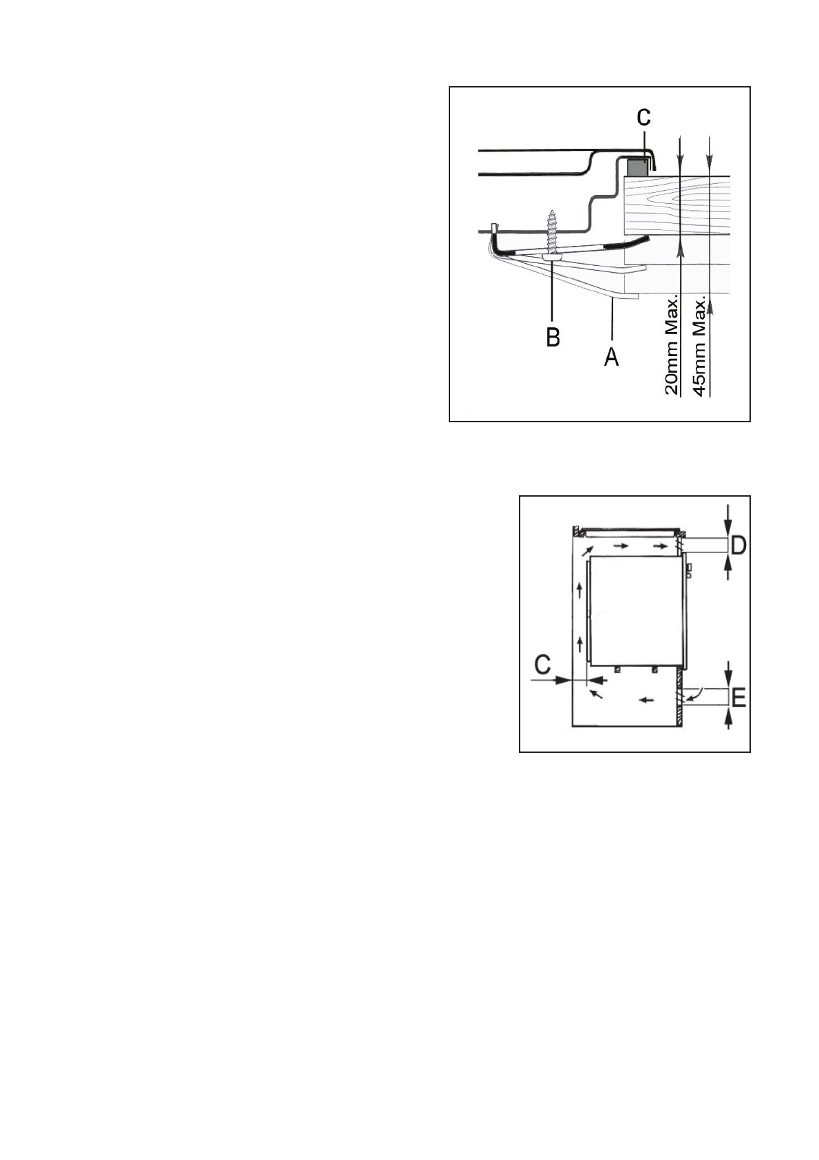
ǸȐș
. 7
DzȘȍȗȓȍȕȐȍ
ȋȈȏȖȊȖȑ
ȊȈȘȖȟȕȖȑ
ȗȖȊȍȘȝȕȖșȚȐ
Ȓ
șȚȖȓȍȠȕȐȞȍ
ǹȌȍȓȈȑȚȍ
ȊȣȘȍȏ
Ȋ
ȒțȝȖȕȕȖȔ
ȘȈȉȖȟȍȔ
șȚȖȓȍ
Ȋ
șȖȖȚȊȍȚșȚȊȐȐ
ș
ȏȈȌȈȕȕȣȔȐ
ȘȈȏȔȍȘȈȔȐ
,
ȗȖȒȈȏȈȕȕȣȔȐ
ȕȈ
ȘȐș
. 6.
ǬȘȍȊȍșȕȣȍ
ȊȖȓȖȒȕȈ
,
ȒȖȚȖȘȣȍ
ȐșȗȖȓȤȏțȦȚșȧ
ȗȘȐ
ȐȏȋȖȚȖȊȓȍȕȐȐ
ȘȈȉȖȟȍȑ
ȗȖȊȍȘȝȕȖșȚȐ
șȚȖȓȖȊ
(
șȚȖȓȍȠȕȐȞȣ
),
ȖȚȕȖșȐȚȍȓȤȕȖ
ȉȣșȚȘȖ
ȕȈȉțȝȈȦȚ
ȗȘȐ
ȕȈȔȖȒȈȕȐȐ
.
ǷȖȥȚȖȔț
ȕȈȕȍșȐȚȍ
ȕȈ
ȚȖȘȞȍȊțȦ
ȗȖȊȍȘȝȕȖșȚȤ
ȊȣȘȍȏȈ
șȗȍȞȐȈȓȤȕȣȑ
Ȓȓȍȑ
ȐȓȐ
ȋȍȘȔȍȚȐȒ
,
ȏȈȡȐȡȈȦȡȐȑ
ȥȚț
ȗȖȊȍȘȝȕȖșȚȤ
ȖȚ
ȗȈȘȈ
ȐȓȐ
ȒȖȕȌȍȕșȐȘțȦȡȍȑșȧ
ȊȓȈȋȐ
,
ȒȖȚȖȘȈȧ
ȔȖȎȍȚ
ȗȖȧȊȓȧȚȤșȧ
ș
ȕȐȎȕȍȑ
șȚȖȘȖȕȣ
ȒțȝȖȕȕȖȋȖ
ȘȈȉȖȟȍȋȖ
șȚȖȓȈ
.
ǷȘȍȎȌȍ
ȟȍȔ
ȔȖȕȚȐȘȖȊȈȚȤ
ȋȈȏȖȊțȦ
ȊȈȘȖȟȕțȦ
ȗȖȊȍȘȝȕȖșȚȤ
Ȋ
ȗȖȌȋȖȚȖȊȓȍȕȕțȦ
Ȍȓȧ
ȕȍȍ
ȕȐȠț
(
șȔ
.
ȘȐș
. 6)
ȕȍȖȉȝȖȌȐȔȖ
ȗȘȐȒȘȍȗȐȚȤ
ȗȘȐȓȈȋȈȍȔțȦ
ȒȓȍȧȡțȦșȧ
țȗȓȖȚȕȐȚȍȓȤȕțȦ
ȗȘȖȒȓȈȌȒț
ǹ
ȗȖ
ȕȐȎȕȍȔț
ȒȘȈȦ
ȊȈȘȖȟȕȖȑ
ȗȖȊȍȘȝȕȖșȚȐ
.
DzȘȍȗȐȚȤ
ȗȘȖȒȓȈȌȒț
ȕȍȖȉȝȖȌȐȔȖ
ȘȈȊȕȖȔȍȘȕȖ
ȗȖ
ȊșȍȔț
ȗȍȘȐȔȍȚȘț
,
ȕȍ
ȌȖȗțșȒȈȧ
ȕȐ
ȘȈȏȘȣȊȖȊ
,
ȕȐ
ȕȈȓȖȎȍȕȐȑ
.
Ǭȓȧ
ȥȚȖȋȖ
șȕȐȔȐȚȍ
ȗȖȌȌȍȘȎȐȊȈȦȡȐȍ
ȘȍȠȍȚȒȐ
Ȍȓȧ
ǸȐș
. 8
ȗȖșțȌȣ
,
ȒȖȓȗȈȟȒȐ
Ȑ
ȘȈșșȍȒȈȚȍȓȐ
ȋȖȘȍȓȖȒ
Ȑ
ȗȍȘȍȊȍȘȕȐȚȍ
ȋȈȏȖȊțȦ
ȊȈȘȖȟȕțȦ
ȗȖȊȍȘȝȕȖșȚȤ
,
șȓȍȌȧ
ȏȈ
ȚȍȔ
,
ȟȚȖȉȣ
ȕȍ
ȗȖȊȘȍȌȐȚȤ
șȊȍȟȐ
ȘȖȏȎȐȋȈ
Ȑ
ȚȍȘȔȖȥȓȍȔȍȕȚȣ
«
ȋȈȏ
-
ȒȖȕȚȘȖȓȧ
».
ǷȘȐȒȓȍȑȚȍ
țȗȓȖȚȕȐȚȍȓȤȕțȦ
ȗȘȖȒȓȈȌȒț
ǹ
ȗȖ
țȋȓțȉȓȍȕȐȦ
ȕȐȎȕȍȋȖ
ȒȘȈȧ
ȋȈȏȖȊȖȑ
ȊȈȘȖȟȕȖȑ
ȗȖȊȍȘȝȕȖșȚȐ
.
ǷȖȔȍșȚȐȚȍ
ȊȈȘȖȟȕțȦ
ȗȖȊȍȘȝȕȖșȚȤ
Ȋ
ȗȖȌȋȖȚȖȊȓȍȕȕțȦ
Ȍȓȧ
ȕȍȍ
ȕȐȠț
ȘȖȊȕȖ
ȗȖșȍȘȍȌȐȕȍ
,
ȗȘȐȌȍȘȎȐȊȈȧ
ȍȍ
șȕȐȏț
.
ǯȈȚȍȔ
ȕȈȎȔȐȚȍ
ȕȈ
ȕȍȍ
ȊȕȐȏ
ȚȈȒ
,
ȟȚȖȉȣ
ȋȈȏȖȊȈȧ
ȊȈȘȖȟȕȈȧ
ȗȖȊȍȘȝȕȖșȚȤ
țșȚȖȑȟȐȊȖ
ȖȗȐȘȈȓȈșȤ
ȕȈ
ȔȍȉȍȓȤ
.
ȅȚț
ȖȗȍȘȈȞȐȦ
țȌȖȉȕȍȍ
ȊȣȗȖȓȕȧȚȤ
ȊȌȊȖȍȔ
,
ȟȚȖȉȣ
ȕȍ
șȔȍșȚȐȚȤ
țȗȓȖȚȕȐȚȍȓȤȕțȦ
ȗȘȖȒȓȈȌȒț
ǹ
.
ǯȈȒȘȍȗȐȚȍ
ȋȈȏȖȊțȦ
ȊȈȘȖȟȕțȦ
ȗȖȊȍȘȝȕȖșȚȤ
Ȓ
ȒȖȘȗțșț
șȚȖȓȍȠȕȐȞȣ
ș
ȗȖȔȖȡȤȦ
ȊȝȖȌȧȡȐȝ
Ȋ
ȒȖȔȗȓȍȒȚ
ȗȖșȚȈȊȒȐ
șȒȖȉ
Ǩ
Ȑ
ȠțȘțȗȖȊ
Ǫ
.
ǭșȓȐ
ȐȏȖȓȐȘțȦȡȈȧ
țȗȓȖȚȕȐȚȍȓȤȕȈȧ
ȗȘȖȒȓȈȌȒȈ
ǹ
ȗȖșȚȈȊȓȍȕȈ
ȗȘȈȊȐȓȤȕȖ
,
ȖȕȈ
ȖȉȍșȗȍȟȐȚ
ȗȖȓȕțȦ
ȏȈȡȐȚț
ȖȚ
ȗȘȖȕȐȒȕȖȊȍȕȐȧ
ȎȐȌȒȖșȚȐ
ȗȖȌ
ȋȈȏȖȊțȦ
ȊȈȘȖȟȕțȦ
ȗȖȊȍȘȝȕȖșȚȤ
.
ȅȚȖ
ȖșȖȉȍȕȕȖ
ȈȒȚțȈȓȤȕȖ
ȗȘȐ
ȗȘȖȊȍȌȍȕȐȐ
ȘȈȉȖȚ
ȗȖ
ȖȟȐșȚȒȍ
Ȑ
țȝȖȌț
ȏȈ
ȊȈȘȖȟȕȖȑ
ȗȖȊȍȘȝȕȖșȚȤȦ
.
Характеристики
Остались вопросы?Не нашли свой ответ в руководстве или возникли другие проблемы? Задайте свой вопрос в форме ниже с подробным описанием вашей ситуации, чтобы другие люди и специалисты смогли дать на него ответ. Если вы знаете как решить проблему другого человека, пожалуйста, подскажите ему :)