Варочная панель MBS PE-603 - инструкция пользователя по применению, эксплуатации и установке на русском языке. Мы надеемся, она поможет вам решить возникшие у вас вопросы при эксплуатации техники.
Если остались вопросы, задайте их в комментариях после инструкции.
"Загружаем инструкцию", означает, что нужно подождать пока файл загрузится и можно будет его читать онлайн. Некоторые инструкции очень большие и время их появления зависит от вашей скорости интернета.

KZ
42
Плита 90 см
Плита 100 см
5.
Бұйымды тартпалы жәшікте монтаждаған жағдайда оның төменгі
жағы қол жетімді болып қалса, оны ағаш сөремен бөліп қою керек.
6.
Бұйымды шкафта монтаждаған жағдайда, сөрені плитаны шкафтан
қоршау үшін жоғарыдағы суретте көрсетілгендей орнату керек. Егер плита
кіріктірілген духовкінің үстіне салынса, оның қажеті жоқ.
7.
Егер Сіздің аспабыңыз сол немесе оң қабырға қасына салынса,
қабырға мен плита арасындағы аралық кем дегенде 50мм болуы тиіс.
МОНТАЖДАУ ҮШІН ДҰРЫС ОРЫН
Бұйым дизайны нарықта
көп
үстел
беттеріне
сәйкес жасалған. Ас үй
қабырғалары
немесе
жиһаз арасында қауіпсіз
аралық қалдыру қажет.
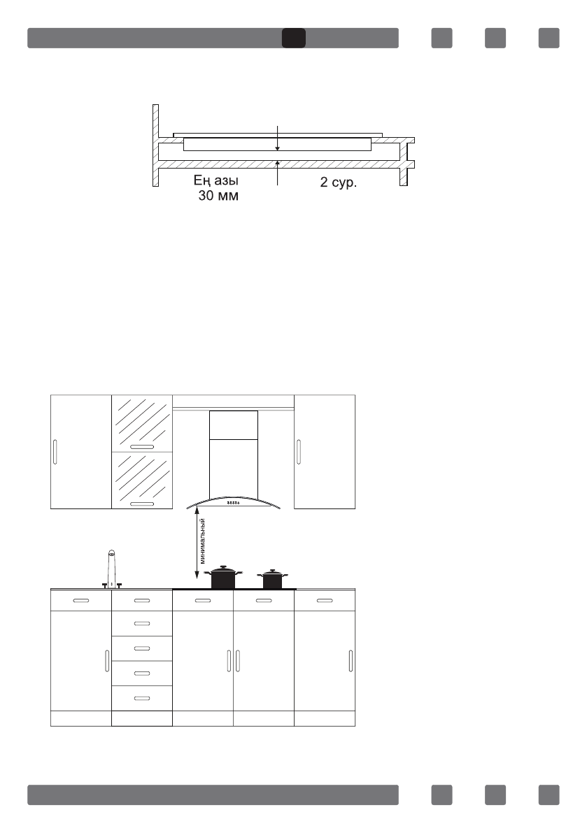
Егер
бұйым
үстіне
тартпалы
қалпақ/
аспиратор орнатылатын
болса, тартпалы қалпақ/
аспиратор
өндірушісінің
монтаждау
биіктігіне
қатысты
талаптарын
ұстаныңыз. (ең азы 65 см).
Үстел
бетіне
плита
орнатылатын
аралық
плитаның
монтаждық
өлшемдеріне
сәйкес
болуы керек.
Бұйымды
монтаждаған
кезде электр жұмыстар
бөлігіндегі
жергілікті
с т а н д а р т т а р м е н
белгіленген
ережелерді
ұстаныңыз.
650 mm
Содержание
- 18 СОДЕРЖАНИЕ
- 21 ОПИСАНИЕ ПРИБОРА; - Положения нагревателя
- 22 ПУЛЬТЫ УЛРАBЛEHИЯ; КАК ВКЛЮЧИТЬ БЛОКИРОВКУ ОТ ДЕТЕЙ; Блок-схема для активации блокировки от детей:; Блокировка от детей может быть активирована после включения
- 24 Блок-схема для дезактивации блокировки от детей:; СХЕМА ЭЛЕКТРИЧЕСКОГО ПОДКЛЮЧЕНИЯ; Обеспечьте подключение электрической системы плиты
- 28 ПРАВИЛЬНОЕ МЕСТО ДЛЯ МОНТАЖА; РАЗМЕРЫ МЕСТА ПОД ПЛИТУ и УСТАНОВКА ПЛИТЫ; При монтаже плиты и подготовке места для ее монтажа в столешнице
- 30 управления до требуемого уровня. Мощность плиты в зависимости от; ВЕЛИЧИНА МОЩНОСТИ ЭЛЕКТРИЧЕСКОГО НАГРЕВАТЕЛЯ; пpaвo; ТЕХНИЧЕСКОЕ ОБСЛУЖИВАНИЕ И ЧИСТКА
Характеристики
Остались вопросы?Не нашли свой ответ в руководстве или возникли другие проблемы? Задайте свой вопрос в форме ниже с подробным описанием вашей ситуации, чтобы другие люди и специалисты смогли дать на него ответ. Если вы знаете как решить проблему другого человека, пожалуйста, подскажите ему :)













