Варочная панель LuxDorf H30D12B050 - инструкция пользователя по применению, эксплуатации и установке на русском языке. Мы надеемся, она поможет вам решить возникшие у вас вопросы при эксплуатации техники.
Если остались вопросы, задайте их в комментариях после инструкции.
"Загружаем инструкцию", означает, что нужно подождать пока файл загрузится и можно будет его читать онлайн. Некоторые инструкции очень большие и время их появления зависит от вашей скорости интернета.

23
5.
В случае монтажа изделия на выдвижном ящике, если его нижняя
часть остается доступной, ее следует отделить деревянной полкой.
6.
Во время монтажа изделия на шкафу, необходимо установить
полку, как показано на рисунке выше, для того, чтобы оградить плиту от
шкафа. Если плита монтируется поверх встроенной духовки, в этом нет
необходимости.
7.
Если Ваше изделие монтируется рдяом с левой или правой стеной,
самое небольшое расстояние между стеной и плитой должно быть 50мм.
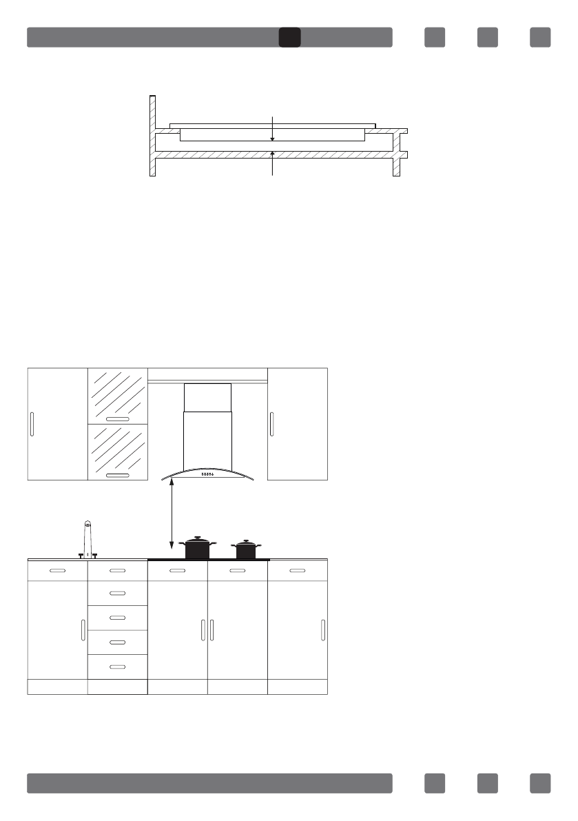
ПРАВИЛЬНОЕ МЕСТО ДЛЯ МОНТАЖА
Дизайн изделия
разработан в соответствии
с доступными на рынке
столешницами. Между
стенами кухни и мебелью
следует оставить
безопасное расстояние.
Если на верху изделия
будет устанавливаться
вытяжной колпак/аспиратор,
соблюдайте требования
изготовителя вытяжного
колпака/аспиратора
относительно высоты
монтажа. (Мин. 65 см).
Промежуток, в котором
будет установлена плита
на столешнице, должен
соответствовать монтажным
размерам плиты.
Во время монтажа изделия следует соблюдать правила, установленные
местными стандартами в части электрических работ.
минимальный.
30
мм
Рис. 2
минимальный
650 mm
RU
Содержание
- 16 СОДЕРЖАНИЕ
- 19 ОПИСАНИЕ ПРИБОРА; - Положения нагревателя
- 20 Обеспечьте подключение электрической системы плиты; Изображение панели плиты 30см
- 22 МОНТАЖ ПЛИТЫ НА МЕСТО
- 23 ПРАВИЛЬНОЕ МЕСТО ДЛЯ МОНТАЖА
- 24 РАЗМЕРЫ МЕСТА ПОД ПЛИТУ и УСТАНОВКА ПЛИТЫ; При монтаже плиты и подготовке места для ее монтажа в столешнице
- 25 управления до требуемого уровня. Мощность плиты в зависимости от; ВЕЛИЧИНА МОЩНОСТИ ЭЛЕКТРИЧЕСКОГО НАГРЕВАТЕЛЯ; пpaвo
- 26 ТЕХНИЧЕСКОЕ ОБСЛУЖИВАНИЕ И ЧИСТКА
Характеристики
Остались вопросы?Не нашли свой ответ в руководстве или возникли другие проблемы? Задайте свой вопрос в форме ниже с подробным описанием вашей ситуации, чтобы другие люди и специалисты смогли дать на него ответ. Если вы знаете как решить проблему другого человека, пожалуйста, подскажите ему :)













