Варочная панель Gaggenau VG 411-210 - инструкция пользователя по применению, эксплуатации и установке на русском языке. Мы надеемся, она поможет вам решить возникшие у вас вопросы при эксплуатации техники.
Если остались вопросы, задайте их в комментариях после инструкции.
"Загружаем инструкцию", означает, что нужно подождать пока файл загрузится и можно будет его читать онлайн. Некоторые инструкции очень большие и время их появления зависит от вашей скорости интернета.

17
Подключение прибора
Электроподключение
Подсоединение к электросети (220-240 В
переменного тока) выполняется посредством
подключения кабеля и штекера с защитным
контактом к заземленной розетке или разъему, к
которым после установки газовой плиты должен
быть сохранен доступ.
Если после установки прибора его
полноконтактное отсоединение от сети
посредством вытягивания штекера из розетки
становится невозможным, то он должен быть
оборудован устройством разъединения с
контактным зазором (предохранителя) не менее
3 мм. При выполнении подключения следует
проследить, чтобы провода не входили в
соприкосновение с нагревающимися частями
плиты или другими нагревающимися объектами.
Перед тем, как прибор будет включен в сеть,
поверните ручку управления в положение 0.
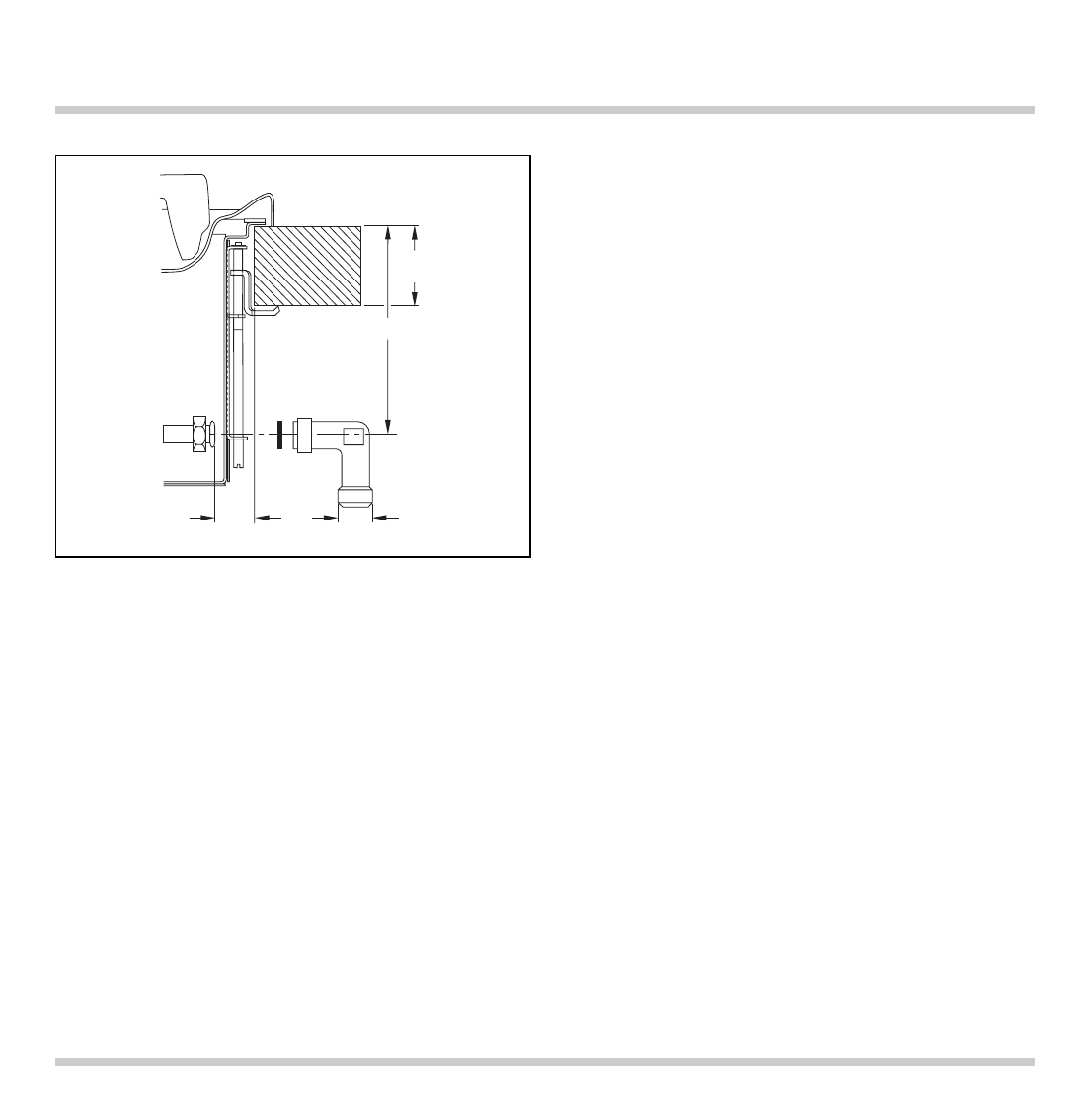
Подключение газа
Газовое подсоединение должно быть выполнено
таким образом, чтобы доступ к запорному крану
оставался свободным и чтобы при открытии
дверцы шкафа кран находился в поле видимости.
Прибор должен подсоединяться к стационарному
газотрубопроводу посредством прилагаемого
соединительного уголка R 1/2“ (со стороны
прибора) с прокладкой или же с помощью
типизированного безопасного газового шланга
согласно DIN 3383 Часть 1. Если этот шланг
выполнен только частично из металла, то
окружающая температура не должна превышать
70 °K. Для полностью металлического газового
шланга, допустимая температура равна 115 °K.
Гибкий трубопровод должен быть проложен так,
чтобы своей подвижной частью не входить в
соприкосновение с частями кухонной мебели
(напр., с выдвижными ящиками).
Кабель подключения должен быть по крайней
мере типа H 05 V2V2 3G 0,75 или соответствующего
температурного класса (не менее 90 °C).
Кабель подключения должен прокладываться
и включаться только специалистом-техником.
Руководствуясь данными типовой таблички,
оборудуйте заземление и выполните подключение
к сети.
105
28
1
/
2
"
50
max.
Характеристики
Остались вопросы?Не нашли свой ответ в руководстве или возникли другие проблемы? Задайте свой вопрос в форме ниже с подробным описанием вашей ситуации, чтобы другие люди и специалисты смогли дать на него ответ. Если вы знаете как решить проблему другого человека, пожалуйста, подскажите ему :)