Варочная панель Fulgor Milano CPH 402 G X - инструкция пользователя по применению, эксплуатации и установке на русском языке. Мы надеемся, она поможет вам решить возникшие у вас вопросы при эксплуатации техники.
Если остались вопросы, задайте их в комментариях после инструкции.
"Загружаем инструкцию", означает, что нужно подождать пока файл загрузится и можно будет его читать онлайн. Некоторые инструкции очень большие и время их появления зависит от вашей скорости интернета.

14
15
GB
Installation
This appliance is not provided with a combustion
product discharge. It is recommended that it be installed
insufficiently aerated places, in terms of the laws in force.
The quantity of air which is necessary for combustion
must not be below 2.0 m
3
/h for each kW of installed
power. See table of burner power.
Note:
The appliance is in installation class 3.
The appliance's adjustment parameters are shown on
the plate attached to its housing.
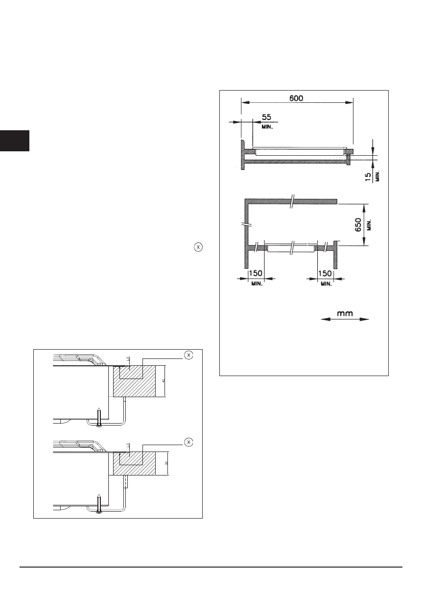
Positioning (Fig. 2)
The cook top is designed to be built in to a work surface
as shown in the figure.
Before installing the cook top, install the gasket seal
around the entire perimeter of the hole where it will be
inserted.
The dimensions of the hole are shown in figures 6-7-8-9.
For Filotop models, the perimeter of the hole must be
lowered by a depth of 1.5 mm.
The hole does not need to be milled for Semifilotop
models.
The cook top can be installed on different materials such
as brickwork, steel, marble, conglomerates, synthetics,
wood and wood covered with plastic laminates, so long
as resistant to a temperature of 90 °C.
Fig. 2
A panel made of wood or other insulating material
must be installed under the cook top at a distance
of at least 15 mm from the surface.
Instructions for the installer
Fig. 2
SEAL
SEAL
Характеристики
Остались вопросы?Не нашли свой ответ в руководстве или возникли другие проблемы? Задайте свой вопрос в форме ниже с подробным описанием вашей ситуации, чтобы другие люди и специалисты смогли дать на него ответ. Если вы знаете как решить проблему другого человека, пожалуйста, подскажите ему :)













