Варочная панель EXITEQ PF 640 STX-E/A - инструкция пользователя по применению, эксплуатации и установке на русском языке. Мы надеемся, она поможет вам решить возникшие у вас вопросы при эксплуатации техники.
Если остались вопросы, задайте их в комментариях после инструкции.
"Загружаем инструкцию", означает, что нужно подождать пока файл загрузится и можно будет его читать онлайн. Некоторые инструкции очень большие и время их появления зависит от вашей скорости интернета.

13
При построении корпуса должны быть предприняты соответствующие предосторожности,
чтобы предотвратить контакт с кожухом газовой плиты, который становится очень горячим
во время работы. Рекомендуемый метод для преодоления этой проблемы проиллюстрирован
на рисунке 1.
Панель ниже газовой плиты должна быть легко удаляемой, чтобы позволить газовой плите
быть закрепленной в некотором положении и позволять доступ вовнутрь для работ по
обслуживанию.
Рис.1. а
-
удаляемая панель,
b
–
пространство для
подсоединений
На корпусе основы с духовкой
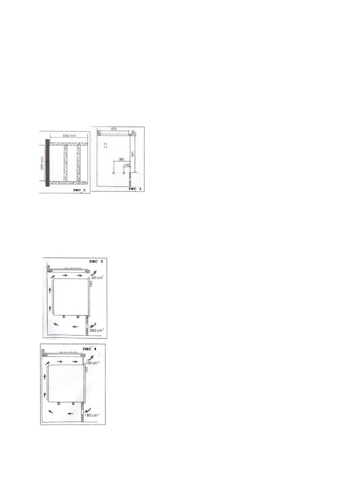
Отсек для установки должен иметь размеры, показанные на рисунках 2 и 3, и должен иметь
подставки для обеспечения удовлетворительной вентиляции. Два возможных метода
избежания перегрева показаны на рисунках 3 и 4. Подключения к электросети газовой плиты
и духовки должны быть сделаны отдельно, как по электрическим причинам, так и для
упрощения удаления духовки через переднюю
Панель корпуса
Настенные корпуса или вытяжные шкафы должны быть по крайней мере на 650 мм выше
Характеристики
Остались вопросы?Не нашли свой ответ в руководстве или возникли другие проблемы? Задайте свой вопрос в форме ниже с подробным описанием вашей ситуации, чтобы другие люди и специалисты смогли дать на него ответ. Если вы знаете как решить проблему другого человека, пожалуйста, подскажите ему :)













