Варочная панель LuxDorf H45D13B050 - инструкция пользователя по применению, эксплуатации и установке на русском языке. Мы надеемся, она поможет вам решить возникшие у вас вопросы при эксплуатации техники.
Если остались вопросы, задайте их в комментариях после инструкции.
"Загружаем инструкцию", означает, что нужно подождать пока файл загрузится и можно будет его читать онлайн. Некоторые инструкции очень большие и время их появления зависит от вашей скорости интернета.

10
5.
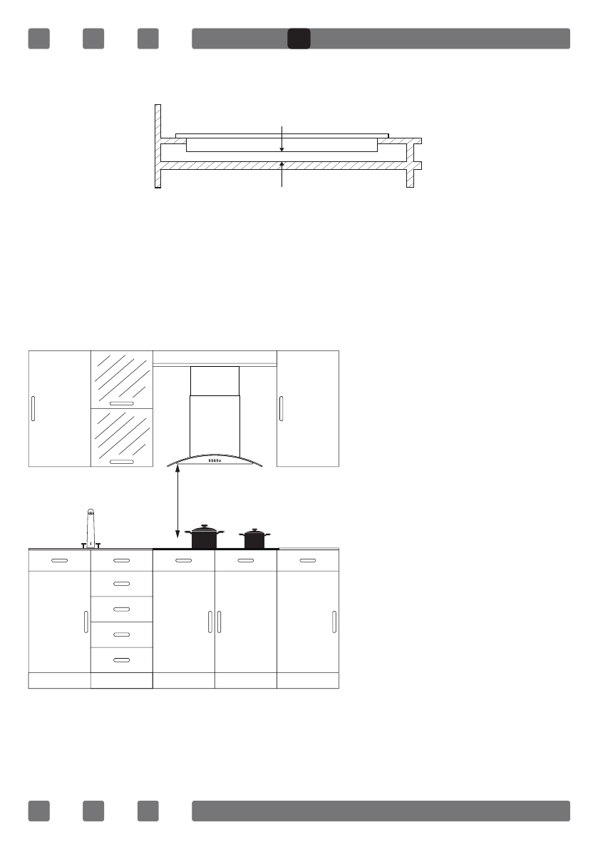
When product is mounted on a drawer, if it is possible to touch
lower side of product, this section should be separated with a wooden
shelf.
6.
While mounting cooktop on a closet, as shown in the figure above, in
order to separate between closet and cooktop, a shelf should be mounted.
If it is mounted on a built-in oven, there is no need to do that.
7.
If your cooktop will be mounted next to right or left wall, the
minimum distance between wall and cooktop should be 50 mm.
CORRECT PLACE FOR INSTALLATION
Product is designed in
accordance with the kitch-
en counters supplied from
market. A safe distance
should be left between the
product and kitchen walls
and furniture.
If hood/aspirator will be
installed over your appli-
ance, obey to the recom-
mendation of hood/aspirator
manufacturer for assembly
height. (min. 65 cm)
The gap that cooktop is to
be placed on the counter
should be cut in line with
cooktop installation dimen-
sions.
For installation of the product, the rules specified in local standards
related to electricity should be complied.
min. 30 mm
Figure 2
650 mm min.
GB
Содержание
- 16 СОДЕРЖАНИЕ
- 19 ОПИСАНИЕ ПРИБОРА; - Положения нагревателя
- 20 Обеспечьте подключение электрической системы плиты; Изображение панели плиты 30см
- 22 МОНТАЖ ПЛИТЫ НА МЕСТО
- 23 ПРАВИЛЬНОЕ МЕСТО ДЛЯ МОНТАЖА
- 24 РАЗМЕРЫ МЕСТА ПОД ПЛИТУ и УСТАНОВКА ПЛИТЫ; При монтаже плиты и подготовке места для ее монтажа в столешнице
- 25 управления до требуемого уровня. Мощность плиты в зависимости от; ВЕЛИЧИНА МОЩНОСТИ ЭЛЕКТРИЧЕСКОГО НАГРЕВАТЕЛЯ; пpaвo
- 26 ТЕХНИЧЕСКОЕ ОБСЛУЖИВАНИЕ И ЧИСТКА
Характеристики
Остались вопросы?Не нашли свой ответ в руководстве или возникли другие проблемы? Задайте свой вопрос в форме ниже с подробным описанием вашей ситуации, чтобы другие люди и специалисты смогли дать на него ответ. Если вы знаете как решить проблему другого человека, пожалуйста, подскажите ему :)


