Варочная панель Ariston PO 740 ES - инструкция пользователя по применению, эксплуатации и установке на русском языке. Мы надеемся, она поможет вам решить возникшие у вас вопросы при эксплуатации техники.
Если остались вопросы, задайте их в комментариях после инструкции.
"Загружаем инструкцию", означает, что нужно подождать пока файл загрузится и можно будет его читать онлайн. Некоторые инструкции очень большие и время их появления зависит от вашей скорости интернета.

7
PF 640 ES, PO 740 ES, TQ 740 TC ES, PF 604
6
PF 640 ES, PO 740 ES, TQ 740 TC ES, PF 604
â)
Ïîñòîÿííîå è èíòåíñèâíîå èñïîëüçîâàíèå îáîðóäîâàíèÿ òðåáóåò äîïîëíè-
òåëüíîé âåíòèëÿöèè, íàïðèìåð, îòêðûòèÿ îêíà èëè óâåëè÷åíèÿ ìîùíîñòè
ñèñòåìû âñàñûâàíèÿ âîçäóõà (ïðè íàëè÷èè).
ã)
Ñæèæåííûé ãàç òÿæåëåå âîçäóõà, è ïîýòîìó ñêàïëèâàåòñÿ âíèçó. Ïîìåùå-
íèÿ, â êîòîðûõ óñòàíàâëèâàþòñÿ áàëëîíû ñî ñæèæåííûì ãàçîì, äîëæíû
áûòü îñíàùåíû íàðóæíîé âåíòèëÿöèåé, ÷òîáû ÷åðåç íåå ìîã óõîäèòü ãàç â
ñëó÷àå óòå÷êè. Íåëüçÿ óñòàíàâëèâàòü è õðàíèòü áàëëîíû ñ ãàçîì â ïîìå-
ùåíèÿõ, ðàñïîëîæåííûõ íèæå óðîâíÿ çåìëè (â ïîäâàëàõ è ò.ï.). Äåðæèòå â
ïîìåùåíèè òîëüêî èñïîëüçóåìûé â äàííîå âðåìÿ áàëëîí, è íå ðàñïîëà-
ãàéòå åãî âáëèçè èñòî÷íèêîâ òåïëà (äóõîâîê, êàìèíîâ, ïå÷åé è ò.ï.) îíè
ìîãóò íàãðåòü áàëëîí âûøå 50°Ñ.
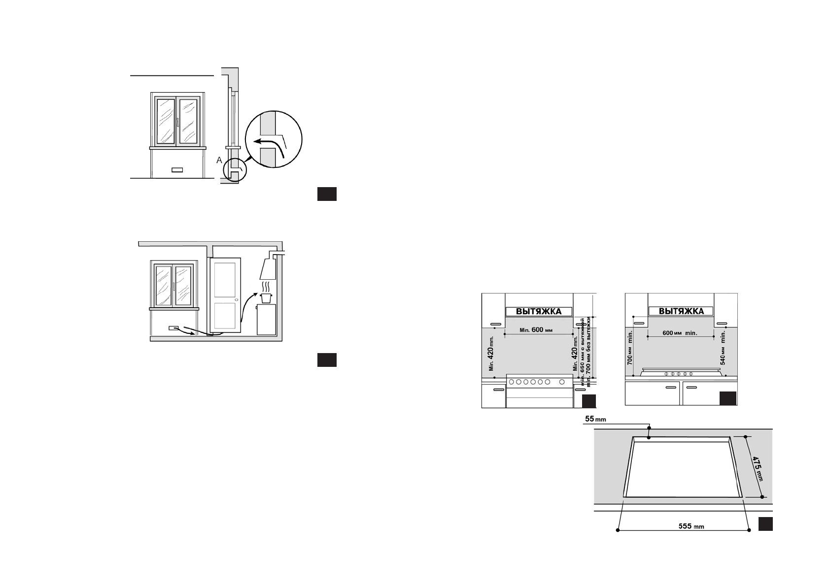
Ïðèìåð îáåñïå÷åíèÿ
ïðèòîêà âîçäóõà
Ïðèòî÷íîå
îòâåðñòèå À
Ñìåæíîå
ïîìåùåíèå
Ïîìåùåíèå, òðåáóþùåå
âåíòèëÿöèè
Óâåëè÷åíèå çàçîðà ìåæäó äâåðüþ è ïîðîãîì
äëÿ ñâîáîäíîãî ïðîõîäà ïðèòî÷íîãî âîçäóõà
2 À
2 Â
Óñòàíîâêà âñòðàèâàåìûõ ðàáî÷èõ ïîâåðõíîñòåé
(äëÿ âñåõ ìîäåëåé)
Îáîðóäîâàíèå ìîæåò áûòü óñòàíàâëèâàòüñÿ ðÿäîì ñ ìåáåëüþ, êîòîðàÿ íå âûøå
âåðõíåãî êðàÿ ðàáî÷åé ïîâåðõíîñòè. Ñòåíà, ñîïðèêàñàþùàÿñÿ ñ çàäíåé ïàíå-
ëüþ îáîðóäîâàíèÿ äîëæíà áûòü ñäåëàíà èç íåâîñïëàìåíÿþùèõñÿ ìàòåðèàëîâ
(âî âðåìÿ ðàáîòû çàäíÿÿ ïàíåëü îáîðóäîâàíèÿ ìîæåò íàãðåâàòüñÿ äî òåìïå-
ðàòóðû, ïðåâûøàþùåé êîìíàòíóþ íà 50°Ñ). Äëÿ ïðàâèëüíîé óñòàíîâêè îáî-
ðóäîâàíèÿ íåîáõîäèìî ñîáëþäàòü ñëåäóþùèå óêàçàíèÿ:
à)
Íàõîäÿùàÿñÿ ðÿäîì ìåáåëü, ïðåâûøàþùàÿ îáîðóäîâàíèå ïî âûñîòå,
äîëæíà íàõîäèòüñÿ íà ðàññòîÿíèè íå ìåíåå
600 ìì
(
PF 640 ES, PO740 ES,
TQ 740 TC ES
);
110 ìì
(
PF 604
) îò êðàÿ ðàáî÷åé ïîâåðõíîñòè.
á)
Âûòÿæêè óñòàíàâëèâàþòñÿ ñîãëàñíî èõ èíñòðóêöèÿì ïî óñòàíîâêå, è íà ðàñ-
ñòîÿíèè íå ìåíåå
650 ìì
(äëÿ âñåõ ìîäåëåé) îò ðàáî÷åé ïîâåðõíîñòè.
â)
Êóõîííàÿ ìåáåëü, ðàñïîëîæåííàÿ ðÿäîì ñ âûòÿæêîé, äîëæíà áûòü ðàçìå-
ùåíà íà âûñîòå íå ìåíåå
420 ìì
(
TQ 740 TC ES, PF 604
) îò ðàáî÷åé ïîâåð-
õíîñòè (
ñì. ðèñ. 3
).
Åñëè øèðèíà âûòÿæêè 600 ìì, ïîìèìî âûïîëíåíèÿ ðåêîìåíäàöèé ï.
á
, ñî-
ñåäíÿÿ ñ âûòÿæêîé ìåáåëü äîëæíà áûòü ðàñïîëîæåíà íà âûñîòå íå ìåíåå
540 ìì
(
PF 640 ES, PO740 ES
) îò âåðõíåãî êðàÿ îáîðóäîâàíèÿ, ÷òî ïîçâî-
ëèò âñåãäà ëåãêî ïîëüçîâàòüñÿ êàñòðþëÿìè è ñêîâîðîäàìè íà ðàáî÷åé ïî-
âåðõíîñòè (
ñì. ðèñ. 3.1
).
ã)
Ïðè óñòàíîâêå ðàáî÷åé ïîâåðõíîñòè ïîä íàâåñíûì øêàôîì, ðàññòîÿíèå
ìåæäó íèìè äîëæíî áûòü íå ìåíåå
700 ìì
(
ðèñ. 3; 3.1
).
ä)
Ðàçìåðû âûðåçà äëÿ
âñòðàèâàíèÿ ðàáî÷åé ïî-
âåð õíîñòè
äîëæíû
ñîîòâåòñòâîâàòü ðàçìå-
ðàì, óêàçàííûì íà
ðèñ. 4.
3
3.1
4