Варочная панель Teka IR 942 HS - инструкция пользователя по применению, эксплуатации и установке на русском языке. Мы надеемся, она поможет вам решить возникшие у вас вопросы при эксплуатации техники.
Если остались вопросы, задайте их в комментариях после инструкции.
"Загружаем инструкцию", означает, что нужно подождать пока файл загрузится и можно будет его читать онлайн. Некоторые инструкции очень большие и время их появления зависит от вашей скорости интернета.

РУС
Установка
УСТАНОВКУ И НАСТРОЙКУ ДОЛЖЕН
ВЫПОЛНЯТЬ КВАЛИФИЦИРОВАННЫЙ
ТЕХНИЧЕСКИЙ
СПЕЦИАЛИСТ
В
СООТВЕТСТВИИ С ДЕЙСТВУЮЩИМИ
СТАНДАРТАМИ ПО УСТАНОВКЕ.
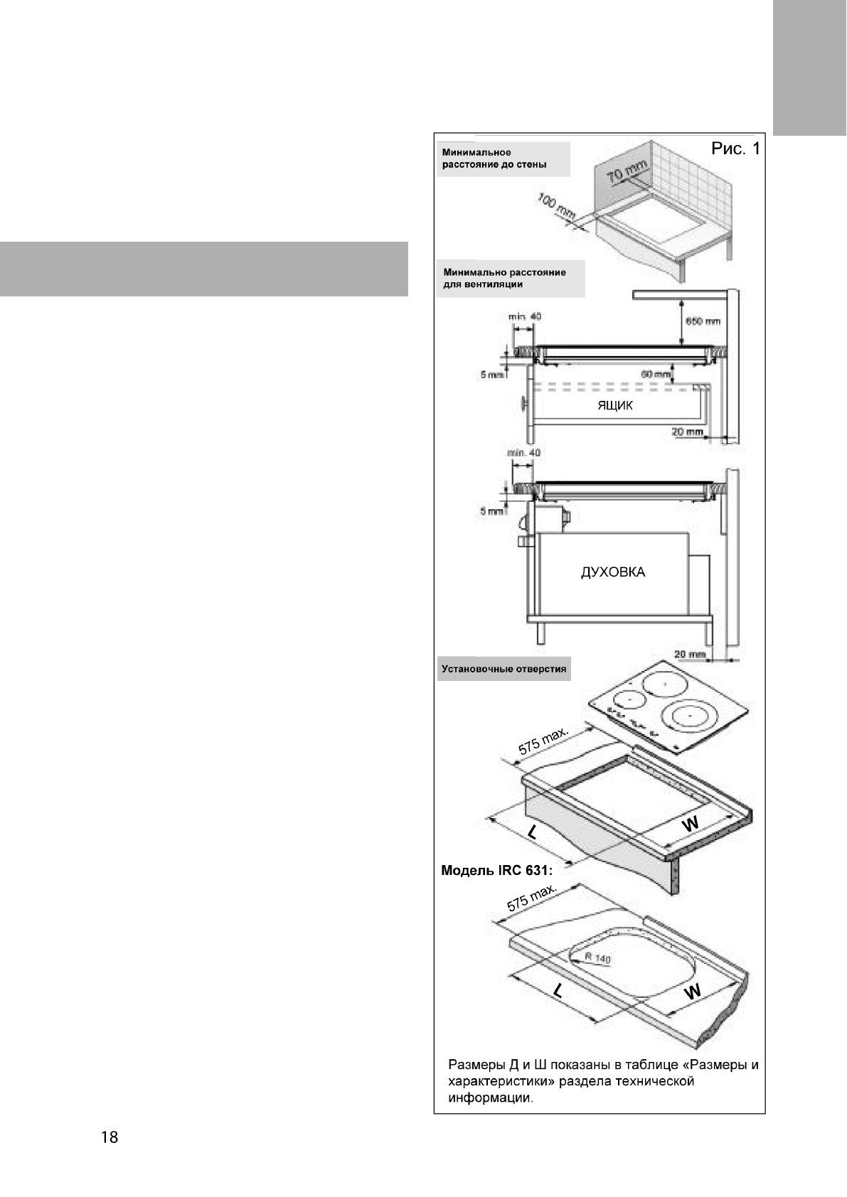
Размещение варочной
панели
Для
установки
указанных
моделей
необходимо
вырезать
в
рабочей
поверхности секции проем с размерами,
приведенными на рисунке 1.
Система
крепления
верхней
части
рассчитана на толщину мебели 20, 30 и
40 мм.
Минимальное
расстояние
между
поверхностью, на которую ставится
посуда, и нижней частью кухонной секции
или колпака вытяжки, расположенного
над плитой, должно составлять 650 мм.
Если инструкции по монтажу вытяжки
рекомендуют, чтобы зазор был больше,
необходимо
выполнять
эти
рекомендации.
Секция, в которой будут размещаться
варочная панель и духовка, должна быть
соответствующим образом закреплена.
УСТАНОВКА С ВЫДВИЖНЫМ
ЯЩИКОМ ДЛЯ СТОЛОВЫХ ПРИБОРОВ
ИЛИ НИЖНИМ ШКАФЧИКОМ
Если вы хотите иметь под плитой ящик
для столовых приборов, необходимо
установить между ними разделительную
доску на расстоянии не менее 60 мм от
задней части плиты, чтобы избежать
блокировки
вентиляторов
плиты
размещенными в ящике предметами.
Таким
образом
можно
избежать
потенциального
риска
в
связи
с
хранением в ящике воспламеняющихся
предметов.
УСТАНОВКА С ВЕНТИЛИРУЕМОЙ
ДУХОВКОЙ ПОД ВАРОЧНОЙ
ПАНЕЛЬЮ
Духовка
должна
устанавливаться
согласно соответствующему руководству.
Если варочная плита устанавливается
вместе с размещением под ней духовки,
Характеристики
Остались вопросы?Не нашли свой ответ в руководстве или возникли другие проблемы? Задайте свой вопрос в форме ниже с подробным описанием вашей ситуации, чтобы другие люди и специалисты смогли дать на него ответ. Если вы знаете как решить проблему другого человека, пожалуйста, подскажите ему :)













