Варочная панель Smeg SE332ED - инструкция пользователя по применению, эксплуатации и установке на русском языке. Мы надеемся, она поможет вам решить возникшие у вас вопросы при эксплуатации техники.
Если остались вопросы, задайте их в комментариях после инструкции.
"Загружаем инструкцию", означает, что нужно подождать пока файл загрузится и можно будет его читать онлайн. Некоторые инструкции очень большие и время их появления зависит от вашей скорости интернета.

Установка
269
RU
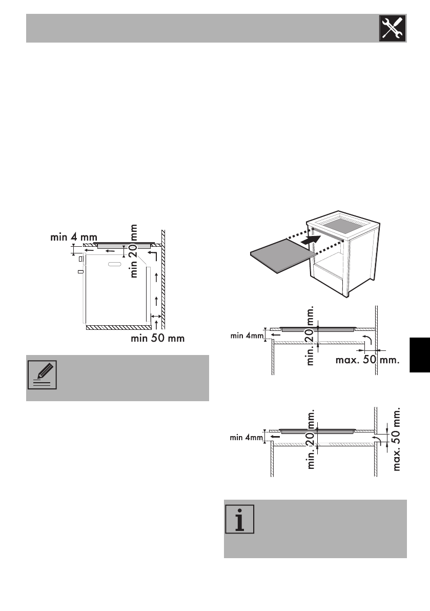
5.3 Встраивание
В отсеке встраиваемой духовки
Расстояние между варочной
поверхностью и кухонной мебелью или
встраиваемыми аппаратами должно
гарантировать достаточную вентиляцию
и достаточный выход воздуха.
При установке над духовкой
необходимо предусмотреть наличие
свободного пространства между дном
варочной поверхности и частью
устанавливаемого ниже оборудования.
В нейтральном отсеке или ящиках
При наличии иной мебели (боковые
стенки, ящики и т.п.), посудомоечных
машин или холодильников,
расположенных под варочной
поверхностью, необходимо установить
деревянное двойное дно на
минимальном расстоянии
20 мм
от
нижней стороны варочной поверхности
во избежание случайных контактов.
Двойное дно можно удалить только при
помощи специальных инструментов.
с отверстием на дне
с отверстием сзади
При установке над духовкой
последняя должна снабжаться
охлаждающим вентилятором.
Если не устанавливать двойное
дно, то пользователь рискует
случайно коснуться острых или
горячих частей.
Характеристики
Остались вопросы?Не нашли свой ответ в руководстве или возникли другие проблемы? Задайте свой вопрос в форме ниже с подробным описанием вашей ситуации, чтобы другие люди и специалисты смогли дать на него ответ. Если вы знаете как решить проблему другого человека, пожалуйста, подскажите ему :)