Варочная панель Smeg S64SB - инструкция пользователя по применению, эксплуатации и установке на русском языке. Мы надеемся, она поможет вам решить возникшие у вас вопросы при эксплуатации техники.
Если остались вопросы, задайте их в комментариях после инструкции.
"Загружаем инструкцию", означает, что нужно подождать пока файл загрузится и можно будет его читать онлайн. Некоторые инструкции очень большие и время их появления зависит от вашей скорости интернета.

Установка
275
RU
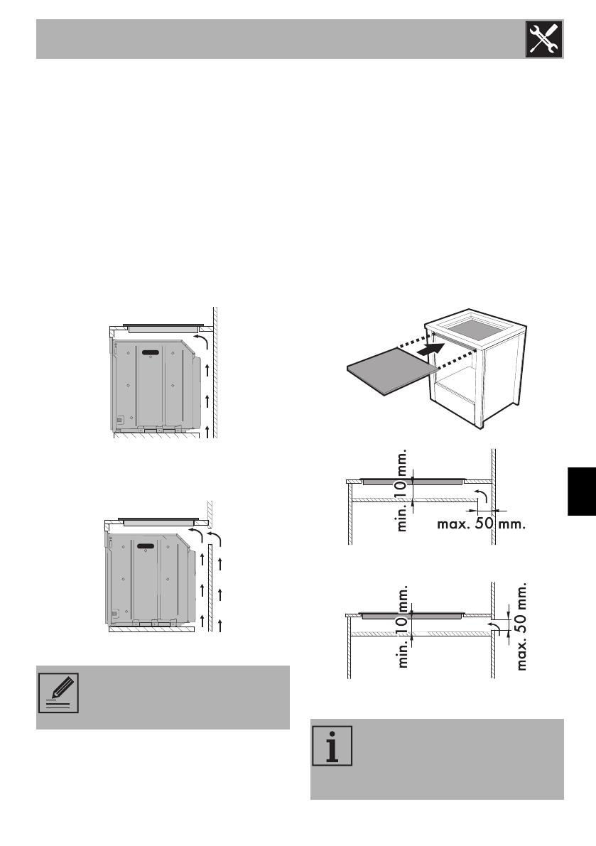
5.3 Встраивание
В отсеке встраиваемой духовки
Расстояние между варочной
поверхностью и кухонной мебелью, или
встраиваемыми аппаратами должна
гарантировать достаточную вентиляцию
и достаточный выход воздуха.
При установке над духовкой,
необходимо предусмотреть наличие
свободного пространства между дном
варочной панели и частью
устанавливаемого ниже оборудования.
с отверстием на дне
с отверстием на дне и сзади
В нейтральном отсеке или ящиках
В случае наличия иной мебели (боковые
стенки, ящики и т.п.), посудомоечных
машин или холодильников,
расположенных под варочной панелью,
необходимо установить деревянное
двойное дно на минимальном
расстоянии
10 мм
от нижней стороны
варочной панели во избежание
случайных контактов. Двойное дно
может быть удалено только при
использовании специальных
инструментов.
с отверстием на дне
с отверстием сзади
При установке над духовкой
последняя должна снабжаться
охлаждающим вентилятором.
Отсутствие двойного дна
создает для потребителя риск
случайного контакта с острыми
или горячими частями.
Характеристики
Остались вопросы?Не нашли свой ответ в руководстве или возникли другие проблемы? Задайте свой вопрос в форме ниже с подробным описанием вашей ситуации, чтобы другие люди и специалисты смогли дать на него ответ. Если вы знаете как решить проблему другого человека, пожалуйста, подскажите ему :)