Варочная панель Smeg PM6621WLDX - инструкция пользователя по применению, эксплуатации и установке на русском языке. Мы надеемся, она поможет вам решить возникшие у вас вопросы при эксплуатации техники.
Если остались вопросы, задайте их в комментариях после инструкции.
"Загружаем инструкцию", означает, что нужно подождать пока файл загрузится и можно будет его читать онлайн. Некоторые инструкции очень большие и время их появления зависит от вашей скорости интернета.

Установка
437
RU
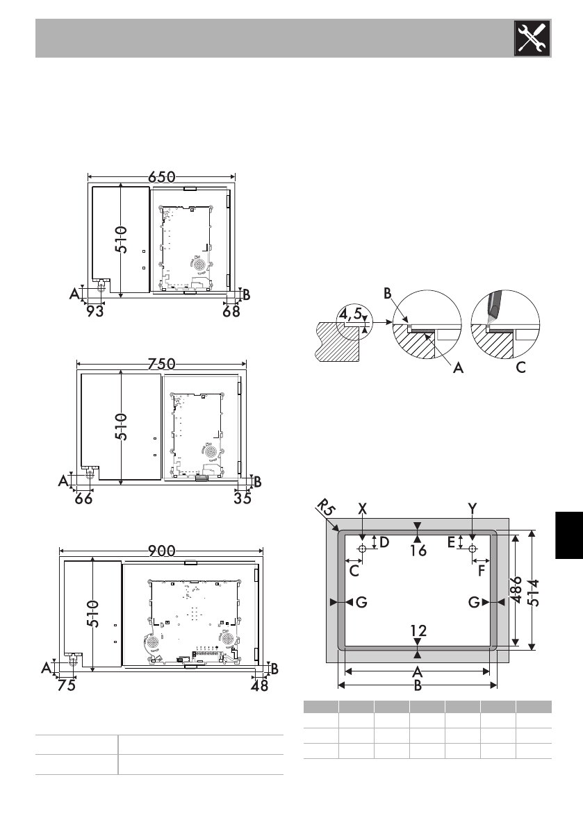
Размеры прибора (мм)
Положение газовых и электрических
подключений.
(вид снизу)
65 см
75 см
90 см
Установка заподлицо (только
модификации без реек)
После расположения на стеклянной
поверхности самоклеющейся прокладки
(
A
) и после установки и закрепления
варочной панели следует заполнить
кромки изоляционным силиконом (
B
),
убирая его излишки.
Если требуется удалить варочную
панель, следует срезать силикон
специальным ножом и затем снимать
панель (
C
).
Размеры панели при установке
заподлицо (мм)
X =
Подключение газа
Y =
Электрическое подключение
A
35
B
34,5
A
B
C
Д
E
F
G
560
654 47,5
21
20
57,5
47
724
754
53
21
20
57
15
844
904
47
23
33,5 96,5
30
Характеристики
Остались вопросы?Не нашли свой ответ в руководстве или возникли другие проблемы? Задайте свой вопрос в форме ниже с подробным описанием вашей ситуации, чтобы другие люди и специалисты смогли дать на него ответ. Если вы знаете как решить проблему другого человека, пожалуйста, подскажите ему :)