Варочная панель Simfer H60D14B020 - инструкция пользователя по применению, эксплуатации и установке на русском языке. Мы надеемся, она поможет вам решить возникшие у вас вопросы при эксплуатации техники.
Если остались вопросы, задайте их в комментариях после инструкции.
"Загружаем инструкцию", означает, что нужно подождать пока файл загрузится и можно будет его читать онлайн. Некоторые инструкции очень большие и время их появления зависит от вашей скорости интернета.

15
INSTALLATION OF COOKTOP
Check if the electrical installation is proper to bring the appliance in
operating condition. If electricity installation is not suitable, call an
electrician and plumber to arrange the utilities as necessary. Manufacturer
shall not be held responsible for damages caused by operations performed
by unauthorized persons.
WARNING:
It is customer’s responsibility to prepare the location the
product shall be placed on and also to have the electrical installation
prepared.
WARNING:
The rules in local standards about electrical installations
shall be followed during product installation.
WARNING:
Check for any damage on the appliance before installing it.
Do not have the product installed if it is damaged. Damaged products
cause a risk for your safety.
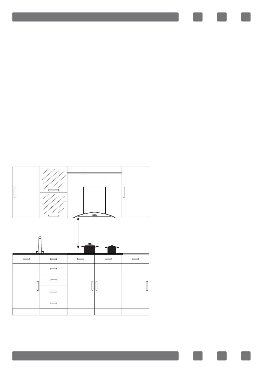
Correct Place For Installation
Product is designed in
accordance with the
kitchen counters supplied
from market. A safe
distance should be left
between the product and
kitchen walls and furniture.
If hood/aspirator will be
installed over your appliance,
obey to the recommendation
of hood / aspirator
manufacturer for assembly
height. (min. 65 cm)
The gap that cooktop is to
be placed on the counter
should be cut in line with
cooktop installation dimen-
sions.
For installation of the product, the rules specified in local standards
related to electricity should be complied.
650 mm min.
Содержание
- 24 технике; УВАЖАЕМЫЙ ПОКУПАТЕЛЬ!; Благодарим Вас за то, что отдали предпочтение бытовой технике; ПРИМЕЧАНИЕ
- 25 Содержание
- 26 Поверхность должна использоваться в соответствии; правилами, указанными в инструкции по эксплуатации.; животным приближаться к прибору, когда он работает.; храните материалы на варочной поверхности.; использовать для других целей, таких как обогрев
- 29 ВНИМАНИЕ! Если стекло варочной панели; Розетка для подключения должна располога-
- 30 имеются трещины, следует отключать устройство; во избежание поражения электрическим током.; или наливания на него воды. Имеется риск поражения; Шнур питания не входит в комплект.
- 31 Если шнур питания (шнур со штепсельной вилкой); специалистом
- 34 Использование варочной поверхности; Поверхность предназначена для использования
- 36 ОПИСАНИЕ ПРИБОРА
- 37 Технические Характеристики
- 39 Монтаж варочной поверхности; Переверните панель лицевой стороной вниз и положите на ровную; Схема монтажа
- 41 Габаритные размеры варочной поверхности; При монтаже поверхности и подготовке места для ее монтажа в
- 42 Указанная панель управления, приведена только; Предупреждения при использовании сенсорного управления; Элементы управления реагируют на касание, поэтому вам не нужно; Изображение панели 30 см
- 43 ЭКСПЛУАТАЦИЯ ВАРОЧНОЙ ПОВЕРХНОСТИ
- 44 ТЕХНИЧЕСКОЕ ОБСЛУЖИВАНИЕ И ЧИСТКА
Характеристики
Остались вопросы?Не нашли свой ответ в руководстве или возникли другие проблемы? Задайте свой вопрос в форме ниже с подробным описанием вашей ситуации, чтобы другие люди и специалисты смогли дать на него ответ. Если вы знаете как решить проблему другого человека, пожалуйста, подскажите ему :)
Рассктжите подробней что значат символы на электрической 4-х комфортной варочной панели и как ими управлять?