Варочная панель Simfer H30D12B020 - инструкция пользователя по применению, эксплуатации и установке на русском языке. Мы надеемся, она поможет вам решить возникшие у вас вопросы при эксплуатации техники.
Если остались вопросы, задайте их в комментариях после инструкции.
"Загружаем инструкцию", означает, что нужно подождать пока файл загрузится и можно будет его читать онлайн. Некоторые инструкции очень большие и время их появления зависит от вашей скорости интернета.

38
УСТАНОВКА ВАРОЧНОЙ ПОВЕРХНОСТИ
Перед подключением прибора проверьте правильность электромонтажа.
Производитель не несет ответственности за ущерб, причиненный в
результате операций, совершенных не авторизованными лицами.
ПРЕДУПРЕЖДЕНИЕ:
Установка прибора должны выполняться в соот-
ветствии с правилами местных стандартов в отношении электроустановок.
ПРЕДУПРЕЖДЕНИЕ:
Перед установкой проверьте наличие повреждений
устройства. Не устанавливайте прибор, если он поврежден. Поврежденный
прибор может вызывать риск поражения электрическим током.
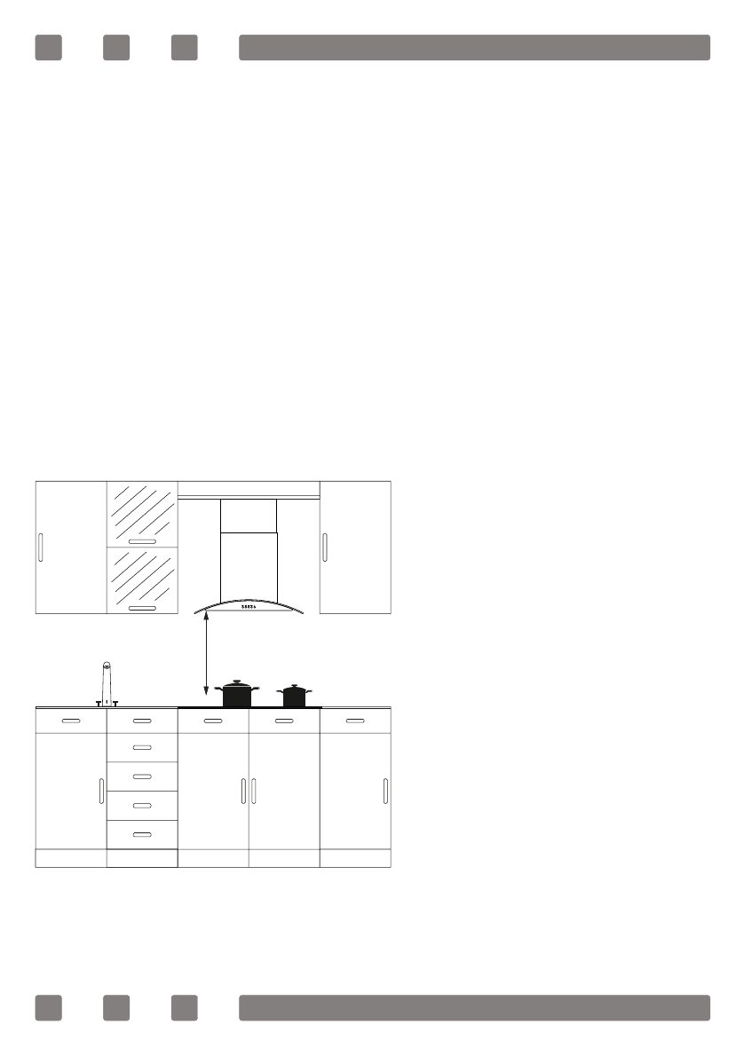
Указание по монтажу
Дизайн изделия разработан в
соответствии с доступными на
рынке столешницами. Между сте -
нами кухни и мебелью следует
оставить безопасное расстояние.
Если над поверхностью будет
установлена вытяжка, то руковод-
ствуйтесь рекомендациями
изготовителя вытяжки относитель-
но высоты монтажа. (Мин. 65 см)
Установка варочной поверхности
на столешнице, должна производит-
ся в соответствии со схемой монта-
Во время монтажа изделия следует соблюдать правила, установленные
местными стандартами в части электрических работ.
миним
альный
650
мм
RU
жа.
Содержание
- 24 технике; УВАЖАЕМЫЙ ПОКУПАТЕЛЬ!; Благодарим Вас за то, что отдали предпочтение бытовой технике; ПРИМЕЧАНИЕ
- 25 Содержание
- 26 Поверхность должна использоваться в соответствии; правилами, указанными в инструкции по эксплуатации.; животным приближаться к прибору, когда он работает.; храните материалы на варочной поверхности.; использовать для других целей, таких как обогрев
- 29 ВНИМАНИЕ! Если стекло варочной панели; Розетка для подключения должна располога-
- 30 имеются трещины, следует отключать устройство; во избежание поражения электрическим током.; или наливания на него воды. Имеется риск поражения; Шнур питания не входит в комплект.
- 31 Если шнур питания (шнур со штепсельной вилкой); специалистом
- 34 Использование варочной поверхности; Поверхность предназначена для использования
- 36 ОПИСАНИЕ ПРИБОРА
- 37 Технические Характеристики
- 39 Монтаж варочной поверхности; Переверните панель лицевой стороной вниз и положите на ровную; Схема монтажа
- 41 Габаритные размеры варочной поверхности; При монтаже поверхности и подготовке места для ее монтажа в
- 42 Указанная панель управления, приведена только; Предупреждения при использовании сенсорного управления; Элементы управления реагируют на касание, поэтому вам не нужно; Изображение панели 30 см
- 43 ЭКСПЛУАТАЦИЯ ВАРОЧНОЙ ПОВЕРХНОСТИ
- 44 ТЕХНИЧЕСКОЕ ОБСЛУЖИВАНИЕ И ЧИСТКА
Характеристики
Остались вопросы?Не нашли свой ответ в руководстве или возникли другие проблемы? Задайте свой вопрос в форме ниже с подробным описанием вашей ситуации, чтобы другие люди и специалисты смогли дать на него ответ. Если вы знаете как решить проблему другого человека, пожалуйста, подскажите ему :)













