Варочная панель Samsung NZ63K7777BK - инструкция пользователя по применению, эксплуатации и установке на русском языке. Мы надеемся, она поможет вам решить возникшие у вас вопросы при эксплуатации техники.
Если остались вопросы, задайте их в комментариях после инструкции.
"Загружаем инструкцию", означает, что нужно подождать пока файл загрузится и можно будет его читать онлайн. Некоторые инструкции очень большие и время их появления зависит от вашей скорости интернета.

10 Русский
Ус
тановк
а в
аро
чной пане
ли
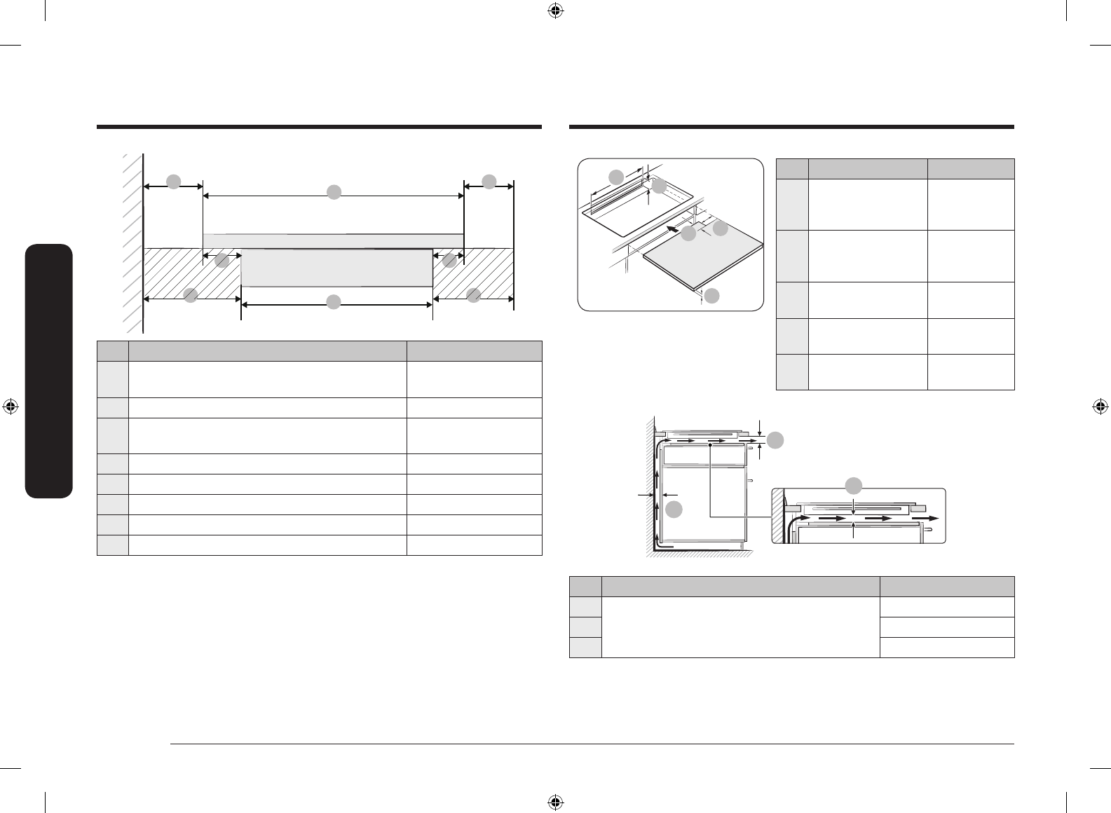
Установка варочной панели
05
02
01
03
04
№
Описание
Размер
01
Ширина заднего
вентиляционного
отверстия
Мин. 550 мм
02
Высота заднего
вентиляционного
отверстия
Мин. 35 мм
03
Глубина канала кабеля
питания
Макс. 65 мм
04
Ширина канала кабеля
питания
Макс. 100 мм
05
Высота мебельной
фанерной плиты
Мин. 5 мм
01
02
03
№
Описание
Размер
01
Величина вентиляционных просветов
Мин. 20 мм
02
Мин. 2 мм
03
Мин. 20 мм
06
07
08
04
02
05
01
03
№
Описание
Размер
01
Расстояние между стеной и индукционной варочной
панелью
Мин. 40 мм
02
Глубина индукционной варочной панели
520 мм
03
Расстояние между индукционной варочной панелью и
краем стола
Мин. 40 мм
04
Расстояние между стеклом и корпусом конфорок
25 мм
05
Расстояние между стеклом и корпусом конфорок
15 мм
06
Расстояние между стеной и корпусом конфорок
Мин. 60 мм
07
Глубина корпуса конфорок
480 мм
08
Расстояние между корпусом конфорок и краем стола
Мин. 50 мм
NZ63K7777BK_WT_DG68-00802A-00_RU+UK+KK+UZ.indb 10
4/11/2016 2:00:29 PM












