Варочная панель Novex ND 3720 S - инструкция пользователя по применению, эксплуатации и установке на русском языке. Мы надеемся, она поможет вам решить возникшие у вас вопросы при эксплуатации техники.
Если остались вопросы, задайте их в комментариях после инструкции.
"Загружаем инструкцию", означает, что нужно подождать пока файл загрузится и можно будет его читать онлайн. Некоторые инструкции очень большие и время их появления зависит от вашей скорости интернета.

20
INSTALLATION OF COOKTOP
Check if the electrical installation is proper to bring the appliance in
operating condition. If electricity installation is not suitable, call an
electrician and plumber to arrange the utilities as necessary. Manufacturer
shall not be held responsible for damages caused by operations
performed by unauthorized persons.
WARNING:
It is customer’s responsibility to prepare the location the
product shall be placed on and also to have the electrical installation
prepared.
WARNING:
The rules in local standards about electrical installations
shall be followed during product installation.
WARNING:
Check for any damage on the appliance before installing it.
Do not have the product installed if it is damaged. Damaged products
cause a risk for your safety.
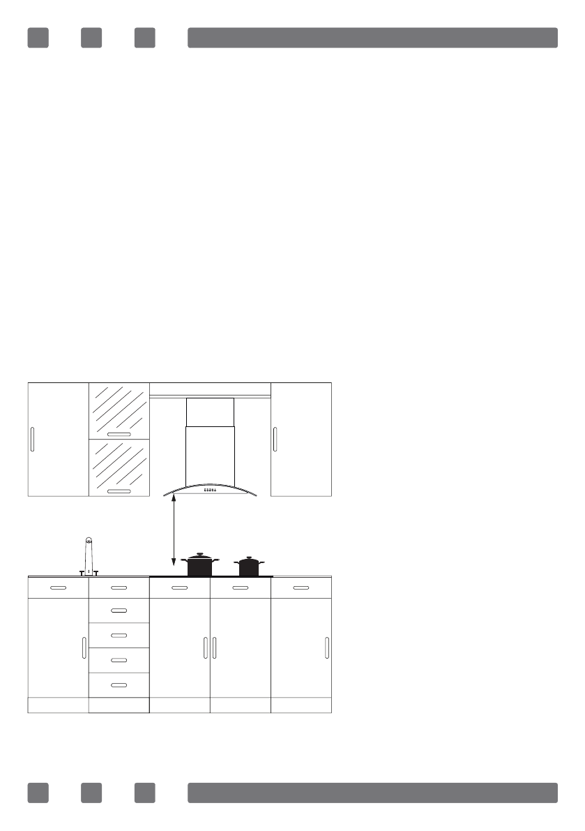
Correct Place For Installation
Product is designed in
accordance with the
kitchen counters supplied
from market. A safe
distance should be left
between the product and
kitchen walls and furniture.
If hood/aspirator will be
installed over your appliance,
obey to the recommendation
of hood / aspirator
manufacturer for assembly
height. (min. 65 cm)
The gap that cooktop is to
be placed on the counter
should be cut in line with
cooktop installation dimen-
sions.
For installation of the product, the rules specified in local standards
related to electricity should be complied.
650 mm min.
GB
Содержание
- 32 Содержание
- 33 ВАЖНЫЕ ПРЕДУПРЕЖДЕНИЯ; АВТОРИЗОВАННЫМ СЕРВИСНЫМ ЦЕНТРОМ
- 37 включенной варочной поверхностью. Несоблюдение; Электробезопасность
- 39 типа «Y»
- 40 Газобезопасность
- 43 Нельзя тушить воспламенившееся масло или жир
- 44 Таблица возможных неисправностей и меры
- 45 Целевое использование; Данный прибор предназначен для использования
- 47 персонал газовой службы.
- 49 Проветривание помещения; помещения. Если в помещении отсутствует какое-либо; Величина помещения; хорошая вентиляция
- 50 ОПИСАНИЕ ПРИБОРА
- 54 Установка; Снимите с поверхности решетки, крышки конфорок и рассекатели.; Схема установки
- 55 Если под плитой установлена встроенная духовка
- 56 Габаритные размеры приборов; При монтаже варочной панели и подготовке места для ее монтажа в
- 57 Панель управления, указанная, приведена только
- 60 что обеспечивает равномерное распре деление тепла; Размеры кастрюль; Рекомендуемые диаметры дна приведены в следующе таблице.
- 61 Техническое обслуживание и чистка
- 62 Устранение неисправностей; Перед тем, как обратиться в техническую службу, Вы можете решить; Неисправности; Если у вас возникла проблема, сначала посмотрите таблицу
- 63 Правила транспортировки; Переносите и перевозите прибор в оригинальной упаковке.