Варочная панель Miele KM 5955 - инструкция пользователя по применению, эксплуатации и установке на русском языке. Мы надеемся, она поможет вам решить возникшие у вас вопросы при эксплуатации техники.
Если остались вопросы, задайте их в комментариях после инструкции.
"Загружаем инструкцию", означает, что нужно подождать пока файл загрузится и можно будет его читать онлайн. Некоторые инструкции очень большие и время их появления зависит от вашей скорости интернета.

Ïîñëå îòêëþ÷åíèÿ îò ýëåêòðîñåòè
ñëåäóåò îáåñïå÷èòü çàùèòó îò
ïîâòîðíîãî âêëþ÷åíèÿ ïðèáîðà.
Ýëåêòðîïîäêëþ÷åíèå
Ïðèáîð äîëæåí áûòü ïîäêëþ÷åí ê
ñåòè ñ ïîìîùüþ êàáåëÿ Òèï H 05
VV-F (PVC-èçîëèðîâàí) ñ ïîäõîäÿùèì
ïîïåðå÷íûì ñå÷åíèåì â ñîîòâåò-
ñòâèè ñî ñõåìîé ïîäêëþ÷åíèÿ.
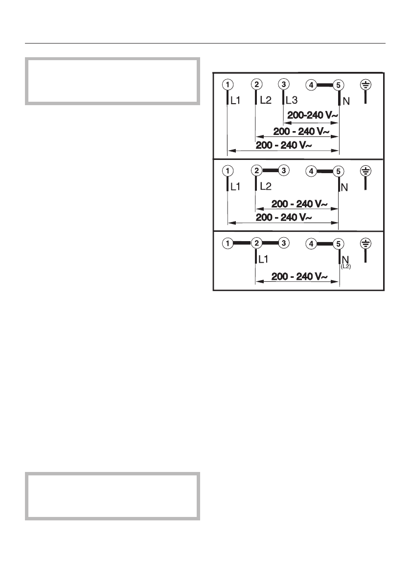
Äàííûå î âîçìîæíîñòÿõ ïîäêëþ÷å-
íèÿ Âû ìîæåòå íàéòè â ñõåìå ïîä-
êëþ÷åíèÿ.
Äîïóñòèìîå äëÿ Âàøåãî ïðèáîðà
ìàêñèìàëüíîå ñåòåâîå íàïðÿæåíèå è
îáùàÿ ïîòðåáëÿåìàÿ ìîùíîñòü óêà-
çàíû íà òèïîâîé òàáëè÷êå ïðèáîðà.
Çàìåíà êàáåëÿ
Ïðè çàìåíå êàáåëÿ ìîæåò áûòü èñ-
ïîëüçîâàí òîëüêî ñïåöèàëüíûé êà-
áåëü Òèï
H 05 VV-F (PVC-èçîëèðîâàí), êîòîðûé
ìîæíî ïðèîáðåñòè ó Miele èëè â ñåð-
âèñíîé ñëóæáå.
Êàáåëü ìîæåò áûòü çàìåíåí òîëüêî
ñïåöèàëèñòîì-ýëåêòðèêîì, êîòîðûé
çíàåò è ñîáëþäàåò ìåñòíûå ïðàâèëà
ïîäêëþ÷åíèÿ.
Íåîáõîäèìûå äàííûå ïî ïîäêëþ÷å-
íèþ Âû ìîæåòå íàéòè íà òèïîâîé
òàáëè÷êå.
Çàùèòíûé ïðîâîä äîëæåí áûòü
ïðèâèí÷åí ê ïðîìàðêèðîâàííîìó
çàæèìó
-
.
Ñõåìà ïîäêëþ÷åíèÿ
Ýëåêòðîïîäêëþ÷åíèå
83
Характеристики
Остались вопросы?Не нашли свой ответ в руководстве или возникли другие проблемы? Задайте свой вопрос в форме ниже с подробным описанием вашей ситуации, чтобы другие люди и специалисты смогли дать на него ответ. Если вы знаете как решить проблему другого человека, пожалуйста, подскажите ему :)